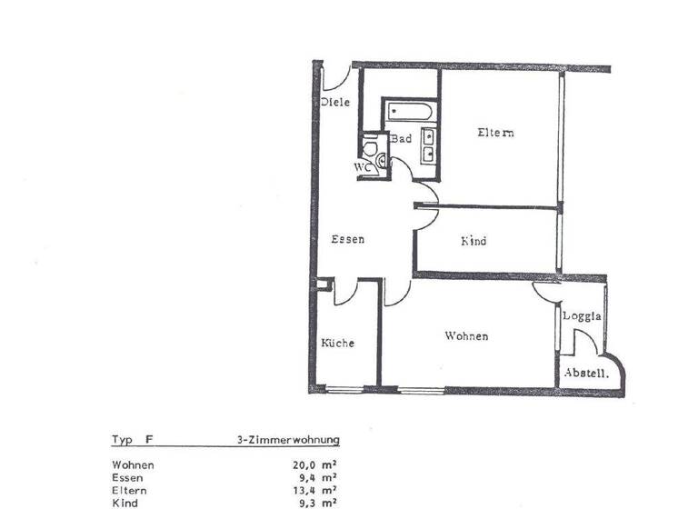
Das angebotene Hochhauskonzept befindet sich in einem Groß-Parteienhaus aus dem Jahre 1974. Die Die Wohnung besteht 3 Zimmern, Küche, Diele, Bad/ WC. Und einem Balkon .
Merkmale
frei ab sofort
22. Geschoss
Personenaufzug
Bodenbelag: Kunststoff
Balkon
Fernblick
Das Haus verfügt über 2 Aufzüge. Heizung: Fernwärme Befeuerungsart: Fernwärme Energieausweistyp: Verbrauchsausweis - gültig vom 06.10.2017 bis 05.10.2027 Energieeffizienz-Klasse: F Energieverbrauchs-Kennwert: 177 kWh/(m2*a) Energieverb. Warmwasser enthalten: ja Baujahr laut Energieausweis: 1974
Grundrisse
Grundrisse
1 / 1
Realisiere Dein Projekt
Bausubstanz und Energie
Energieausweis
F
Baujahr1974
Zustand der ImmobilieGepflegt
EnergieträgerFernwärme
Mietkosten
Warmmiete
1.450 €
Kaltmiete
16,67 €/m²
1.200 €
Nebenkosten
150 €
Heizkosten
100 €
Kaution
3.600,00 3600
Lage
An der Fuhr 5, Meschenich, köln (50997)
Der Ort Meschenich ist vorgelagert vor Köln, in einer noch ländlichen Umgebung. Das in Stadt und Umgebung bekannte Haus. Fußläufig erreichen Sie alle Einkaufsmöglichkeiten. Grundschule und Kindergärten in der Nähe Geschäfte des täglichen Bedarfs, Ärzte, Jugendzentrum - alles fußläufig erreichbar. Bushaltestelle nach Rondorf- Rodenkirchen, sowie in die Innenstadt. Zahlreiche Sportarten werden im Ort angeboten und ansonsten in Rondorf 2 km .z.B. Tennis, Basketball u. v .m. Reiten und Golf sowie diverse Wasser- und Freizeitmöglichkeiten, werden vielseitig in unmittelbarer Nähe in Rodenkirchen oder Brühl angeboten, Baggerseen in unmittelbarer Nähe. Viel Natur. Naherholungsmöglichkeiten Nach Brühl sind es ca. 2-3 km.Sehr gute Autobahnanbindung, in wenigen Minuten erreichbar, Flughafen Köln-Bonn ca. 20-25 Minuten, Düsseldorf ca. 45 Minuten, die Kölner Innenstadt /Rodenkirchen. Nach Rodenkirchen am Rhein mit seinen exklusiven Geschäften, guten Restaurants, Biergärten, vielseitige Schulformen, sind es nur 6-7 km. Von hier aus weitere gute Verkehrsanbindung in alle Richtungen
Weitere Informationen
Sonstiges
Alle Angaben in diesem Exposé wurden sorgfältig und so vollständig wie möglich gemacht. Gleichwohl kann das Vorhandensein von Fehlern nicht ausgeschlossen werden. Die Angaben in diesem Exposé erfolgen daher ohne jede Gewähr. Maßgeblich sind die im Mietvertrag geschlossenen Vereinbarungen. Soweit die Grundrissgrafiken Maßangaben und Einrichtungen enthalten, wird auch für diese jegliche Haftung ausgeschlossen. Mietpreisänderungen bleiben vorbehalten. bei Weitergabe unseres Exposés an Dritte Provisions- bzw. Schadenersatzansprüche geltend zu machen. Wir weisen auf unsere Allgemeinen Geschäftsbedingungen der Bilhan Öz Immobilien hin, diese finden Sie ausführlich auf unserer Homepage www.immobilien-oez.de
Stichworte
Anzahl der Schlafzimmer: 2, Anzahl der Badezimmer: 1, Anzahl Balkone: 1, 26 Etagen, Lage im Wohngebiet, modernisiert: 2026