Penthouse-Feeling mit zwei Dachterrassen & Erstbezug
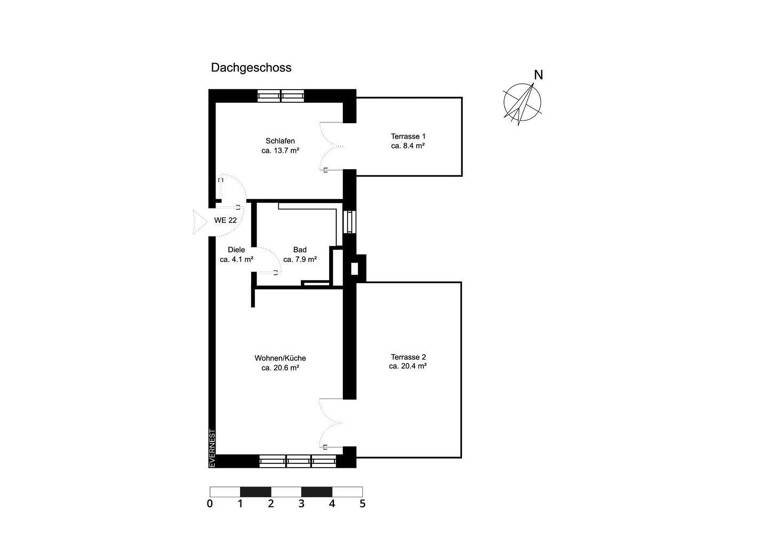
Diese hochwertige 2-Zimmer-Dachgeschosswohnung befindet sich im 4. Obergeschoss eines modernen Neubaus aus dem Baujahr 2025 und steht zum Erstbezug bereit. Auf ca. 61 m² vereint sie eine großzügige Grundrissgestaltung mit zeitgemäßem Wohnkomfort im Berliner Norden. Die Wohnung, der Keller sowie die Tiefgarage sind barrierefrei und bequem über den Fahrstuhl zu erreichen. Direkt angrenzend befindet sich eine weitere, ebenfalls zum Verkauf stehende Einheit.
Ein besonderes Highlight sind die zwei großzügigen Dachterrassen mit Südwestost-Ausrichtung. Hier genießen Sie sowohl die Morgensonne als auch sonnige Nachmittage und stimmungsvolle Abendstunden. Die weitläufigen Außenflächen erweitern den Wohnraum ins Freie und schaffen ein außergewöhnliches Wohngefühl mit viel Licht und Offenheit.
Der offen gestaltete Wohn- und Kochbereich verfügt über einen direkten Zugang zu einer der Dachterrassen und bildet das Herz der Wohnung. Das geräumige Schlafzimmer bietet ebenfalls einen Zugang zur zweiten Dachterrasse und überzeugt durch seine angenehme Größe.
Die hochwertige Ausstattung unterstreicht den Neubaucharakter: Eiche-Parkettböden schaffen eine warme Atmosphäre, während die individuell regulierbare Fußbodenheizung in allen Räumen für ein komfortables Raumklima sorgt. Elektrische Rollläden und dimmbare Lichtschalter ergänzen den modernen Standard. Das stilvolle Tageslichtbad ist mit einer hochwertigen Dusche ausgestattet. Eine voll integrierte Einbauküche mit Markengeräten ist bereits im Kaufpreis enthalten.
Zur Wohnung gehört ein Kellerraum. Ein Tiefgaragenstellplatz kann optional für 29.000 € erworben werden. Die Beheizung erfolgt über eine effiziente Nahwärmeversorgung mit geringen Wärmeverlusten.
Zusätzlich besteht die Möglichkeit, die benachbarte 2-Zimmer-Wohnung mit ca. 48 m² für 329.000€ zu erwerben. Durch eine Zusammenlegung beider Einheiten entsteht eine großzügige 4-Zimmer-Wohnung mit ca. 109 m² Wohnfläche.
Merkmale
Dachgeschoss, 4. Geschoss
Keller
Terrasse
Stellplatz
- Neubau 2025: Erstbezug im Dachgeschoss - Tiefgaragenstellplatz optional erwerbbar (29.000€) - 2 Sonnige Dachterrassen - Eichenparkett in allen Räumen - Fußbodenheizung individuell regelbar - Elektrische Rollläden · Dimmbares Licht - Vollausgestattete Einbauküche mit Markengeräten - Duschbad mit Fenster und hochwertigen Fliesen - Fernblick über EFH-Siedlung & Fernsehturm - Nahwärmeversorgung mit geringem Wärmeverlust - Option: Erweiterbar auf 4-Zimmer und 109 m²
Grundrisse
Grundrisse
1 / 1
Realisiere Dein Projekt
Bausubstanz und Energie
Möchtest du Details zum Energieverbrauch?
Baujahr2025
Zustand der ImmobilieErstbezug
Preisdetails
Kaufpreis
419000 €419.000 €
6.888,05 €/m²
Hausgeld
228.5 €228,50 €
Provision für Käufer
3.57 inkl. MwSt. Bei Abschluss eines notariellen Kaufvertrages ist eine Käuferprovision vom Käufer in Höhe von 3.57 % inkl. MwSt. aus dem Kaufpreis fällig.
Geschätzte Gesamtkosten
467.478 €1
Kaufpreis
419.000 €
Kaufnebenkosten
48.478 €
2
Notarkosten (1,5%)
6.285 €
Grunderwerbsteuer (6%)
25.140 €
Provision für Käufer (3,57%)
14.958 €
Grundbucheintrag (0,5%)
2.095 €
1Der angezeigte Wert ist eine automatisch berechnete Schätzung von immowelt.
2Bei den Angaben handelt es sich um ortsübliche Werte. Individuelle Kosten können abweichen.
Lage
Französisch Buchholz, Berlin (13127)
Der Anbieter hat die genaue Adresse nicht freigegeben
Die Wohnung liegt im Herzen von Berlin-Französisch Buchholz - einem gewachsenen und zugleich dynamisch wachsenden Wohngebiet. Das Umfeld zeichnet sich durch eine angenehme Mischung aus Einfamilienhäusern, gepflegten Bestandsbauten und modernen Neubauten aus. Einkaufsmöglichkeiten des täglichen Bedarfs wie Supermärkte, Bäckereien und Apotheken sind bequem erreichbar. Auch Kitas und Schulen befinden sich im näheren Umfeld. Bus- und Tramhaltestellen sind nur einen Katzensprung entfernt und gewährleisten eine schnelle Verbindung in die umliegenden Stadtteile sowie in Richtung Berliner Innenstadt.
Französisch Buchholz gehört zum gefragten Bezirk Pankow im Berliner Norden und befindet sich in einer sehr positiven Entwicklung. Zahlreiche Neubauprojekte und infrastrukturelle Verbesserungen unterstreichen die Attraktivität des Ortsteils und machen ihn besonders für Eigennutzer interessant. Der nahegelegene Botanische Volkspark sowie weitläufige Grünflächen bieten hohen Freizeit- und Erholungswert. Gleichzeitig sind die Berliner City und das Brandenburger Umland gut erreichbar. Die Lage vereint damit Zukunftsperspektive, Lebensqualität und Stadtnähe auf überzeugende Weise.
Weitere Informationen
Energiepass
Energieausweis wird bei Besichtigung vorgelegt.
Stichworte
Tiefgarage vorhanden, Anzahl der Schlafzimmer: 1, Anzahl der Badezimmer: 1, Anzahl Terrassen: 1