

Einfamilienhaus zum Kauf339000 €1.760 €/m²8 Zimmer • 192,7 m² • 814 m² Grundstück
339000 €
1.760 €/m²
8 Zimmer • 192,7 m² • 814 m² Grundstück
Projekt mit Zukunft - mehrere Wohnoptionen - sonniges GrundstĂĽck - echte Vision inklusive!
Merkmale
- Bezug: sofort
- 814 m² Grundstück
- Keller
- Gäste-WC
- Balkon
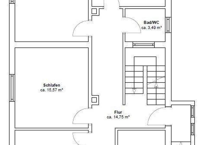
Grundrisse
Grundrisse
1 / 3
Realisiere Dein Projekt
Bausubstanz und Energie
Energieausweis
H
- Baujahr1958
- Zustand der ImmobilieMassivhaus, renovierungsbedĂĽrftig / sanierungsbedĂĽrftig
- HeizungsartEtagenheizung
Preisdetails
Kaufpreis
339000 €
1.759,67 €/m²
Provision für Käufer
2,98% Käuferprovision inkl. gesetzl. MwSt. inkl. MwSt.
Geschätzte Gesamtkosten
367.747 €1
Kaufpreis
339.000 €
Kaufnebenkosten
28.747 €
2Notarkosten (1,5%)
5.085 €
Grunderwerbsteuer (3,5%)
11.865 €
Provision für Käufer (2,98%)
10.102 €
Grundbucheintrag (0,5%)
1.695 €
1Der angezeigte Wert ist eine automatisch berechnete Schätzung von immowelt.
2Bei den Angaben handelt es sich um ortsübliche Werte. Individuelle Kosten können abweichen.
Lage

Dinkelscherben (86424)
Der Anbieter hat die genaue Adresse nicht freigegeben
Weitere Informationen
Weitere Services
Lust auf eine Besichtigung?
Eine Frage zur Immobilie?
Ăśber den Anbieter
Bricks & Mortar Immobilien National GmbHMaklerbĂĽro
DieselstraĂźe 41, 86368 Gersthofen
Partnerschaft
Herr Christian LudlDein Kontakt
Online-ID: 2nw9s5h
Referenznummer: CL-12947-KH

Bricks & Mortar Immobilien National GmbH
Bewertung: 5 von 5 Sternen
Wie zufrieden bist du mit dieser Seite (nicht mit der Immobilie selbst)?

