Airport City: Premiumfläche im Green Building I Exklusiv bei CBRE
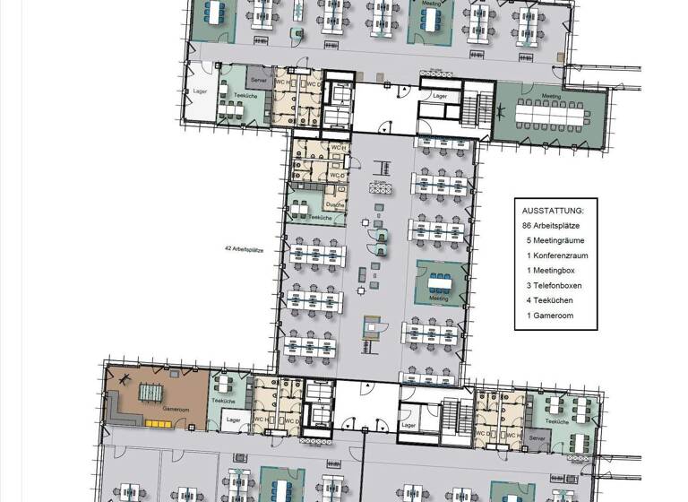
Das Smart Office in der Klaus-Bungert-Straße 8/8a in der Düsseldorfer Airport City bietet rund 14.600?m² moderne, flexibel gestaltbare Büroflächen. Das 2021 fertiggestellte Gebäude ist DGNB Platin- und WiredScore Gold-zertifiziert und überzeugt durch hohe Nachhaltigkeits- und Digitalstandards. Große Fenster, Heiz-/Kühldecken und flexible Raumaufteilung ermöglichen individuelle Arbeitswelten. Die Lage direkt am Flughafen mit optimaler Anbindung an Autobahn und ÖPNV macht den Standort besonders attraktiv. Das Gebäude verfügt über eine helle und moderne Tiefgarage. Der hochwertig gestaltete Innenhof rundet das attraktive Angebot ab. Mieter sind renommierte internationale und nationale Unternehmen.
Klaus-Bungert-Straße 8 - 8 a, Unterrath, Düsseldorf (40468)
Die am Flughafen Düsseldorf entstandene Airport City hat sich in den letzten Jahren als wichtiger und attraktiver Bürostandort etabliert. Dies ist einerseits auf die von den Unternehmen bevorzugte Nähe zum Flughafen Düsseldorf und andererseits auf die dort neu entstandenen und modernen Bürogebäude zurückzuführen. Von der Airport City aus ist eine ideale Autobahn- (A 44 / A 52 / A 59) und S-Bahn-Anbindung ("Düsseldorf-Flughafen-Terminal") gegeben. Geschäfte des täglichen Bedarfs und Restaurants sind am Flughafen in ausreichender Anzahl vorhanden (u. a. REWE-Supermarkt - bis 24:00 Uhr geöffnet). In der Airport City existieren darüber hinaus mehrere Kantinen, die öffentlich zugänglich sind. Das Maritim-Hotel mit seinem Kongresszentrum bietet optimale Unterbringungs-, Verpflegungs- und Tagungsmöglichkeiten.
Weitere Informationen
Sonstiges
Hierbei handelt es sich um Untermietflächen mit einer Restlaufzeit bis 31.12.2032. Ein direktes Mietverhältnis mit dem Eigentümer.......nach Absprache möglich.