Version: 8.25.1Navigation überspringen
massa haus - Gregor Heupel
337.800 €
5 Zimmer  •  161 m²  •  690 m² Grundstück

Haus zum Kauf • provisionsfrei
337800 €
2.098 €/m²
5 Zimmer  •  161 m²  •  690 m² Grundstück

2026 wird Dein Jahr - Traumhaus finden und bauen

Ein Zuhause zum Ankommen - Ihr Familiendomizil mit Herz

Dieses Einfamilienhaus ist mehr als nur vier Wände - es ist der Ort, an dem Alltag zur Auszeit wird und Familienleben Raum bekommt.

Mit lichtdurchfluteten Zimmern, einem gemütlichen Garten und einer liebevollen Atmosphäre lädt es dazu ein, anzukommen, zu bleiben und zu wachsen. Ob gemeinsames Frühstück auf der Terrasse oder entspannte Abende im Wohnzimmer - hier fühlt sich jeder Tag wie Zuhause an.

Ein Haus, das das Leben leicht macht - für heute, morgen und viele Jahre.

Merkmale

  • Bezug: 2026
  • 690 m² Grundstück
Im Kaufpreis sind enthalten:

- Ausbauhaus
- mineralischer Grund- und Außenputz
- Dacheindeckung Betondachsteine
- hochwertigem Zimmermannsdachstuhl
- hochwertige Haustür
- Fenster (Wärmeschutzfenster, 3-fach verglast)
- Rollläden aus Aluminium (im EG und DG, einbruchhemmend)
- Dachrinnen und Regenrohre aus Titanzink
- Fensterbänke (außen, Aluminium)
- Aufbau und Anlieferung Ihres Hauses
- Bauleitung und Baubetreuung
- Architektenleistungen
- Grundstück (im Preis berücksichtigt)
- Bodenplatte
- Frostschürze
- Versicherung während der Bauphase

Auf Wunsch bieten wir Ihnen auch professionelle Innenausbaupakete an.

Von Profis für Sie zum einfachen Innenausbau vorbereitet.
Die einzelnen Pakete zum Innenausbau können Sie nach Ihren persönlichen Vorstellungen und Möglichkeiten durch professionelle Anleitung zusammenstellen und so durch Eigenleistung VIEL Geld einsparen.

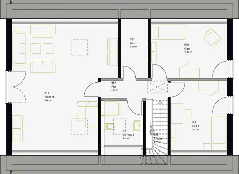
Grundrisse

Grundrisse
1 / 2

Realisiere Dein Projekt

Bausubstanz und Energie

Möchtest du Details zum Energieverbrauch?info_energy_calculation-icon
  • Baujahr2026
MediumRectangleTop

Preisdetails

Kaufpreis
337800 €
2.098,14 €/m²
Provision für Käufer
provisionsfrei; Bei Abschluss eines Kaufvertrages wird eine Vermittlungs-/ Nachweisprovision in Höhe von 3,25 % inklusive 19 % Mehrwertsteuer auf den Kaufpreis vom Käufer fällig.
Geschätzte Gesamtkosten
356.379 €1
Kaufpreis
337.800 €
Notarkosten (1,5%)
5.067 €
Grunderwerbsteuer (3,5%)
11.823 €
Grundbucheintrag (0,5%)
1.689 €
1Der angezeigte Wert ist eine automatisch berechnete Schätzung von immowelt.
2Bei den Angaben handelt es sich um ortsübliche Werte. Individuelle Kosten können abweichen.

Lage

address-icon
SachsenLeutershausen (91578)
Der Anbieter hat die genaue Adresse nicht freigegeben
Leutershausen liegt malerisch im Herzen Mittelfrankens und verbindet historischen Charme mit moderner Lebensqualität. Die lebendige Stadt mit rund 6.000 Einwohnern bietet eine attraktive Mischung aus Kultur, Freizeitmöglichkeiten und naturnaher Umgebung. Mit guter Verkehrsanbindung und engagierter Gemeinschaft ist Leutershausen der perfekte Ort zum Wohnen, Arbeiten und Wohlfühlen.

Weitere Informationen

Sonstiges Spricht Sie dieses Angebot nicht an? Bitte beachten Sie auch meine weiteren Angebote im mittelfränkischen Raum auf meiner Anbieterseite!

Nutzen Sie auch unseren kompetenten Finanzierungsservice! Unsere Stärke ist der umfassende Service, die Baubetreuung vor Ort und unsere langjährige Erfahrung! Unser Antrieb ist Ihre Zufriedenheit! Testen Sie uns und reservieren Sie sich einen kostenlosen Gesprächstermin! Ich freue mich auf Ihren Besuch. Stichworte 2 Etagen

Weitere Services

Lust auf eine Besichtigung?
Eine Frage zur Immobilie?
Nachricht hinzufügen
Mit der Nutzung der oben angegebenen Telefonnummer oder durch Klicken auf „Kontaktieren“ akzeptierst Du die Allgemeinen Nutzungsbedingungen, denen Du jederzeit widersprechen kannst. Weitere Informationen zum Datenschutz

Über den Anbieter

Elpersdorf 22, 91575 Windsbach
Gregor HeupelDein Kontakt
Online-ID: 26Z5XHWVYDYG
Referenznummer: 1533-63-kw14-9700
massa haus - Gregor Heupel
massa haus - Gregor Heupel
Nachricht hinzufügen
Mit der Nutzung der oben angegebenen Telefonnummer oder durch Klicken auf „Kontaktieren“ akzeptierst Du die Allgemeinen Nutzungsbedingungen, denen Du jederzeit widersprechen kannst. Weitere Informationen zum Datenschutz
MediumRectangleTop
MediumRectangleTop
Wie zufrieden bist du mit dieser Seite (nicht mit der Immobilie selbst)?