Version: 8.24.0Navigation überspringen
HERON Immobilien GmbH
1.740 €
2 Zimmer  •  64,9 m²  •  3. Geschoss

Wohnung zur Miete
1.740 €
2 Zimmer  •  64,9 m²  •  3. Geschoss

ZENTRAL - Hochwertige & Möblierte 2-Zimmer-Stadtwohnung mit Balkon mitten in Stuttgart-Mitte

Diese modernisierte 2-Zimmer-Wohnung aus dem Jahr 1975 befindet sich in bester Lage direkt am Berliner Platz - mitten im Zentrum von Stuttgart. Auf rund 64,88 Quadratmetern erwartet Sie ein durchdachter Grundriss mit großzügigen, hellen Räumen und hochwertiger Ausstattung.

Ein besonderes Highlight ist der Balkon mit Blick ins Umfeld, der zum Entspannen und Verweilen einlädt.

Die moderne Einbauküche ist mit hochwertigen Geräten ausgestattet und bietet viel Stauraum sowie Platz für gemeinsames Kochen. Das lichtdurchflutete Wohn- und Esszimmer lässt sich individuell gestalten und sorgt für eine angenehme Wohnatmosphäre. Das gemütliche Schlafzimmer verfügt über eine Klimaanlage und bietet ausreichend Platz für ein großes Bett und einen Kleiderschrank. Auch von hier gelangen Sie direkt auf den Balkon.

Das gepflegte Badezimmer ist mit einer modernen Duschkabine und zeitgemäßen Sanitäranlagen ausgestattet. Zwei separate Kellerräume bieten zusätzlichen Stauraum.

Die Wohnung wird möbliert und auf Zeit (6 bis 12 Monate) vermietet und eignet sich ideal für Singles, Paare oder Berufstätige, die das Stadtleben in zentraler und gepflegter Umgebung genießen möchten. Eine Kaution in Höhe von bis zu drei Monatskaltmieten ist vorgesehen.

Bitte beachten Sie:

Die aktuell abgebildeten Möbel auf den Fotos können von der tatsächlichen Möblierung abweichen.

Heizkosten und Stromkosten sind vom Mieter separat zu tragen.

Vereinbaren Sie jetzt eine Besichtigung und lassen Sie sich vor Ort von dieser besonderen Wohnung überzeugen.

Merkmale

  • Bezug: Ab sofort
  • 3. Geschoss
  • Einbauküche
  • Kelleranteil
  • Balkon
  • Bodenbelag: Fliesen, Parkett
15. Gründe, warum diese Wohnung in Stuttgart-Mitte überzeugt:

1. Zentrale Lage direkt am Berliner Platz
Urbanes Leben in bester Innenstadtlage - alles Wichtige liegt nur wenige Schritte entfernt.

2. Optimal geschnittener Grundriss auf ca. 64,88 m²
Großzügige, helle Räume mit klarer Struktur - ideal für Singles oder Paare.

3. Komplett modernisiert im Jahr 2014
Elektro, Wasser, Estrich, Böden, Küche, Wände und Decken wurden umfangreich erneuert.

4. Brickwand im Wohnzimmer
Ein stilvoller Akzent, der der Wohnung Charakter und ein modernes Wohngefühl verleiht.

5. Neue Klimaanlage im Schlafzimmer (2024)
Höchster Komfort auch im Sommer - mit effizientem Split-Gerät.

6. Tageslichtbad mit Fenster
Freundlich, hell und natürlich belüftet - für ein frisches Raumklima.

7. Zeitlose Einbauküche mit Stauraum
Praktisch eingerichtet für den Alltag, optisch ansprechend und gepflegt.

8. Zwei separate Kellerräume
Perfekt für zusätzlichen Stauraum oder zur Aufbewahrung saisonaler Dinge.

9. Fliesen und Parkett in hochwertiger Ausführung
Pflegeleicht, langlebig und stilvoll - mit wohnlicher Ausstrahlung.

10. Abgehängte Decken mit integrierten Spots
Modernes Lichtkonzept für eine angenehme Atmosphäre in allen Wohnräumen.

11. Fenster im Badezimmer erneuert (2014)
Für bessere Isolierung und natürliche Lichtverhältnisse im Bad.

12. Fenster neu lackiert (2024)
Optisch aufgewertet und gepflegt - Details, die zählen.

13. Wände neu gestrichen (2024)
Frisch renoviert und bezugsfertig - ganz ohne Aufwand.

14. Parkettboden geschliffen und geölt (2024)
Aufgearbeitet für ein natürliches, edles Wohngefühl.

15. Sofort bezugsbereit ohne Renovierungsstau
Einziehen, wohlfühlen und das Stadtleben genießen - ganz ohne Zusatzkosten oder Umbauten.

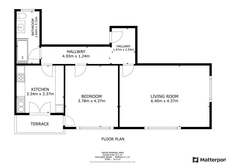
Grundrisse

Grundrisse
1 / 2

Realisiere Dein Projekt

Bausubstanz und Energie

Energieausweis

E
  • Baujahr1975
  • HeizungsartEtagenheizung
  • EnergieträgerGas
MediumRectangleTop

Mietkosten

Warmmiete
1.740 €
Kaltmiete
nicht angegeben
Kaution
4300 €

Lage

address-icon
MitteStuttgart (70174)
Der Anbieter hat die genaue Adresse nicht freigegeben
Der Berliner Platz befindet sich mitten im Herzen von Stuttgart und zählt zu den zentralsten und gefragtesten Wohnlagen der Stadt. Direkt vor der Tür erleben Sie urbanes Leben mit kurzen Wegen zu allem, was das Stadtleben attraktiv macht.

Ob Einkaufen, Ausgehen oder Kultur - rund um den Berliner Platz finden Sie zahlreiche Geschäfte, Cafés, Restaurants, Bars sowie renommierte Kultureinrichtungen wie das Staatstheater, die Liederhalle oder das Kunstmuseum. Auch der Schlossgarten und weitere Grünflächen sind bequem zu Fuß erreichbar und bieten Raum für Erholung im Alltag.

Die Anbindung an den öffentlichen Nahverkehr ist ausgezeichnet. U-Bahn-, Bus- und S-Bahn-Linien bringen Sie schnell und unkompliziert durch die gesamte Stadt. Der Stuttgarter Hauptbahnhof ist nur wenige Minuten entfernt und sichert die schnelle Verbindung innerhalb der Region und darüber hinaus.

Diese Lage bietet Ihnen alles, was modernes Stadtleben ausmacht - zentral, lebendig und komfortabel.

Weitere Informationen

Sonstiges Wir versenden das Exposé mit der virtuellen Besichtigung und der Anschrift des Hauses automatisch nach Erhalt Ihrer Anfrage an die angegebene E-Mail-Adresse. Falls diese E-Mail in Ihrem Postfach unauffindbar ist, überprüfen Sie bitte Ihren SPAM-Ordner. Stichworte Anzahl der Schlafzimmer: 1, Anzahl der Badezimmer: 1, Anzahl Balkone: 1, Bundesland: Baden-Württemberg, 5 Etagen, modernisiert

Weitere Services

Lust auf eine Besichtigung?
Eine Frage zur Immobilie?
Nachricht hinzufügen
Mit der Nutzung der oben angegebenen Telefonnummer oder durch Klicken auf „Kontaktieren“ akzeptierst Du die Allgemeinen Nutzungsbedingungen, denen Du jederzeit widersprechen kannst. Weitere Informationen zum Datenschutz

Über den Anbieter

Stuttgarter Straße 96, 70736 Fellbach
partner badge
Partnerschaft
Herr Emirkan LeylekDein Kontakt
Online-ID: 2lfxl52
Referenznummer: 1/18S01424M
HERON Immobilien GmbH
HERON Immobilien GmbH
Bewertung: 4,5 von 5 Sternen
Nachricht hinzufügen
Mit der Nutzung der oben angegebenen Telefonnummer oder durch Klicken auf „Kontaktieren“ akzeptierst Du die Allgemeinen Nutzungsbedingungen, denen Du jederzeit widersprechen kannst. Weitere Informationen zum Datenschutz
MediumRectangleTop
MediumRectangleBottom
MediumRectangleTop
Wie zufrieden bist du mit dieser Seite (nicht mit der Immobilie selbst)?