Hausbau mit Kern-Haus: Regional, Ehrlich & Zuverlässig!
Der lichtdurchflutete Wohntraum 'Signus' lässt keine Wünsche offen. Auf zwei Vollgeschossen findet die ganze Familie Platz, um sich zu entspannen und frei zu entfalten. Die bodentiefen Fensterelemente machen das Haus zu einem Wohnerlebnis und zeigen die Großzügigkeit dieser zeitlosen Stadtvilla.
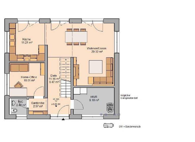
Gleich im Eingangsbereich zeigt die Stadtvilla Signus durch ihre Offenheit was sie zu bieten hat. Eine große Garderobe verstaut die Jacken und Mäntel der Bewohner sowie Besucher. Über einen langen Flur, vorbei an der geradläufigen Treppe, gelangen Sie in den Wohn-/Essbereich des Hauses, an den auch die offene Küche Anschluss findet. Von hier bieten die bodentiefen Fenster einen herrlichen Blick in den Garten. Des Weiteren befindet sich im Erdgeschoss ein Home-Office, das auch als Gäste-Zimmer genutzt werden kann, als auch ein Hauswirtschaftsraum und ein Gäste-WC.
Im Obergeschoss steht das Wohlbefinden jedes einzelnen Familienmitglieds im Vordergrund. Die Räume der Kinder sind großzügig gestaltet und sind ein angenehmer Rückzugsort. Das Elternschlafzimmer verfügt über ein angrenzendes Ankleidezimmer. Im Wellness-Bad kann die ganze Familie nach Herzenslust die Seele baumeln lassen.
Dieses Haus wird nach Ihren individuellen Wünschen geplant und ausgestattet!
+ Massivhaus als Ausbauhaus im Sinne der Bau- und Ausstattungsbeschreibung "Paulo" + Gebäudehülle ist für Effizienzhaus 40 optimiert + Inklusive Bodenplatte + Architekten- und Ingenieurleistungen (u. a. Bauantrag, Werkplanung, Statik und Wärmeschutzberechnung) + Zimmermannsmäßiger Dachstuhl aus Konstruktionsvollholz + Dacheindeckung mit Betondachsteinen von Braas mit Star-Oberfläche + Hochwertiger Kunstharz-Außenputz für eine langlebige Fassade + Haustür mit 5-fach-Sicherheitsverriegelung + Fenster mit 3-Scheiben-Wärmeschutzverglasung und Rollläden + Dachflächenfenster von Velux oder Roto + Granitaustrittsschwellen an bodengleichen Terrassentüren
Grundrisse
Grundrisse
1 / 2
Realisiere Dein Projekt
Bausubstanz und Energie
Energieausweis
Der Anbieter hat keine Daten zum Energieausweis hinterlegt.
Baujahr2026
Zustand der ImmobilieNeubau, Projektiert
HeizungsartZentralheizung
Preisdetails
Kaufpreis
481900 €481.900 €
3.278,23 €/m²
Provision für Käufer
provisionsfrei
Geschätzte Gesamtkosten
518.044 €1
Kaufpreis
481.900 €
Kaufnebenkosten
36.144 €
2
Notarkosten (1,5%)
7.229 €
Grunderwerbsteuer (5,5%)
26.505 €
Grundbucheintrag (0,5%)
2.410 €
1Der angezeigte Wert ist eine automatisch berechnete Schätzung von immowelt.
2Bei den Angaben handelt es sich um ortsübliche Werte. Individuelle Kosten können abweichen.
Lage
Meerane (08393)
Der Anbieter hat die genaue Adresse nicht freigegeben
Das schöne Grundstück befindet sich im Norden von Meerane und ist an einem Park gelegen.
Der Preis versteht sich inklusive Grundstück und exklusive Baunebenkosten. Wir planen jedes Kern-Haus individuell nach Ihren Wünschen und passen es in das Grundstück ein.
Weitere Informationen
Sonstiges
Kern-Haus
Kern-Haus baut individuelle und massive Architektenhäuser zu einem attraktiven Preis-Leistungs-Verhältnis - und das bereits mit einer Erfahrung seit 1980.
Maximale Sicherheit bei Kern-Haus: + 10 Jahre Gewährleistung auf die wesentlichen Bauleistungen + Bis zu 18 Monate Festpreisbindung + 50 Jahre Gewährleistung auf das DuoTherm-Mauerwerk + Verbindliche Bauzeit + Zahlung nach Baufortschritt
Preise und Auszeichnungen von Kern-Haus: - German Brand Award in den Jahren 2018 und 2021 - Hausbau Design Award: Sieger in den Jahren 2017, 2018, 2019, 2020, 2021, 2022 und 2023 - Deutscher Traumhauspreis: Sieger in den Jahren 2014, 2015, 2016 und 2018 und Silber 2017, 2020 und 2021 - Mittelstandspreis "Top 100" in den Jahren 2014, 2016, 2018, 2020 und 2022 - German Design Award im Jahr 2018
Weitere Informationen
Der gezeigte Preis versteht sich inklusive Grundstück und exklusive der Baunebenkosten.
Kern-Haus in Chemnitz - https://www.kern-haus.de/chemnitz/
Weitere Architektenhäuser - https://www.kern-haus.de/haeuser
Stichworte
Stellplatz vorhanden, Anzahl der Schlafzimmer: 4, Anzahl der separaten WCs: 1