Dieses außergewöhnliche Fertighaus von LivingHaus wird nach deinen Wünschen und Vorstellungen gestaltet und bietet dir mit seinen 140 m² Wohnfläche und fünf Zimmern die perfekte Basis für dein zukünftiges Zuhause. Der klassische Satteldachstil sorgt nicht nur für ein zeitloses Aussehen, sondern bietet auch ausreichend Platz für deine persönliche Photovoltaikanlage, um nachhaltig Energie zu erzeugen. Das innovative Querhaus mit Flachdach erweitert den Wohnraum im Erdgeschoss und Obergeschoss erheblich. Hier kannst du ein großzügiges Arbeitszimmer einrichten oder in der oberen Galerie eine gemütliche Leseecke schaffen, die mit voller Deckenhöhe und viel Licht zum Entspannen einlädt. Mit drei Schlafzimmern und einem Badezimmer bietet dieses Haus genügend Raum für eine Familie oder als Rückzugsort für dich und deine Liebsten. Darüber hinaus erhältst du bei LivingHaus eine Vielzahl von Zusatzleistungen, die dein Bauprojekt weiter optimieren. Die hochwertige Traumküche wird speziell für deinen Grundriss angefertigt und mit modernster Technik sowie cleveren Stauraumlösungen ausgestattet. Das LivingHaus Bau-Cockpit sorgt dafür, dass du jederzeit den Überblick über dein Bauprojekt behältst und alles digital und einfach zugänglich ist. Mit I-KON, dem intelligenten Baukonzept von LivingHaus, wird dein neues Zuhause energieeffizient und umweltfreundlich. Das Zuhause-Darlehen bietet dir zudem die Möglichkeit, dein Traumhaus zu attraktiven Konditionen zu finanzieren. Das Zuhause-Paket garantiert dir eine hochwertige Grundausstattung, während das DIY-Ausbau-Coaching dir die Möglichkeit gibt, deinen Innenausbau selbst in die Hand zu nehmen und dabei wertvolle Tipps von Experten zu erhalten. Erlebe ein individuelles Zuhause, das perfekt auf deine Bedürfnisse abgestimmt ist!
Merkmale
600 m² Grundstück
Kein Keller
Gäste-WC
Die Ausstattung deines neuen LivingHaus ist auf höchste Qualität und Funktionalität ausgelegt. Du profitierst von einer hochwertigen Grundausstattung, die moderne Böden, edle Türen und stilvolle Sanitäranlagen umfasst. Innovative Dämmungen und eine moderne Wärmepumpentechnik sorgen für ein angenehmes Raumklima und effizientes Heizen. Die Küche wird individuell nach deinen Vorstellungen geplant, sodass du sofort mit dem Kochen beginnen kannst. Das Zuhause-Paket bietet dir alles, was du für einen komfortablen Start benötigst. Zudem erhältst du Unterstützung durch das DIY-Ausbau-Coaching, damit du auch im Innenausbau kreativ werden kannst. Dein Zuhause wird so zu deinem persönlichen Rückzugsort, perfekt gestaltet nach deinen Wünschen!
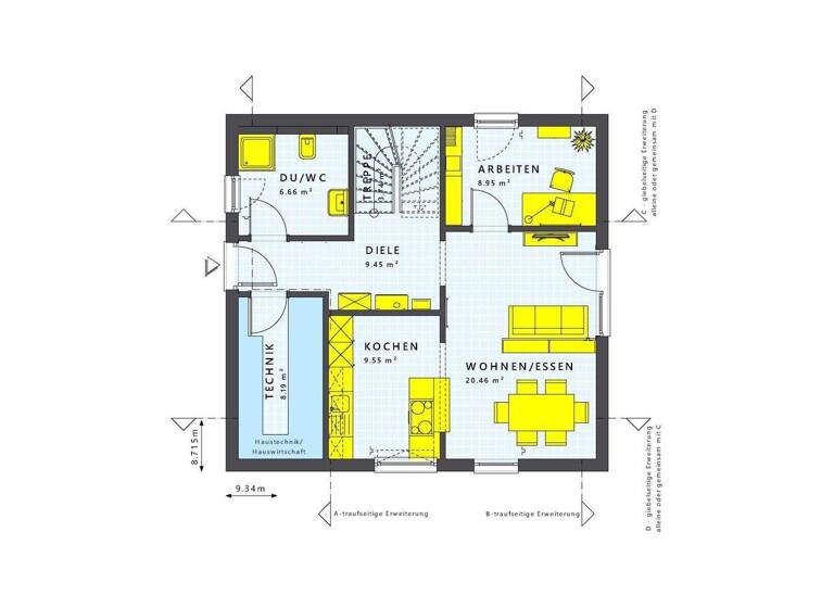
Grundrisse
Grundrisse
1 / 2
Realisiere Dein Projekt
Bausubstanz und Energie
Der Anbieter hat keine Informationen zum Energieverbrauch bereit gestellt.
Zustand der ImmobilieProjektiert
Preisdetails
Kaufpreis
1102894 €1.102.894 €
7.877,81 €/m²
Provision für Käufer
Die Provision wird auf das Grundstück erhoben.
Geschätzte Gesamtkosten
1.202.925 €1
Kaufpreis
1.102.894 €
Kaufnebenkosten
100.031 €
2
Notarkosten (1,5%)
16.543 €
Grunderwerbsteuer (3,5%)
38.601 €
Provision für Käufer (3,57%)
39.373 €
Grundbucheintrag (0,5%)
5.514 €
1Der angezeigte Wert ist eine automatisch berechnete Schätzung von immowelt.
2Bei den Angaben handelt es sich um ortsübliche Werte. Individuelle Kosten können abweichen.
Lage
Höhenrain, Berg (82335)
Der Anbieter hat die genaue Adresse nicht freigegeben
In der idyllischen Umgebung von Berg findest du alles, was du für deinen Alltag benötigst. Zahlreiche Schulen und Kindergärten, wie die Grundschule Berg, bieten eine exzellente Bildung für deine Kinder. Auch die Anbindung an öffentliche Verkehrsmittel ist hervorragend, sodass Pendler schnell und bequem in die umliegenden Städte gelangen. Supermärkte wie Edeka und Lidl sind nur einen kurzen Fußweg entfernt und versorgen dich mit allem Notwendigen. Für die Gesundheit stehen dir Arztpraxen und eine Apotheke in der Nähe zur Verfügung. Berg ist zudem von einer wunderschönen Natur umgeben, ideal für Freizeitaktivitäten wie Wandern und Radfahren. Besuche die nahegelegenen Parks oder genieße entspannte Nachmittage an den Seen der Umgebung. Die Autobahn A9 ist in wenigen Minuten erreichbar und bietet eine schnelle Verbindung zu größeren Städten. Der Ort ist somit nicht nur perfekt für Familien, sondern auch für Naturliebhaber und Berufspendler, die Wert auf eine hohe Lebensqualität legen.
Weitere Informationen
Sonstiges
Bitte beachten Sie, dass die auf den Bildern dargestellten Häuser und Grundrisse lediglich Beispiele darstellen. Alle Grundrisse sind nach Ihren individuellen Wünschen und Bedürfnissen anpassbar. Zudem können alle Dachformen je nach Ihren Vorstellungen und Anforderungen umgesetzt werden. Kontaktieren Sie uns gerne für weitere Informationen und lassen Sie sich von unseren Experten beraten.
Bitte beachten Sie, dass der Zwischenverkauf des Grundstücks vorbehalten ist. Es besteht daher kein Rechtsanspruch auf den Kauf des Grundstücks. Wir empfehlen Ihnen daher, sich bei Interesse zeitnah mit uns in Verbindung zu setzen, um die Verfügbarkeit und die aktuellen Konditionen zu klären. Wir freuen uns darauf, Sie zu beraten!
Dieses Angebot zeigt exemplarisch ein noch zu bauendes LivingHaus. Das Grundstück ist im angebotenen Preis bereits inklusive. Gerne finden wir auch ein Grundstück an einer anderen Stelle für Sie. Sowohl das gezeigte Haus als auch die angegebene Ausbaustufe lassen sich individuell an Ihre Bedürfnisse anpassen.
Stichworte
Anzahl der Schlafzimmer: 3, Anzahl der Badezimmer: 1