Version: 8.25.1Navigation überspringen
Deutsche Industriebau GmbH
5,95 €
1 Zimmer  •  550 m² Bürofläche

Büro zur Miete • provisionsfrei
5,95 €
/m²
1 Zimmer  •  550 m² Bürofläche

Büro- und Praxisflächen im Businesspark - Lippe - Ems zu verpachten

Das im Jahre 2020 komplett umgebaute und sehr repräsentative Gebäude im Businesspark Lippe-Ems bietet sich optimal für moderne Büro- und Praxisflächen an. Sanitärräume sind ebenfalls vorhanden. Die Räume werden mit einem hochwertigem Bodenbelag ausgestattet und bieten eine großzügige und helle Atmosphäre.

Optional stehen zudem Lagermöglichkeiten zur Verfügung.

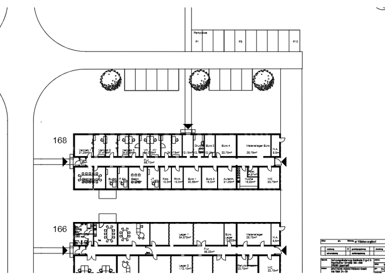
Grundrisse

Grundrisse
1 / 1

Realisiere Dein Projekt

Bausubstanz und Energie

Energieausweis

Ein Energieausweis ist für diesen Gebäudetyp nicht notwendig.
MediumRectangleTop

Mietkosten

Nettomiete zzgl. Nebenkosten
5,95 €/m²
3.272,50 €
Provision für Mieter
provisionsfrei
Kaution
keine Angabe

Lage

address-icon
Mastholter Straße 168LipperbruchLippstadt (59558)
Der Business Park liegt in optimaler Lage im Vier-Landkreise-Kreuz: SOEST,
WARENDORF, PADERBORN, GÜTERSLOH und zeichnet sich durch die top
überregionale Verkehrsanbindung an die B55 sowie die Autobahnen A2/A44 aus.

Nutzen Sie die positiven Synergieeffekte eines einzigartigen Branchen-Mixes in einem dynamischen Standort für Business & Arbeitsqualität, der einen hohen Grundumsatz garantiert.

Parkplätze direkt am Objekt verfügbar.

Weitere Informationen

Sonstiges Mtl. Mietpreis ab 4,75 €/m² zzgl. MwSt. und NK!

Makler- und Provisionsfrei direkt vom Eigentümer zu vermieten.

Weitere Services

Lust auf eine Besichtigung?
Eine Frage zur Immobilie?
Mit einer persönlichen Nachricht hast du bessere Chancen auf eine Antwort.
Mit der Nutzung der oben angegebenen Telefonnummer oder durch Klicken auf „Kontaktieren“ akzeptierst Du die Allgemeinen Nutzungsbedingungen, denen Du jederzeit widersprechen kannst. Weitere Informationen zum Datenschutz

Über den Anbieter

Am Siek 24-26, 59557 Lippstadt
partner badge
10 Jahre Partnerschaft
Team ImmobilienabteilungDein Kontakt
Online-ID: 265AVSGHVFME
Deutsche Industriebau GmbH
Deutsche Industriebau GmbH
Bewertung: 4 von 5 Sternen
Mit einer persönlichen Nachricht hast du bessere Chancen auf eine Antwort.
Mit der Nutzung der oben angegebenen Telefonnummer oder durch Klicken auf „Kontaktieren“ akzeptierst Du die Allgemeinen Nutzungsbedingungen, denen Du jederzeit widersprechen kannst. Weitere Informationen zum Datenschutz
MediumRectangleTop
MediumRectangleBottom
MediumRectangleTop
Wie zufrieden bist du mit dieser Seite (nicht mit der Immobilie selbst)?