Version: 8.25.1Navigation überspringen
242 €
22 m² Lagerfläche  •  teilbar ab 20 m²
Immowelt logo

Lagerhalle zur Miete • provisionsfrei
242 €
/m²
22 m² Lagerfläche  •  teilbar ab 20 m²

Beheizte Lagerräume (20-36 m²) mit bis zu 4,20 m Deckenhöhe in KW-Oberpleis - sofort verfügbar!!

Sie suchen einen sicheren, flexiblen und komfortablen Lagerort für Ihre persönlichen oder geschäftlichen Gegenstände?
Unsere modernen Lagerflächen in Königswinter bieten Ihnen die ideale Lösung, wenn Sie Wert auf Sicherheit, Erreichbarkeit und Flexibilität legen.

Mit einem individuellen Zahlencode haben sie jederzeit Zugang zu Ihrem Lagerraum. So bleiben sie unabhängig und können Ihre Gegenstände ganz nach Ihrem Bedarf ein- oder auslagern.

Die Räume zeichnen sich durch eine Deckenhöhe von 4,20m aus und bieten dadurch auch Platz für sperrige Gegenstände. Für ein trockenes Raumklima sorgt eine Fußbodenheizung, die ihre Lagerfläche gleichmäßig temperiert und so die eingelagerten Gegenstände zusätzlich schützt.

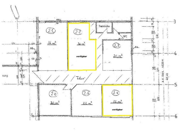
Folgende Lagerflächen sind noch frei, die wir Ihnen zu folgenden Preisen anbieten können:

- 22 m² = 290 EUR pauschal/warm
- 36 m² = 395 EUR pauschal/warm

Weitere Lagerflächen auf Anfrage.

Das Lager umfasst insgesamt 1000 m². Je nach Bedarf können Sie zwischen verschiedenen Größen wählen und somit Ihren individuellen Lagerbedarf selbst decken.

Wir freuen uns auf Ihre schriftliche Kontaktanfrage.

Merkmale

  • Bezug: sofort
  • Bodenbelag: Fliesen
- Beheizte Lagerflächen über Fußbodenheizung
- Deckenhöhe ca. 4,20m
- alle Lager sind beleuchtet
- Zugangstüren mit 1,2m Breite
- Parkmöglichkeiten vor Ort
- Zugang 24/7 per Zahlencode

Grundrisse

Grundrisse
1 / 1

Realisiere Dein Projekt

Bausubstanz und Energie

Energieausweis

Endenergiebedarf (Wärme)

Endenergiebedarf (Strom)

  • Baujahr1984
  • Zustand der ImmobilieGepflegt
  • HeizungsartFußbodenheizung
  • EnergieträgerGas
Immowelt logo

Mietkosten

Monatliche Miete
242 €/m²
Nebenkosten
48 €
Provision für Mieter
provisionsfrei
Kaution
870 €

Lage

address-icon
Auf der Alten Burg 5OberpleisKönigswinter (53639)
Die Lagerboxen befinden sich im begehrten Königswinter-Oberpleis. Königswinter bietet eine ideale Kombination aus Natur, Ruhe und Infrastruktur.

Die Anbindung an Bonn sowie Köln ist komfortabel, sowohl über die Autobahn als auch über die öffentlichen Verkehrsmittel. Die Autobahnausfahrt Siebengebirge /Königswinter der A3 liegt nur 3,5 km und 5 Fahrminuten von unserem Lager entfernt.

Der Standort Oberpleis zeichnet sich durch eine zentrale und perfekt erreichbare Infrastruktur aus.

Weitere Informationen

Sonstiges Der Mieter zahlt im Erfolgsfall an den Makler eine Courtage in Höhe von 595,00EUR (inklusive 19% Mehrwertsteuer). Alle Angaben sind nach bestem Wissen und Gewissen gemacht. Dieses Exposé ist eine Vorinformation, als Rechtsgrundlage gilt der unterzeichnete Mietvertrag. Stichworte Lagerfläche: 22,00 m², Nutzfläche: 22,00 m², Gesamtfläche: 22,00 m²

Weitere Services

Lust auf eine Besichtigung?
Eine Frage zur Immobilie?
Mit einer persönlichen Nachricht hast du bessere Chancen auf eine Antwort.
Mit der Nutzung der oben angegebenen Telefonnummer oder durch Klicken auf „Kontaktieren“ akzeptierst Du die Allgemeinen Nutzungsbedingungen, denen Du jederzeit widersprechen kannst. Weitere Informationen zum Datenschutz

Über den Anbieter

Frankfurter Straße 73a, 53773 Hennef
partner badge
10 Jahre Partnerschaft
Frank WalbrölDein Kontakt
Online-ID: 2538TPX5E5K5
Referenznummer: IF-639-ST
Immo-Connect GmbH
Immo-Connect GmbH
Mit einer persönlichen Nachricht hast du bessere Chancen auf eine Antwort.
Mit der Nutzung der oben angegebenen Telefonnummer oder durch Klicken auf „Kontaktieren“ akzeptierst Du die Allgemeinen Nutzungsbedingungen, denen Du jederzeit widersprechen kannst. Weitere Informationen zum Datenschutz
Wie zufrieden bist du mit dieser Seite (nicht mit der Immobilie selbst)?