

Wohnung zur Miete800 €3 Zimmer • 90 m² • Geschoss 1/2 • frei ab 01.07.2026
800 €
3 Zimmer • 90 m² • Geschoss 1/2 • frei ab 01.07.2026
Komfortable 3-Zimmer-Wohnung in Stadtmitte
Merkmale
- frei ab 01.07.2026
- Nicht möbliert
- 1. Geschoss/2 Geschossen
- Badezimmer: Badewanne, Bad mit Dusche
- 1 WC, Gäste-WC
- Keller (gesamt 10 m²)
- Außen-Stellplatz
- Fenster: Kunststoff
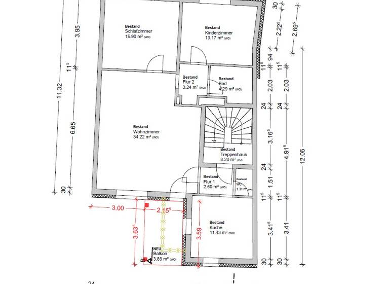
Grundrisse
Grundrisse
1 / 1
Realisiere Dein Projekt
Bausubstanz und Energie
Energieausweis
A+
- Letzte Modernisierung2023
- Zustand der ImmobilieSaniert
- HaustypPlus-Energie-Haus
- HeizungsartZentralheizung: Heizkörper
- EnergieträgerLuft-/Wasser-Wärmepumpe
Mietkosten
Warmmiete
1.050 €
Kaltmiete
8,89 €/m²
800 €
Heizkosten
in Nebenkosten enthalten
Zusätzliche Kosten
Miete pro Stellplatz
40 €
Kaution
2400 €
Lage

Steingasse 15, Bad Neustadt, Bad Neustadt an der Saale (97616)
Weitere Informationen
Weitere Services
Lust auf eine Besichtigung?
Eine Frage zur Immobilie?
Über den Anbieter
Hoher Markstein 3, 97631 Bad Königshofen
3 Jahre Partnerschaft
Herr Waldemar MichaelisDein Kontakt
Online-ID: 268EFKW67YVC
KG Projekt GmbH & Co. KG
Wie zufrieden bist du mit dieser Seite (nicht mit der Immobilie selbst)?