Entdecken Sie dieses charmante Einfamilienhaus in Schönborn, das durch seinen zeitlosen Charakter und ausgezeichneten Zustand besticht. Ursprünglich im Jahr 1910 erbaut, bietet das gepflegte Haus eine perfekte Kombination aus historischer Eleganz und modernem Komfort. Auf einer großzügigen Grundstücksfläche von ca. 457 m² finden Sie viel Platz für Erholung und Gestaltungsmöglichkeiten.
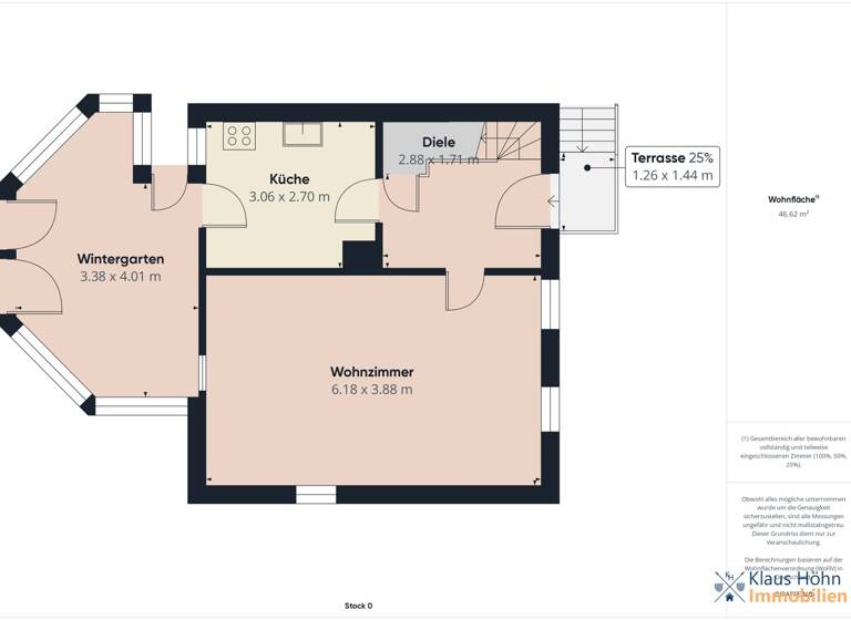
Das Haus erstreckt sich über eine Wohnfläche von ca. 109 m² und bietet eine funktionale Aufteilung mit insgesamt 5 Zimmern. Diese umfassen zwei Schlafzimmer, ideal für familiäres Wohnen, sowie ein komfortables Badezimmer. Hinzu kommt eine zusätzliche Nutzfläche von ca. 65 m², die vielfältige Verwendungsmöglichkeiten bietet.
Praktischerweise ist das Haus vollständig unterkellert, was zusätzlichen Stauraum und Flexibilität garantiert. Der liebevoll gepflegte Zustand des Hauses macht es sofort bezugsfertig und zu einem einladenden Zuhause für Ihre Familie.
Nutzen Sie diese seltene Gelegenheit, ein Stück Geschichte in einer malerischen Umgebung zu erwerben, und fühlen Sie sich in Schönborn wie zu Hause. Kontaktieren Sie uns für weitere Informationen oder um einen Besichtigungstermin zu vereinbaren!
3,57 % inkl.MwSt. auf den Kaufpreis. Zahlbar vom Käufer und fällig mit der notariellen Beurkundung.
Weitere Preisinformationen
1 Carportplatz 4 Stellplätze
Geschätzte Gesamtkosten
182.994 €1
Kaufpreis
165.500 €
Kaufnebenkosten
17.494 €
2
Notarkosten (1,5%)
2.483 €
Grunderwerbsteuer (5%)
8.275 €
Provision für Käufer (3,57%)
5.908 €
Grundbucheintrag (0,5%)
828 €
1Der angezeigte Wert ist eine automatisch berechnete Schätzung von immowelt.
2Bei den Angaben handelt es sich um ortsübliche Werte. Individuelle Kosten können abweichen.
Lage
Schönborn (56370)
Der Anbieter hat die genaue Adresse nicht freigegeben
Das charmante Einfamilienhaus befindet sich in dem idyllischen Ort Schönborn im Herzen Deutschlands. Mit einer Entfernung von nur 200 Metern zum Ortszentrum bietet es die perfekte Balance zwischen Ruhe und zentraler Lage. Besonders familienfreundlich gestaltet sich die Nachbarschaft, denn ein Kindergarten ist lediglich 250 Meter entfernt und bequem zu Fuß erreichbar.
Für ältere Kinder befinden sich eine Grundschule sowie eine Realschule in einem Umkreis von nur 4 Kilometern, was einen kurzen Schulweg ermöglicht. Darüber hinaus ist ein Gymnasium in 15 Kilometern Distanz leicht zu erreichen, wodurch alle Bildungsstufen gut abgedeckt sind.
Die verkehrsgünstige Anbindung an die Autobahn in nur 15 Kilometern Entfernung sorgt für Flexibilität und Mobilität. Dadurch sind sowohl Pendler als auch Reisende bestens an das überregionale Straßennetz angebunden.
Schönborn ist eingebettet in eine malerische Landschaft, die zu Outdoor-Aktivitäten und Entspannung einlädt. Zusammengefasst bietet diese Lage eine perfekte Kombination aus ländlichem Charme und städtischer Anbindung, ideal für Familien, die sich umgeben von einer harmonischen Gemeinschaft niederlassen möchten.
Weitere Informationen
Sonstiges
Energieausweis: Bedarfsausweis 'Baujahr lt. Energieausweis': '1910' 'wesentlicher Energieträger': Öl
Stichworte
Nutzfläche: 65,00 m², Anzahl der Schlafzimmer: 2, Anzahl der Badezimmer: 1, Anzahl der separaten WCs: 1, Distanz zum Kindergarten: 0.25, Distanz zur Grundschule: 4.00, Distanz zur Realschule: 4.00, Distanz zum Gymnasium: 15.00, Distanz zur Autobahn: 15.00, Distanz vom Zentrum: 0.30