

Wartstein Immobilien Service
Herr Köksal Celik
073 ···
Nr. anzeigenPreise & Kosten
Verhandlungsbasis
Provision für Käufer
Käuferprovision: 3,57 % inkl. gesetzl. MwSt.
Provisionshinweis: Die Provision wird fällig bei Abschluss des notariellen Kaufvertrags.
Lage
Die Gewerbefläche befindet sich in einer der besten Lagen von Ehingen, umgeben von hoher Fußgängerfrequenz und gut erreichbaren Anbindungen. In unmittelbarer Nähe finden Sie zahlreiche Einkaufsmöglichkeiten, Restaurants und Dienstleistungen, die zu einer lebendigen Nachbarschaft beitragen.
Die zentrale Lage sorgt dafür...
Gastronomie/Hotel
Kategorie
Café/Bar
Baujahr
1960
Bezug
sofort
Derzeitige Nutzung
vermietet
Sitzplätze
60
Energie & Heizung
Warum sehe ich diese Anzeige? – Du siehst diese Anzeige basierend auf Ihrer Navigation auf unserer Website und den Suchkriterien, die du verwendet hast.
Energieausweistyp
Verbrauchsausweis
Gebäudetyp
Wohngebäude
Wesentliche Energieträger
Öl
Effizienzklasse
F
Endenergieverbrauch
172,50 kWh/(m²·a)
Weitere Energiedaten
Energieträger
Öl
Heizungsart
Zentralheizung
Details
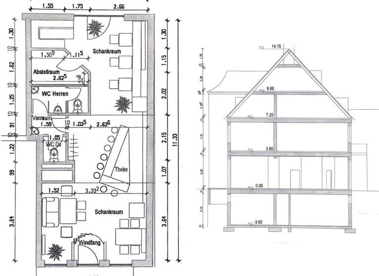
Objektbeschreibung
Entdecken Sie diese hochattraktive und vielseitig nutzbare Gewerbefläche im Herzen von Ehingen (Donau). Diese Immobilie bietet Ihnen das ideale Fundament für Ihr nächstes Vorhaben – sei es im Bereich Gastronomie oder für andere Geschäftsmodelle. Der bestehende Kundenstamm und die hervorragenden Bewertungen unterstreichen das...
Weitere Informationen
Sonstiges
Kontaktieren Sie uns für weitere Informationen oder zur Vereinbarung eines Besichtigungstermins! Nutzen Sie die Chance, eine voll ausgestattete Gastronomie zu übernehmen oder die perfekte Grundlage für Ihr Traumbusiness in einer der vielseitigsten Gewerbeflächen von Ehingen zu schaffen!
Objektzustand...
Anbieter der Immobilie

Online-ID: 2kcll5l
Finde Angebote wie dieses
Hier geht es zu unserem Impressum, den Allgemeinen Geschäftsbedingungen, den Hinweisen zum Datenschutz und nutzungsbasierter Online-Werbung.