
Radebeuler Wohnbau GmbH
Herr Rico Leuteritz
035 ···
Nr. anzeigenPreise & Kosten
Lage
Die Lage in Radebeul ist für Familien ideal, da sie sowohl Ruhe als auch Annehmlichkeiten bietet. Die Nähe zu den Weinbergen und die waldreiche Umgebung tun ihr übriges dazu.
Das Haus
Kategorie
Doppelhaushälfte
Baujahr
2026
Energie & Heizung
Warum sehe ich diese Anzeige? – Du siehst diese Anzeige basierend auf Ihrer Navigation auf unserer Website und den Suchkriterien, die du verwendet hast.
Energieausweistyp
Bedarfsausweis
Gebäudetyp
Wohngebäude
Baujahr laut Energieausweis
2026
Wesentliche Energieträger
Strom-Mix
Effizienzklasse
A
Endenergiebedarf
30,00 kWh/(m²·a)
Weitere Energiedaten
Haustyp
Niedrigenergiehaus
Energieträger
Elektro
Heizungsart
Fußbodenheizung, Luft-/Wasser-Wärmepumpe, Zentralheizung
Details
Objektbeschreibung
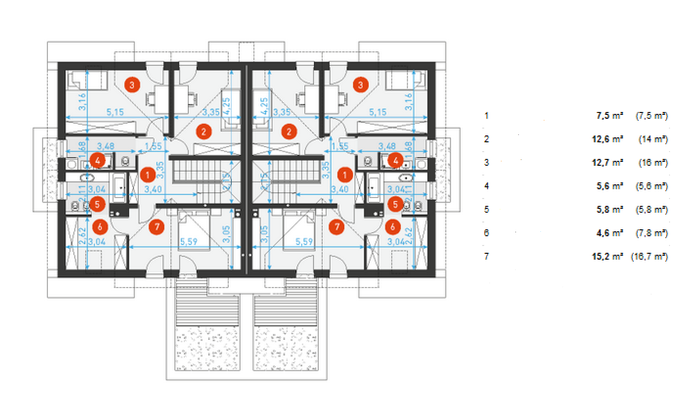
Willkommen in diesem modernen Familienhaus in der begehrten Nachbarschaft von Radebeul. Dieses neu zu erbauende Doppelhaus bietet eine großzügige Wohnfläche von je 132 m². Mit insgesamt 5 hellen Zimmern, 2 Badezimmern und Toilette eignet sich dieses Haus perfekt für Familien, die Wert auf Raum und Komfort legen. Das Projekt...
Ausstattung
Dieses Haus überzeugt durch seine praktische Ausstattung. Alle Badezimmer sind einladend gestaltet, ideal für Familienbedürfnisse. Der Bodenbelag sorgt für einen modernen und zeitgemäßen Look, der sich in alle Wohnräume zieht. Eine gut geplante Küche bietet ausreichend Platz für gemeinsame Mahlzeiten und gesellige...
Weitere Informationen
Dieses Familientraumhaus bietet Ihnen die perfekte Kombination aus modernen Annehmlichkeiten und einer charmanten Umgebung.
Gern gestalten wir mit Ihnen Ihr persönliches Traumhaus! Wir freuen uns auf Ihre Anfrage unter 0179 9417289 oder leuteritz@radebeuler-wohnbau.de.
Anbieter der Immobilie
Radebeuler Wohnbau GmbH
Kötitzer Str. 26 a, 01445 Radebeul
Online-ID: 2ncxd57
Finde Angebote wie dieses
Hier geht es zu unserem Impressum, den Allgemeinen Geschäftsbedingungen, den Hinweisen zum Datenschutz und nutzungsbasierter Online-Werbung.