Version: 8.25.1Navigation überspringen
390 €
2 Zimmer  •  52 m²
Immowelt logo

Wohnung zur Miete
390 €
2 Zimmer  •  52 m²

Helle 2-Zimmer-Wohnung mit Balkon + Stellplatz, nahe Stadtzentrum

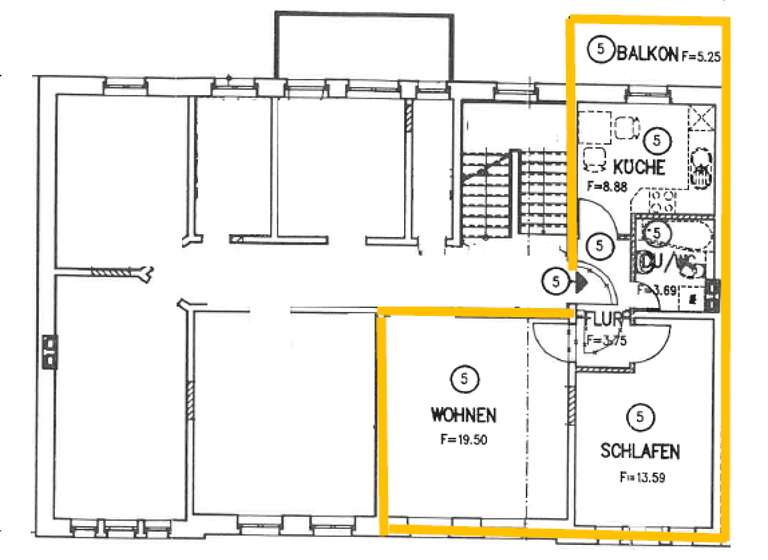
Diese gepflegte und gut geschnittene 2-Zimmer-Wohnung mit ca. 52 m² Wohnfläche überzeugt durch einen durchdachten Grundriss und praktische Details – ideal für Singles, Paare oder alle, die zentrales und komfortables Wohnen schätzen. Die Wohnung liegt im 2. Obergeschoss rechts. Die Wohnung befindet sich in einem soliden Mehrfamilienhaus und bietet: • Gemütliches Wohnzimmer und Schlafzimmer, zentral vom Flur aus begehbar • Küche mit direktem Zugang zum Balkon – perfekt für den Morgenkaffee oder entspanntes Zusammensein • Bad mit Dusche und WC • Kellerabteil zur exklusiven Nutzung Ein Stellplatz im Innenhof kann zusätzlich angemietet werden – Ihr Fahrzeug steht hier geschützt und sicher. Das Objekt wird durch einen Hausmeisterservice betreut, der sich u. a. um die Treppenhausreinigung und die Bereitstellung der Mülltonnen kümmert – für einen rundum gepflegten Wohnalltag.

Merkmale

  • Badezimmer: Bad mit Dusche
  • Bodenbelag: Fliesen, Laminat
  • Balkon
  • Außen-Stellplatz
-Wohnfläche: ca. 52 m² -Zimmer: 2 -Küche mit Balkonzugang -Bad mit Dusche und WC -Flur -Balkon -Kellerabteil -Innenhof-Stellplatz optional -Hausmeisterservice inklusive

Grundrisse

Grundrisse
1 / 1

Realisiere Dein Projekt

Bausubstanz und Energie

Energieausweis

D
  • Baujahr1934
  • HeizungsartZentralheizung: Heizkörper
  • EnergieträgerGas
Immowelt logo

Mietkosten

Warmmiete
540 €
Kaltmiete
7,50 €/m²
390 €
Nebenkosten
150 €
Heizkosten
in Nebenkosten enthalten
Zusätzliche Kosten
Miete pro Stellplatz
45 €
Kaution
780 €

Lage

address-icon
Stolzestraße 5Eisenach (99817)
Die Wohnung befindet sich in der Stolzestr. 5 in Eisenach, in einer gefragten und gut angebundenen Wohngegend nahe dem Stadtzentrum. Die Lage vereint urbanes Leben mit angenehmer Ruhe – ideal für alle, die kurze Wege schätzen, ohne auf Wohnqualität verzichten zu wollen. Sämtliche Einrichtungen des täglichen Bedarfs wie Supermärkte, Apotheken, Bäckereien sowie Schulen und medizinische Versorgung sind bequem zu Fuß erreichbar. Die historische Altstadt mit ihren kulturellen Highlights und charmanten Plätzen liegt nur wenige Minuten entfernt. Die Anbindung an den öffentlichen Nahverkehr ist hervorragend, und auch die Autobahn A4 ist schnell erreichbar. Grünanlagen, Spazierwege und Radstrecken in der näheren Umgebung bieten zudem hohe Freizeit- und Erholungsqualität.

Weitere Informationen

Dieses Angebot ist freibleibend und unverbindlich. Irrtum und Zwischenverwertung bleiben vorbehalten. Es wurde auf der Grundlage der vom Eigentümer zur Verfügung gestellten Unterlagen, sowie dessen Angaben, ohne Gewähr gefertigt. Bitte geben Sie bei Exposéanfragen immer Ihre vollständige Anschrift und/oder Telefonnummer an, sonst kann keine Bearbeitung erfolgen. Besichtigungstermine finden nach entsprechender Vereinbarung statt. Vielen Dank!

Weitere Services

Lust auf eine Besichtigung?
Eine Frage zur Immobilie?
Mit einer persönlichen Nachricht hast du bessere Chancen auf eine Antwort.
Mit der Nutzung der oben angegebenen Telefonnummer oder durch Klicken auf „Kontaktieren“ akzeptierst Du die Allgemeinen Nutzungsbedingungen, denen Du jederzeit widersprechen kannst. Weitere Informationen zum Datenschutz

Über den Anbieter

Karlsplatz 20, 99817 Eisenach
partner badge
6 Jahre Partnerschaft
Herr J. Michael GruskaDein Kontakt

Weitere Unterlagen

Online-ID: 26UBBHDLBMTY
Gruska Immobilien & Verwaltung GmbH
Gruska Immobilien & Verwaltung GmbH
Bewertung: 4 von 5 Sternen
Mit einer persönlichen Nachricht hast du bessere Chancen auf eine Antwort.
Mit der Nutzung der oben angegebenen Telefonnummer oder durch Klicken auf „Kontaktieren“ akzeptierst Du die Allgemeinen Nutzungsbedingungen, denen Du jederzeit widersprechen kannst. Weitere Informationen zum Datenschutz
Wie zufrieden bist du mit dieser Seite (nicht mit der Immobilie selbst)?