

Wohnung zum Kauf • als Kapitalanlage geeignet3 Zimmer • 100 m²
3 Zimmer • 100 m²
Renovierte Anlegerwohnungen mit Altbauflair
Merkmale
- Bezug: sofort, nach Absprache
- Einbauküche, Speisekammer
- Außen-Stellplatz
- Balkon
- Gartenmitbenutzung
- Bergblick, Fernblick
- teilweise möbliert
- Badezimmer: Bad mit Dusche, Bad mit Fenster
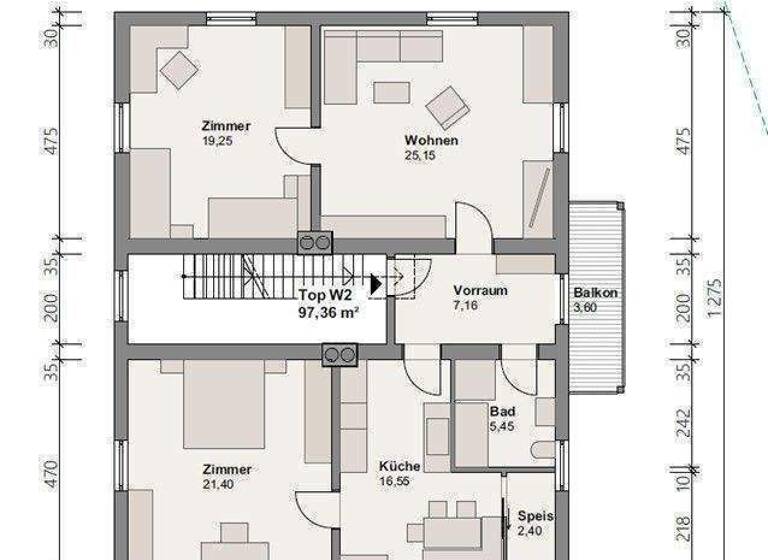
Grundrisse
Grundrisse
1 / 1
Realisiere Dein Projekt
Bausubstanz und Energie
Heizwärmebedarf (HWB)
C
Gesamtenergieeffizienz (fGEE)
A
- HeizungsartZentralheizung: Ofen
- EnergieträgerGas, Holz
Preisdetails
Provision für Käufer
3,6 % vom Kaufpreis inkl. MwSt.
Lage

Kirchbichl (6322)
Der Anbieter hat die genaue Adresse nicht freigegeben
Weitere Informationen
Weitere Services
Lust auf eine Besichtigung?
Eine Frage zur Immobilie?
Über den Anbieter
ISI ImmobilienMaklerbüro
Haspinger Straße 9, 6330 KUFSTEIN
Partnerschaft

Frau Iris StrillingerDein Kontakt
Online-ID: 26TD7PUXZJC5


ISI Immobilien
Bewertung: 4,9 von 5 Sternen
Wie zufrieden bist du mit dieser Seite (nicht mit der Immobilie selbst)?

