Version: 8.24.0Navigation ĂĽberspringen
Garant Immobilien Heilbronn GmbH
545.000 €
7 Zimmer  â€˘  170 m²  â€˘  686 m² GrundstĂĽck

Einfamilienhaus zum Kauf
545000 €
3.206 €/m²
7 Zimmer  â€˘  170 m²  â€˘  686 m² GrundstĂĽck

HOME SWEET HOME

Heimkommen... dieses GefĂĽhl vermittelt das hier angebotene Domizil in jedem Fall...

Das ehemalige landwirtschaftliche Anwesen - wohl ursprĂĽnglich um 1850 erbaut - wurde mit viel Liebe zum Detail und geschmackvoll zwischen 2004 und 2013 StĂĽck fĂĽr StĂĽck modernisiert und renoviert.

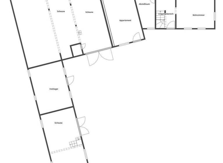
Mit etwa 170 qm Wohnfläche bietet Ihnen dieses Gehöft reichlich Platz für die ganze Familie. Die Wohnfläche verteilt sich wie folgt:
Erdgeschoss: Wohnzimmer, Esszimmer, KĂĽche, Abstellraum, Heizungsraum, kleines Appartement mit separatem Eingang und FuĂźbodenheizung
Obergeschoss: Schlafzimmer, Kinderzimmer mit zwei Räumen, Badezimmer mit begehbarer Dusche und Eckbadewanne, Büro, Ankleidezimmer (nach oben offen)
Das doppelstöckige Dachgeschoss wäre zudem ausbaufähig und offeriert die Möglichkeit für zusätzlichen Wohnraum.

Ideal für Bastler und Schrauber: auf dem ca. 686 qm großen Grundstück befinden sich zwei Scheunen, die Ihnen genügend Fläche für Werkstatt, Abstell- sowie Lagermöglichkeiten bieten. Unter einer der beiden Scheunen finden Sie zudem einen großzügigen Gewölbekeller.

Das Einfamilienhaus ist derzeit vermietet. Wir bitten um Verständnis, dass wir zum Schutz der Privatsphäre der Mieter keine Innenaufnahmen veröffentlichen.



Weitere Angebote unter www.GARANT-IMMO.de

Merkmale

  • Bezug: vermietet
  • vermietet
  • 686 m² GrundstĂĽck
  • Bodenbelag: Fliesen, Holzdielen
Erfolgte Modernisierungen/Renovierungen:
- 2004 Einbau doppelverglaster Kunststofffenster im OG und 2007 im EG (hier mit Schallschutz)
- Erneuerung der Strom- und Wasserleitungen
- 2009 Ă–l-Zentralheizung (Kaminofenanschluss)
- 2010 Neueindeckung und Dämmung Dach
- 2010 AuĂźenfassade neu verputzt
- 2013 Erneuerung Badezimmer


Grundrisse

Grundrisse
1 / 4

Realisiere Dein Projekt

Bausubstanz und Energie

Energieausweis

F
  • Baujahr1850
  • Zustand der ImmobilieGepflegt
  • EnergieträgerĂ–l
MediumRectangleTop

Preisdetails

Kaufpreis
545000 €
3.205,88 €/m²
Provision für Käufer
3,57 % (inkl. MwSt.) inkl. MwSt.
Die Maklercourtage für den Käufer beträgt 3 % aus dem Kaufpreis zuzüglich der gesetzlichen MwSt., somit gesamt 3,57 %.
Geschätzte Gesamtkosten
591.325 €1
Kaufpreis
545.000 €
Notarkosten (1,5%)
8.175 €
Grunderwerbsteuer (3,5%)
19.075 €
Provision für Käufer (3%)
16.350 €
Grundbucheintrag (0,5%)
2.725 €
1Der angezeigte Wert ist eine automatisch berechnete Schätzung von immowelt.
2Bei den Angaben handelt es sich um ortsübliche Werte. Individuelle Kosten können abweichen.

Lage

address-icon
Giebelstadt (97232)
Der Anbieter hat die genaue Adresse nicht freigegeben
Das Anwesen befindet sich in Giebelstadt.
Die Gemeinde hat alles, was man zum Leben braucht. Die Einwohner leben gern und dauerhaft in Ihrer kleinen Stadt und Familienfreundlichkeit wird hier groĂź geschrieben. Kindergarten und Grundschule befinden sich am Ort. Giebelstadt verfĂĽgt ĂĽber eine sehr gesunde Infrastruktur und eine sehr gute Verkehrsanbindung.

Weitere Informationen

Sonstiges Energiebedarfsausweis
Energiekennwert: 165,19 kWh/(qm*a)
Energieeffizienz: Klasse F (<200)
Heizung: Zentralheizung mit Ă–l
Baujahr laut Energieausweis: 1890 Stichworte Anzahl der Badezimmer: 1, 2 Etagen

Weitere Services

Lust auf eine Besichtigung?
Eine Frage zur Immobilie?
Nachricht hinzufĂĽgen
Mit der Nutzung der oben angegebenen Telefonnummer oder durch Klicken auf „Kontaktieren“ akzeptierst Du die Allgemeinen Nutzungsbedingungen, denen Du jederzeit widersprechen kannst. Weitere Informationen zum Datenschutz

Ăśber den Anbieter

WollhausstraĂźe 121, 74074 Heilbronn
partner badge
Partnerschaft
BĂĽro WĂĽrzburgDein Kontakt
Online-ID: 2npla55
Referenznummer: 625.115
Garant Immobilien Heilbronn GmbH
Garant Immobilien Heilbronn GmbH
Bewertung: 3,8 von 5 Sternen
Nachricht hinzufĂĽgen
Mit der Nutzung der oben angegebenen Telefonnummer oder durch Klicken auf „Kontaktieren“ akzeptierst Du die Allgemeinen Nutzungsbedingungen, denen Du jederzeit widersprechen kannst. Weitere Informationen zum Datenschutz
MediumRectangleTop
MediumRectangleBottom
MediumRectangleTop
Wie zufrieden bist du mit dieser Seite (nicht mit der Immobilie selbst)?