

Rosenbaum Immobilien - Future Gesellschaft für Finanz und Vermögensplanung mbH
Frau Birgit Rosenbaum
093 ···
Nr. anzeigenPreise & Kosten
Provision für Käufer
3,57 % Käuferprovision inkl. 19% MwSt., verdient und fällig mit Beurkundung des notariellen Kaufvertrages. Der Immobilienmakler hat einen provisionspflichtigen Maklervertrag mit dem Verkäufer in gleicher Höhe abgeschlossen.
Lage
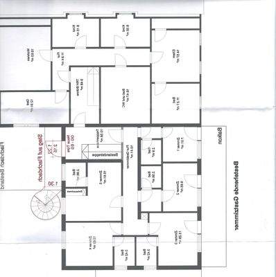
Die Gaststätte befindet sich direkt an der Hauptstraße eines ländlichen Stadtteils im lieblichen Taubertal.
Konkrete Anfragen mit Kapitalnachweis erhalten die genaue Lage.
Lagekriterien
Fußweg zu öffentl. Verkehrsmitteln 2 Min.
Fahrzeit nächster Hauptbahnhof 10 Min.
Fahrzeit nächste Autobahn 20...
Gastronomie/Hotel
Baujahr
1972
Bezug
ab sofort
Sitzplätze
200
Geschosse
2 Geschosse
Energie & Heizung
Warum sehe ich diese Anzeige? – Du siehst diese Anzeige basierend auf Ihrer Navigation auf unserer Website und den Suchkriterien, die du verwendet hast.
Weitere Energiedaten
Energieträger
Gas
Heizungsart
Ofen, Zentralheizung
Details
Objektbeschreibung
Entdecken Sie diese charmante und voll ausgestattete Gaststätte im Herzen des idyllischen Taubertals, die sich durch ihren beliebten Biergarten, gemütliche Fremdenzimmer und eine langjährige, treue Kundschaft auszeichnet.
Eine Betreiberwohnung befindet sich ebenfalls in der Immobilie, die den Weg zur Arbeit sehr...
Ausstattung
Entdecken Sie diese charmante Gastronomie-Immobilie, die mit viel Liebe zum Detail gestaltet wurde!
Der Gastraum besticht durch moderne, bequeme Bestuhlung und lädt zum Verweilen ein. Nebenraum und Saal bieten flexible Nutzungsmöglichkeiten, während das Bistro direkt neben dem idyllischen Natur-Biergarten für eine...
Weitere Informationen
Besichtigungstermine
Gerne stehen wir Ihnen für Rückfragen oder einen Besichtigungstermin zur Verfügung. Wir freuen uns auf Ihre e Mail, in der Sie bitte folgende Informationen angeben
- Ihre vollständige aktuelle Anschrift mit E Mail - und Handynummer
- Kapitalnachweis
Kontaktanfragen stellen Sie bitte...
Anbieter der Immobilie
Rosenbaum Immobilien - Future Gesellschaft für Finanz und Vermögensplanung mbH
Frankenstraße 1, 97265 Hettstadt

Online-ID: 2jubw5z
Referenznummer: 202504152
Finde Angebote wie dieses
Hier geht es zu unserem Impressum, den Allgemeinen Geschäftsbedingungen, den Hinweisen zum Datenschutz und nutzungsbasierter Online-Werbung.