Version: 8.26.0Navigation überspringen
1.500 €
169 m² Verkaufsfläche
Immowelt logo

Ladenfläche zur Miete
1.500 €
169 m² Verkaufsfläche

Laden-/Gewerbeobjekt in Bozen

Die angebotene Gewerbeimmobilie besteht aus einer funktionalen Büroeinheit im Halbgeschoss sowie einem großzügigen Keller im Untergeschoss und eignet sich ideal für technische, buchhalterische oder administrative Tätigkeiten.

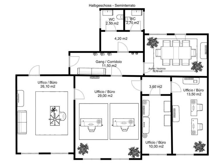
Im Halbgeschoss befinden sich vier separate Büroräume, die über einen gemeinsamen Korridor erschlossen sind. Großzügige Fensterflächen sorgen für eine angenehme natürliche Belichtung. Ergänzt wird diese Ebene durch Sanitärräume sowie einen Archivbereich. Die Einheit ist nicht für medizinische Nutzungen vorgesehen.

Im Untergeschoss steht ein großzügiger Kellerbereich zur Verfügung, der zusätzlichen Stauraum bietet und die Funktionalität der Immobilie wesentlich erhöht.

Der Zugang zur Einheit ist barrierefrei gestaltet: Eine Rampe am Eingang sowie ein Treppenlift ermöglichen einen komfortablen Zugang auch für Personen mit eingeschränkter Mobilität.

Diese Immobilie stellt eine praktische und vielseitig nutzbare Lösung für professionelle Nutzer dar, die Wert auf klare Raumstrukturen, gute Belichtung und barrierefreien Zugang legen.


Lage und Umfeld dieser Immobilie:

Die Sparkassenstraße befindet sich in unmittelbarer Nähe zum historischen Stadtzentrum von Bozen und zählt zu den zentralen und stark frequentierten Straßen der Stadt. Sie verbindet den Waltherplatz mit dem Talferbereich und stellt eine wichtige Achse zwischen Einkaufs-, Geschäfts- und Bürostandorten dar. Die Lage ist sowohl zu Fuß als auch mit öffentlichen Verkehrsmitteln sehr gut erreichbar; mehrere Parkgaragen befinden sich in unmittelbarer Umgebung.

Das Umfeld ist geprägt von einer Vielzahl an Einzelhandelsgeschäften, Banken, Kanzleien, Cafés, Restaurants sowie weiteren Dienstleistungsbetrieben und bietet eine lebendige, urbane Atmosphäre mit hoher Passantenfrequenz.


Vermittlungsvergütung:

Der Makler hat Anspruch auf die Provision, wenn das Geschäft durch sein Zutun zustande gekommen ist.

Provision in Höhe von 10 % (zehn Prozent) zzgl. gesetzlicher MwSt. auf den Jahresmietpreis.

Der Anspruch des Maklers entsteht mit Abschluss des Geschäfts und ist vom Mieter an den Makler zeitgleich mit der Unterzeichnung des Mietvertrages zu entrichten.

Wir bemühen uns, auf dieser Website richtige und vollständige Informationen zur Verfügung zu stellen. Wir übernehmen jedoch keine Haftung oder Garantie für die Aktualität, Richtigkeit und Vollständigkeit der bereitgestellten Informationen und Bildmaterial. Zweidimensionale Grundrisse und dreidimensionale Renderings sind größtenteils figurativ und nicht immer maßstabsgetreu bzw. entsprechen nicht immer der Realität. Wir behalten uns das Recht vor, ohne vorherige Ankündigung Änderungen oder Ergänzungen der bereitgestellten Informationen vorzunehmen.

Grundrisse

Grundrisse
1 / 1
Immowelt logo

Mietkosten

Nettomiete zzgl. Nebenkosten
1.500 €
Provision für Mieter
Bitte beachte, das Angebot kann bei Vertragsabschluss die Zahlung einer Provision beinhalten. Weitere Informationen erhältst Du vom Anbieter.
Kaution
keine Angabe

Lage

address-icon
Bozen (39100)
Der Anbieter hat die genaue Adresse nicht freigegeben

Weitere Informationen

Stichworte Gesamtfläche: 169,00 m²

Weitere Services

Lust auf eine Besichtigung?
Eine Frage zur Immobilie?
Mit einer persönlichen Nachricht hast du bessere Chancen auf eine Antwort.
Mit der Nutzung der oben angegebenen Telefonnummer oder durch Klicken auf „Kontaktieren“ akzeptierst Du die Allgemeinen Nutzungsbedingungen, denen Du jederzeit widersprechen kannst. Weitere Informationen zum Datenschutz

Über den Anbieter

Leonardo da Vinci Str. 16, 39100 BOZEN
partner badge
6 Jahre Partnerschaft
Igor DapuntDein Kontakt
Keine Telefonnummer hinterlegt
Keine Telefonnummer hinterlegt
Online-ID: 26YZQF12UPCK
Referenznummer: 676
Wie zufrieden bist du mit dieser Seite (nicht mit der Immobilie selbst)?