Version: 8.22.6Navigation überspringen
8.086 €
6 Zimmer  •  539 m² Bürofläche
Immowelt logo

Bürofläche zur Miete
8.086 €
6 Zimmer  •  539 m² Bürofläche

Repräsentatives Büro im Wissenschaftspark kurzfristig verfügbar

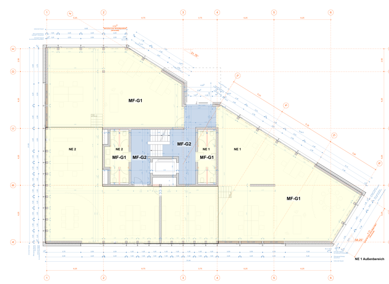
Diese moderne und hochwertig ausgestattete Bürofläche im Erdgeschoss befindet sich in einem 2023 neu errichteten Bürogebäude im Wissenschaftspark Osnabrück. Das Gebäude wird etagenweise an insgesamt drei Unternehmen vermietet und überzeugt durch eine klare, zeitgemäße Architektur, lichtdurchflutete Räume sowie ein durchdachtes Flächenkonzept. Ein besonderes Augenmerk liegt auf der nachhaltigen Ausrichtung: Das Gebäude ist mit einer Photovoltaikanlage ausgestattet und ermöglicht damit eine energieeffiziente und zukunftsorientierte Büronutzung. Die Fläche ist kurzfristig verfügbar und bietet dank ihrer Struktur die Möglichkeit, Teilflächen separat anzumieten – ideal für Unternehmen mit individuellem Platzbedarf. Ob repräsentative Besprechungen, kommunikative Open-Space-Arbeitsbereiche oder konzentriertes Arbeiten in abgeschlossenen Büros: Diese Bürofläche passt sich flexibel an moderne Arbeitskonzepte an. Durch die optionale Teilvermietung eignet sich das Objekt sowohl für etablierte Unternehmen als auch für wachsende Teams oder projektbezogene Nutzungen. Flächenaufteilung: Die Bürofläche gliedert sich in drei funktional klar getrennte Bereiche, die jeweils einen eigenen Zugang vom Hausflur besitzen: 1. Büroeinheit links (Erdgeschoss) -Großzügiger, repräsentativer Besprechungsraum -Separates Geschäftsführerbüro -Zwei weitere abgeschlossene Büroräume -Zugang zur Gemeinschaftsküche über eine offene Treppe mit wenigen Stufen 2. Erhöht gelegenes Großraumbüro -Direkter Zugang von der Gemeinschaftsküche -Alternativ erreichbar über das Treppenhaus oder den Personenaufzug -Heller Open-Space-Bereich mit angenehmer Arbeitsatmosphäre -Separates, verglastes Büro als Besprechungsraum 3. Weiteres Großraumbüro im Erdgeschoss -Angrenzend an den erhöhten Open-Space-Bereich -Erreichbar über eine kurze Treppe mit wenigen Stufen -Großzügige offene Bürofläche -Zusätzlich ein abgeschlossener Besprechungsraum innerhalb der Einheit Die dezente Höhenstaffelung der Flächen schafft eine offene, moderne Raumwirkung und sorgt zugleich für eine klare funktionale Gliederung. Weitere Details zur Flächenaufteilung finden Sie weiter unten und im Anhang. Ausstattung & Besonderheiten: -Vollmöbliert mit hochwertiger Büroausstattung (Mobiliar kann optional übernommen werden – Kauf oder Miete möglich) -Sehr helle, moderne Büroflächen mit großzügigen Fensterfronten -Photovoltaikanlage für nachhaltige Energieerzeugung -10 PKW-Stellplätze, teilweise mit Wallboxen, stehen zur Verfügung -WC-Anlagen außerhalb der Bürofläche im Treppenhaus, getrennt nach Damen und Herren -Personenaufzug im Gebäude vorhanden Wir freuen uns auf Ihre Anfrage.

Merkmale

  • frei ab sofort
  • 3 Geschosse
  • Haustiere erlaubt
  • Personenaufzug
  • 10 Außen-Stellplätze
  • 2 WCs
  • Terrasse
  • Glasfaser-Anschluss

Grundrisse

Grundrisse
1 / 2

Realisiere Dein Projekt

Bausubstanz und Energie

Energieausweis

Der Energieausweis wird bei Besichtigung nachgereicht.
  • Baujahr2023
  • Letzte Modernisierung2023
  • Zustand der Immobilieneuwertig
  • HeizungsartZentralheizung: Fußbodenheizung
  • EnergieträgerPellets
Immowelt logo

Mietkosten

Nettomiete
8.085,90 €
Nebenkosten
1.000 €
Heizkosten
in Nebenkosten enthalten
Zusätzliche Kosten
Miete pro Stellplatz
35 €
Provision für Mieter
3 Nettokaltmieten zzgl. MwSt., zahlbar vom Mieter bei Mietvertragsabschluss.
Kaution
25000 €

Lage

address-icon
Ursula-Flick-StraßeWesterbergOsnabrück (49076)

Weitere Informationen

Mietflächenberechnung: NE1 = 199,90 m² Bürofläche (inkl. Toiletten) zzgl. 21,89 m² Nutzfläche Terrasse (angrenzend an NE1) = 30,16 m² NE2 = 246,96 m² Bürofläche (inkl. Toiletten) zzgl. 21,89 m² Nutzfläche Fläche gesamt: 539,06 m² Weitere Informationen entnehmen Sie bitte der beigefügten Mietflächenberechnung nach GIF.

Weitere Services

Lust auf eine Besichtigung?
Eine Frage zur Immobilie?
Nachricht hinzufügen
Mit der Nutzung der oben angegebenen Telefonnummer oder durch Klicken auf „Kontaktieren“ akzeptierst Du die Allgemeinen Nutzungsbedingungen, denen Du jederzeit widersprechen kannst. Weitere Informationen zum Datenschutz

Über den Anbieter

Hansastraße 13a, 49205 Gaste
partner badge
Partnerschaft
Frau Franziska Manz
Frau Franziska ManzDein Kontakt

Weitere Unterlagen

Online-ID: 2nmjq5c
S&W Immobilien GmbH & Co. KG
title
S&W Immobilien GmbH & Co. KG
Bewertung: 5 von 5 Sternen
Nachricht hinzufügen
Mit der Nutzung der oben angegebenen Telefonnummer oder durch Klicken auf „Kontaktieren“ akzeptierst Du die Allgemeinen Nutzungsbedingungen, denen Du jederzeit widersprechen kannst. Weitere Informationen zum Datenschutz
Wie zufrieden bist du mit dieser Seite (nicht mit der Immobilie selbst)?