




Doppelhaushälfte zum Kauf1480000 €8.555 €/m²5 Zimmer • 173 m² • 339 m² Grundstück
1480000 €
8.555 €/m²
5 Zimmer • 173 m² • 339 m² Grundstück
Modernes Design trifft natürliche Schönheit
Merkmale
- Bezug: sofort
- 339 m² Grundstück
- 2 Stellplätze
- Gäste-WC
- Bodenbelag: Fliesen, Parkett
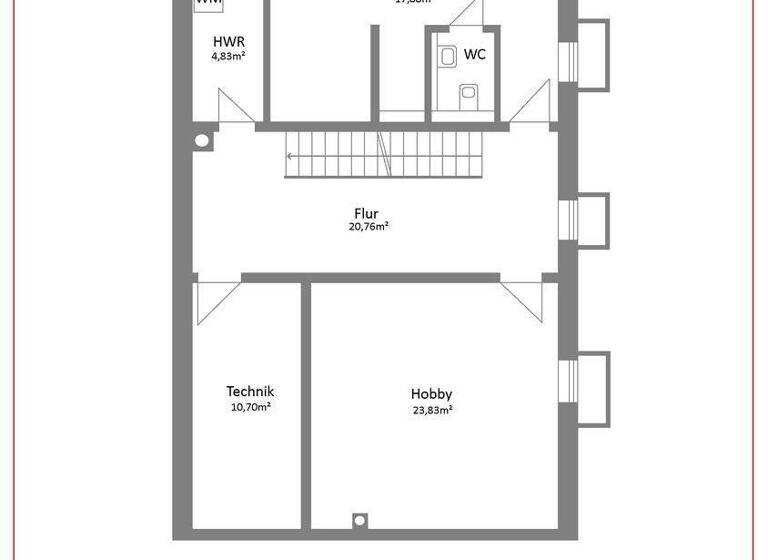
Grundrisse
Grundrisse
1 / 3
Realisiere Dein Projekt
Bausubstanz und Energie
Energieausweis
A+
- Baujahr2016
- Zustand der Immobilieneuwertig
- HeizungsartFußbodenheizung
- EnergieträgerElektro
Preisdetails
Kaufpreis
1480000 €
8.554,91 €/m²
Provision für Käufer
3,57 % (inkl. MwSt.) inkl. MwSt.
Die Maklercourtage für den Käufer beträgt 3 % aus dem Kaufpreis zuzüglich der gesetzlichen MwSt., somit gesamt 3,57 %.
Die Maklercourtage für den Käufer beträgt 3 % aus dem Kaufpreis zuzüglich der gesetzlichen MwSt., somit gesamt 3,57 %.
Geschätzte Gesamtkosten
1.605.800 €1
Kaufpreis
1.480.000 €
Kaufnebenkosten
125.800 €
2Notarkosten (1,5%)
22.200 €
Grunderwerbsteuer (3,5%)
51.800 €
Provision für Käufer (3%)
44.400 €
Grundbucheintrag (0,5%)
7.400 €
1Der angezeigte Wert ist eine automatisch berechnete Schätzung von immowelt.
2Bei den Angaben handelt es sich um ortsübliche Werte. Individuelle Kosten können abweichen.
Lage

Schliersee (83727)
Der Anbieter hat die genaue Adresse nicht freigegeben
Weitere Informationen
Weitere Services
Lust auf eine Besichtigung?
Eine Frage zur Immobilie?
Über den Anbieter
Garant Immobilien München GmbHMaklerbüro
Kistlerhofstraße 170, 81379 München
Partnerschaft
Büro LandshutDein Kontakt
Online-ID: 2npvl5j
Referenznummer: 890.228
Wie zufrieden bist du mit dieser Seite (nicht mit der Immobilie selbst)?




