Version: 8.22.4Navigation überspringen
399.000 €
5 Zimmer  •  100,2 m²
Immowelt logo

Doppelhaushälfte zum Kauf
399000 €
3.982 €/m²
5 Zimmer  •  100,2 m²

Top 3: Abbruch bereits erfolgt! Schlüsselfertige Doppelhaushälfte mit 5 Zimmern, Carport, Terrasse, Eigengarten!

Dieses moderne Haus ist ein Ort, an dem Sie sich wie zu Hause fühlen. Es bietet Ihnen ein komfortables Leben in der Stadt Steyr. Mit 5 Zimmern, Terrasse und Eigengarten ist dieses Haus ein perfekter Ort, um sich Ihr eigenes Zuhause zu schaffen.

Ihre Vorteile im Überblick

* Massivbauweise
* Zentralheizung mittels eigener VAILLANT Wärmepumpe mit Kühlfunktion inkl. 160 l Warmwasserspeicher
* Fußbodenheizung im gesamten Haus
* Elektrische Rollläden (bzw. Raffstore bei der Terrassentüre) sind bei allen Fenstern im Wohn- und Schlafbereich enthalten
* Beim WC im OG und im Bad kommt ein satiniertes Glas ohne Rollläden
* Kunststoff-Alu Fenster von Josko mit Hebeschiebetüre im Wohnbereich
* Helle Räume und große Fensterflächen im Wohnbereich
* Eigengarten
* Hochwertige Elektroausstattung mit dem Schaltersystem Busch und Jäger future linear
* Leerverrohrung für Internet in den Verteiler
* Jedes Zimmer ist mit einem Leerrohr für Internet oder SAT ausgestattet (5 Stk. insgesamt)
* Waschmaschinenanschluss im Bad oder Technikraum
* Frostsicherer Wasseranschluss bei der Terrasse im Außenbereich
* Eigener Stromanschluss
* Günstige Betriebs- und Heizkosten
* Die allgemeinen Außenanlagen werden vom Bauträger fertig gestellt
* Der Eigengarten wird vom Bauträger mit dem Mutterboden planiert, humusiert und angesät
* Ortswasser
* Öffentlicher Kanal

 

Nicht im Kaufpreis enthalten sind:

* Anschlusskosten für Strom, Kanal, Wasser, Verkehrsflächenbeitrag und die dazugehörigen Aufschließungsarbeiten. Diese betragen € 16.000,-/Doppelhaushälfte und € 19.000,- beim Einfamilienhaus und sind nach Erhalt der Rechnung an den Bauträger zu entrichten.

Bei der Angabe der Wohnfläche ist der Abstellraum unter der Stiege im Ausmaß von ca. 3,04 m² und das Stiegenhaus mit ca. 1,6 m² (Maßangabe lt. Nutzwertgutachten, im Plan nicht ersichtlich) miteingerechnet.

Sonstiges:

* Der Abbruch des Bestandsgebäudes ist bereits erfolgt
* Der Baubeginn ist im Frühjahr 2026
* Die Fertigstellung ist im Herbst/Winter 2026/27 
* Der Eingangsbereich, die Abtrennung zwischen den Terrassen, der Abstellraum beim Carport und das Carport werden in Beton ausgeführt.
* Änderungen, Druckfehler und Irrtümer sind vorbehalten

Die schlüsselfertige Ausführung beinhaltet:

* Terrasse: Estrichplatten in Splitt verlegt
* Bodenlegerarbeiten: Fertigklebeparkett Eiche 2-Stab inkl. Sockelleisten (Schweizerleiste).
* Stiege: Die Trittstufe der Stiege wird mit dem gleichen Parkettboden belegt. Die Setzstufe wird weiß beschichtet.
* Handlauf: Handlauf aus Eiche lackiert inkl. Edelstahlkonsolen
* Innentüren: Dana Standardtüre weiß mit Holzumfassungszarge
* Fliesenlegerarbeiten:
* Bodenfliesen: Feinsteinzeug, Format: 60/30 inkl. Sockelfliesen, Höhe ca. 7cm aus Bodenfliesen. Der obere Abschluss der Sockelfliesen und Wandfliesen erfolgt mit einer Acryl-Fuge.
* Wandfliesen: Steingut, Format: 60/30 cm, Farbe Weiß matt. Die Wände im Bad und WC werden zum Teil auf eine Höhe von ca. 1,20 m verfliest. Teilweise werden Wände nicht verfliest. Im Bereich der Dusche wird auf eine Höhe von ca. 2,10 m gefliest. Siehe Skizze. Der obere Abschluss der Wandfliesen erfolgt mit einer Acryl-Fuge.
* Abstellraumtüren: Brandschutztüre zum Carport und Nebeneingangstüre zum Garten.
* Sanitär Bad: Laufen Pro Waschtisch, 60 cm breit mit Grohe oder Hansa Armatur bzw. gleichwertiges, mit Kalt- und Warmwasseranschluss
* Hansa Armatur inkl. Duschhalterung und Hansa Handdusche
* Dusche mit Fliese und Rinne im Gefälle ca. 100 x 100 cm mit Glaswand (Walk in Dusche, ohne Türe)
* Sanitär WC EG und OG: Laufen Pro Handwaschbecken mit Grohe oder Hansa Armatur bzw. gleichwertiges, mit Kalt- und Warmwasseranschluss
* Hänge WC Tiefspüler Laufen Pro mit Geberit Drückerplatte

Die Anschlusskosten sind auch bei der schlüsselfertigen Ausführung nicht enthalten.

Wir weisen darauf hin, dass zwischen dem Vermittler und dem zu vermittelnden Dritten ein familiäres oder wirtschaftliches Naheverhältnis besteht.

Der Vermittler ist als Doppelmakler tätig.

Merkmale

  • Bezug: Herbst/Winter 2026/27
  • 2 Stellplätze: 2 Außen-Stellplätze
  • Terrasse
  • Badezimmer: Bad mit Dusche, Bad mit Fenster

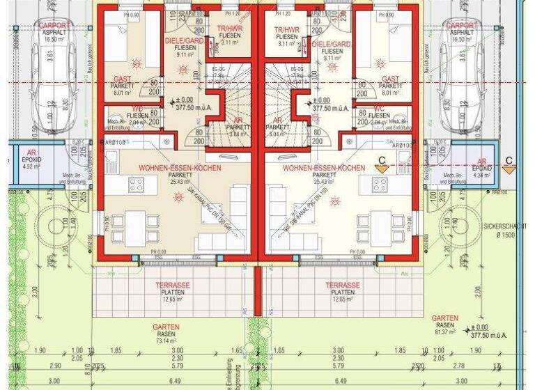
Grundrisse

Grundrisse
1 / 5

Realisiere Dein Projekt

Bausubstanz und Energie

Heizwärmebedarf (HWB)

B

Gesamtenergieeffizienz (fGEE)

A+
  • Baujahr2026
  • Zustand der ImmobilieNeubau, Massivhaus
  • HeizungsartZentralheizung
  • EnergieträgerLuft-/Wasser-Wärmepumpe
Immowelt logo

Preisdetails

Kaufpreis
399000 €
3.982,04 €/m²
Provision für Käufer
3% des Kaufpreises zzgl. 20% USt.
Weitere Preisinformationen
2 Stellplätze

Lage

address-icon
Steyrecker Straße 2FöhrenschacherlSteyr (4400)

Weitere Informationen

Stichworte Carport vorhanden, Stellplatz vorhanden, Rolladen, Anzahl der Badezimmer: 1, Anzahl der separaten WCs: 2, Anzahl Terrassen: 1, Balkon-Terrassen-Fläche: 12,65 m², Gartenfläche: 73,10 m², Bundesland: Oberösterreich, Wohnungsnr.: 3

Weitere Services

Lust auf eine Besichtigung?
Eine Frage zur Immobilie?
Nachricht hinzufügen
Mit der Nutzung der oben angegebenen Telefonnummer oder durch Klicken auf „Kontaktieren“ akzeptierst Du die Allgemeinen Nutzungsbedingungen, denen Du jederzeit widersprechen kannst. Weitere Informationen zum Datenschutz

Über den Anbieter

Streiningerstraße 14, 4655 VORCHDORF
Michael Stöttinger
Michael StöttingerDein Kontakt
Online-ID: 2l9d25n
Referenznummer: OBGC20250926141446553e40a10c5ef
Stöttinger Immobilien
title
Stöttinger Immobilien
Nachricht hinzufügen
Mit der Nutzung der oben angegebenen Telefonnummer oder durch Klicken auf „Kontaktieren“ akzeptierst Du die Allgemeinen Nutzungsbedingungen, denen Du jederzeit widersprechen kannst. Weitere Informationen zum Datenschutz
Wie zufrieden bist du mit dieser Seite (nicht mit der Immobilie selbst)?