Version: 8.24.0Navigation überspringen
870 €
3 Zimmer  •  73,7 m²  •  frei ab 01.05.2026
Immowelt logo

Wohnung zur Miete
870 €
3 Zimmer  •  73,7 m²  •  frei ab 01.05.2026

Hochwertige Erdgeschosswohnung mit Garten und Garage

Das 8-Familienhaus wurde in solider, qualitativ und handwerklich hochwertiger Bauweise errichtet und im Januar 2017 erstmals bezogen. Das Mehrfamilienhaus ist als KFW 40 - Haus gebaut. Das Objekt hat eine Gas - Brennwerttherme inkl. Warmwasseraufbereitung. Die Warmwasseraufbereitung erfolgt mit Solarunterstützung. Die Solarkollektoren sind auf dem Dach installiert. Da für die Warmwasseraufbereitung keine Durchlauferhitzer oder Untertischgeräte benötigt werden, kann seitens der Mieter noch Strom eingespart werden. In den einzelnen Wohnungen sind Fußbodenheizungen mit Raumthermostaten vorhanden. Die Heizkosten werden mit entsprechenden Wärmezählern je Wohneinheit ermittelt und gemäß Heizkostenverordnung abgerechnet. Um eine exakte Frischwasser- und Schmutzkanalabrechnung zu ermöglichen, sind für jede Wohneinheit Kalt- und Warmwasserzwischenzähler vorhanden. Außerdem ist eine zentrale Lüftungsanlage mit Wärmerückgewinnung eingebaut. Es sind Kunststofffenster mit Wärmeschutzverglasung als drei Scheiben Glas mit entsprechenden Profilen gemäß EnEV vorhanden. Die Fensterelemente sind von innen weiß und von außen grau foliert. Die Kunststofffenster der Wohneinheiten besitzen Kunststoffrollladen in grau Standard als Elektrorollladen. Die Bedienung erfolgt über Kippschalter im Bereich der Fensteranlagen. Das Objekt ist mit einer Kabel-TV Anlage ausgestattet. Die Anmeldung obliegt den Mietern. Sämtliche Schlaf- und Wohnräume sind mit TV-Anschlüssen ausgestattet. Auf den gemeinschaftlichen Flächen und in den Wohneinheiten sind zur Sicherheit der Bewohner entsprechende Rauchmelder installiert. Gemeinschaftlich werden der vorhandene Heizungs- und Hausanschlussraum genutzt. Das Objekt ist unterkellert. Im Kellerbereich ist jeder Wohneinheit ein kleiner Abstellraum zugeteilt. Die Trennwände sind als Metall - Gitterwände mit abschließbaren Türen ausgelegt. Das Objekt besitzt eine moderne Aufzugsanlage mit Notrufsystem. So ist ein problemloser Transport von Wäsche in den Wasch- und Trockenraum möglich. Im Außenbereich ist ein gemeinschaftlicher und abschließbarer Fahrradabstellplatz errichtet. Die zur Wohneinheit gehörende Garage befindet sich unmittelbar am Objekt, ist auch vom eigenen Garten aus betretbar, und ist mit monatlich EUR 60,00 separat zu vergüten.

Merkmale

  • frei ab 01.05.2026
  • Personenaufzug
  • Kelleranteil
  • Garage
  • Garten
  • Terrasse
  • Barrierefrei

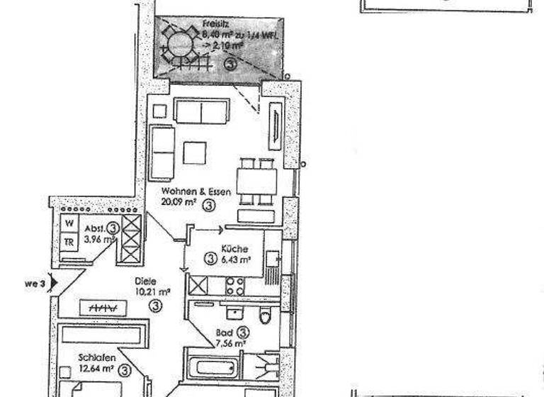
Grundrisse

Grundrisse
1 / 1

Realisiere Dein Projekt

Bausubstanz und Energie

Energieausweis

A
  • Baujahr2016
  • Zustand der ImmobilieGepflegt
  • EnergieträgerGas, Solar
Immowelt logo

Mietkosten

Kaltmiete
11,80 €/m²
870 €
Nebenkosten
290 €
Heizkosten
in Warmmiete enthalten
Zusätzliche Kosten
Miete pro Stellplatz
60 €
Kaution
1740 €
Weitere Preisinformationen
1 Garagenstellplatz, Miete: 60,00 EUR
Nettokaltmiete: 870,00 EUR

Lage

address-icon
Geldern (47608)
Der Anbieter hat die genaue Adresse nicht freigegeben
Die Stadt Geldern liegt am linken Niederrhein und gehört mit ihren ca. 36.500 Einwohnern zu den größeren Städten am Niederrhein. Geldern bietet den Bewohnern eine sehr gute Verkehrsanbindung zu den Autobahnen A 40 und A 57, welche direkt ins Ruhrgebiet oder Richtung Köln führt. Durch den vorhandenen Bahnhof können Berufspendler bequem und stressfrei zu den Arbeitsstätten reisen.
Geldern bietet ein vielfältiges Angebot attraktiver Fachgeschäfte in der verkehrsberuhigten Innenstadt, den neu gestalteten Marktplatz mit Wasserlauf und gemütlicher Außengastronomie. Außerdem besitzt Geldern ein großes Freizeitangebot in den verschiedenen Sportrichtungen mit Segeln, Reiten, Golf, Tennis, Fußball, Volleyball oder Badminton sowie Bädern. Genießen Sie die wunderschöne Landschaft des Niederrheins und lassen Sie sich verzaubern vom Reiz des Niederrheins. Die zu vermietende Wohnung befindet sich nur ca. 10 Gehminuten vom Stadtzentum entfernt.

Weitere Informationen

Sonstiges Baujahr: 2016
Energiekennwert: 35,00 kWh/(m²*a)
Befeuerung/Energieträger: Gas
Energieausweistyp: Bedarfsausweis
Heizungsart: Zentralheizung
Energieeffizienzklasse: A

Die seniorengerechte und barrierefreie Wohnung eignet sich für sämtliche Altersklassen. Die Wohnung wird ohne Tapeten und mit Bodenbelägen übergeben. Sichern Sie sich die hochwertige Erdgeschosswohnung und vereinbaren noch heute einen unverbindlichen Besichtigungstermin mit uns. Stichworte Garage vorhanden, Anzahl der Schlafzimmer: 2, Anzahl der Badezimmer: 1, Anzahl Terrassen: 1, 3 Etagen Sonstiges/Wohnen: seniorengerechtes Wohnen

Weitere Services

Lust auf eine Besichtigung?
Eine Frage zur Immobilie?
Nachricht hinzufügen
Mit der Nutzung der oben angegebenen Telefonnummer oder durch Klicken auf „Kontaktieren“ akzeptierst Du die Allgemeinen Nutzungsbedingungen, denen Du jederzeit widersprechen kannst. Weitere Informationen zum Datenschutz

Über den Anbieter

Walbecker Str. 5, 47638 Straelen
partner badge
Partnerschaft
Herr Markus MüllerDein Kontakt
Online-ID: 2n3um5h
Referenznummer: 1659
van Megen Immobilien GmbH
Bewertung: 4,6 von 5 Sternen
Nachricht hinzufügen
Mit der Nutzung der oben angegebenen Telefonnummer oder durch Klicken auf „Kontaktieren“ akzeptierst Du die Allgemeinen Nutzungsbedingungen, denen Du jederzeit widersprechen kannst. Weitere Informationen zum Datenschutz
Wie zufrieden bist du mit dieser Seite (nicht mit der Immobilie selbst)?