Version: 8.26.0Navigation überspringen
8 €
1.300 m² Lagerfläche
Immowelt logo

Produktionshalle zur Miete - Erstbezug
8 €
/m²
1.300 m² Lagerfläche

***13m hohe Halle mit kernsanierter Bürofläche - Regensburg Osten***

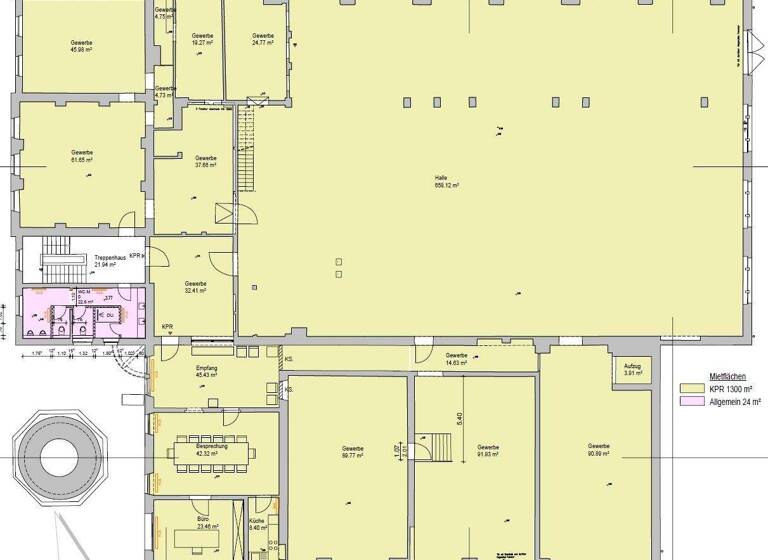
Die angebotene Gewerbefläche befindet sich in der Siemensstraße 7 in 93055 Regensburg, einem historischen Industriedenkmal. Das Gebäude umfasst insgesamt 3.205 m² Nutzfläche auf einem 4.395 m² großen Grundstück.

Die Halle bietet durch ihre enorme Deckenhöhe vielfältige Nutzungsmöglichkeiten und ist besonders attraktiv für Mieter, die hohe Räume benötigen. Die Büroflächen sind modern gestaltet und haben eine direkte Anbindung an die Hallenfläche.

Flächenaufteilung:

- Gesamtfläche: ca. 1.300 m²
- Hallenfläche: ca. 658 m², mit einer beeindruckenden Deckenhöhe von 13 Metern, ideal geeignet für Nutzungen, die von großzügiger Raumhöhe profitieren, wie beispielsweise eine Kletterhalle oder Hochregallager, aber auch eine Produktion, ist nach wie vor möglich.
- Bürofläche: ca. 119 m².

Vorteile:

- Flexible Nutzungsmöglichkeiten für verschiedene Gewerbezwecke
- Gute infrastrukturelle Anbindung und Erreichbarkeit
- Ausreichend Parkplätze vorhaben
- Industriecharme

Merkmale

  • Bezug: ab sofort
  • Denkmalschutz-Afa
  • Einbauküche
  • Keller
  • Bodenbelag: Fliesen, Teppich
  • Außen-Stellplatz
* hochwertiger Teppich
* hochwertige Badezimmerausstattung inkl. Dusche
* sehr helle Räume
* überdurchschnittliche Deckenhöhen
* Einbauküche inkl. E-Geräte (Geschirrspüler)
* zusätzliche Allgemein-WC
* Telefon & Internetanschluss für Telekom
* Hausmeisterservice
* Hausverwaltung

Grundrisse

Grundrisse
1 / 1

Bausubstanz und Energie

  • Baujahr1900
  • Zustand der ImmobilieMassivhaus, Erstbezug
  • HeizungsartZentralheizung
  • EnergieträgerGas
Immowelt logo

Mietkosten

Warmmiete
8.800 €
Nettomiete
8 €/m²
6.500 €
Nebenkosten
2.300 €
Heizkosten
in Warmmiete enthalten
Zusätzliche Kosten
Miete pro Stellplatz
35 €
Provision für Mieter
Provisionsfrei inkl. MwSt.
Kaution
keine Angabe
Weitere Preisinformationen
1 Stellplatz, Miete: 35,00 EUR
Nettokaltmiete: 6.500,00 EUR

Lage

address-icon
OstenviertelRegensburg (93055)
Der Anbieter hat die genaue Adresse nicht freigegeben
Regensburg-Ost in der Siemensstraße! In bester Nachbarschaft von Continental, Siemens, Ficotec und Elektro-Freitag.

Regensburg ist verkehrstechnisch hervorragend erschlossen:

Mit dem Auto:

Optimale Nord-Süd- und West-Ost-Anbindungen durch die Autobahnen A3 Frankfurt-Nürnberg-Wien und A93 München-Berlin sowie A6 Richtung Pilsen-Prag. Gute Erschließung der Region durch die Bundesstraßen B8, B15, bzw. B15 neu und B16.

Mit dem Flugzeug:

Etwa 55 Auto-Minuten zum Internationalen Flughafen München (MUC) und eine Stunde zum überregionalen Flughafen Nürnberg (NUE) Shuttle-Service "AirportLiner" zum Flughafen München Verkehrslandeplatz etwa 30 Kilometer von Regensburg und mehrere Sportflugplätze in der nahen Umgebung.

Mit dem Zug:

Eisenbahnknotenpunkt mit direkten Bahnlinien Richtung Berlin, Hannover-Hamburg, Wien-Frankfurt-Dortmund, München-Zürich-Bern, Stuttgart-Ulm, Prag und Budapest.

Mit dem Schiff:

Kostengünstiger Schifffahrtsweg durch den Rhein-Main-Donau-Kanal zwischen Nordsee, Rheinhäfen und dem Schwarzen Meer Die Lagerhaus- und Schifffahrtsgesellschaft mbH betreibt die städtische Personenschifffahrtslände zwischen Eiserner Brücke und Nibelungenbrücke. Sie ist mit acht Liegestellen Dienstleister für die Kreuzfahrtreedereien.

Der Regensburger Hafen ist mit 175 Hektar der flächenmäßig zweitgrößte und zugleich umschlagsstärkste Binnenhafen Bayerns; weitere Häfen in Kelheim und Straubing (Niederbayern) Ideale logistische Verknüpfung von Straße und Schiene in den Terminals für den kombinierten Ladungsverkehr an den Standorten Bayernhafen Regensburg (Betreiber: Container Terminal Regensburg) und Güterverkehrszentrum Regensburg

Weitere Informationen

Sonstiges Gerne sind wir für weitere Fragen und Informationen unter Tel.: 0941- 698 498 80 erreichbar.

Bei Kauf/Miete verpflichtet sich der Käufer/Mieter an ORANGE Immobilienagentur OHG - Benedikt Kalin, selbst. Immobilienmakler, eine Maklerprovision in der angegebenen Höhe nach notariellem Kaufvertrag bzw. nach einem Mietvertrag zu leisten. Durch Ihre Objektanfrage bestätigen Sie die Vereinbarung und Anerkennung dieser Maklercourtage. Alle Angaben stammen vom Eigentümer der Makler übernimmt hierfür keine Haftung.

Anfragen über die Immobilienportale werden nur mit vollständiger Adresse und Telefonnummer bearbeitet. Jeder ORANGE Immobilienagentur Kooperationspartner und somit selbständiger Immobilienmakler/in ist ein rechtlich eigenständiges Unternehmen bzw. handelt auf eigene Rechnung/Verantwortung. Aufsichtsbehörde: IHK für München und Oberbayern, Max-Joseph-Str. 2, 80333 München. Stichworte Lagerfläche: 1.300,00 m²

Weitere Services

Lust auf eine Besichtigung?
Eine Frage zur Immobilie?
Mit einer persönlichen Nachricht hast du bessere Chancen auf eine Antwort.
Mit der Nutzung der oben angegebenen Telefonnummer oder durch Klicken auf „Kontaktieren“ akzeptierst Du die Allgemeinen Nutzungsbedingungen, denen Du jederzeit widersprechen kannst. Weitere Informationen zum Datenschutz

Über den Anbieter

Kumpfmühler Str. 59, 93051 Regensburg
partner badge
10 Jahre Partnerschaft
Frau Lisa Folger
Frau Lisa FolgerDein Kontakt
Online-ID: 258CQ6442XM8
Referenznummer: 269-GE-K.3.1
Wie zufrieden bist du mit dieser Seite (nicht mit der Immobilie selbst)?