Wohnen über 2 Ebenen mit Südwestterrasse mitten in der Stadt
Wir bieten Ihnen in einer zentral gelegenen Wohnanlage im Westring 6b direkt an der Stadtmauer von Unna - also mitten in der Stadt - eine ruhig gelegene Maisonettewohnung über 2 Ebenen mit einer Terrasse (Südwestausrichtung) zum Garteninnenhof an.
In drei Himmelsrichtungen finden Sie eine "grüne" Aussicht.
Wir laden Sie ein, mit uns durch die Wohnung zu gehen:
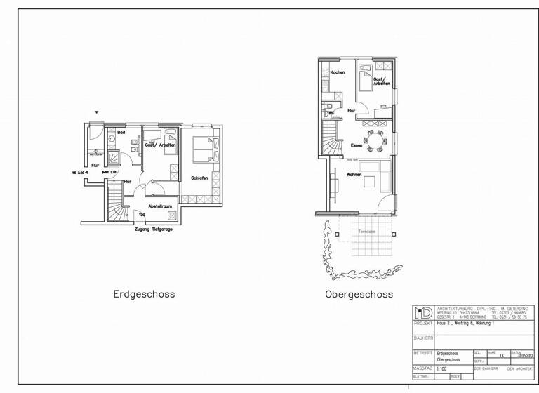
Durch den Gemeinschaftsflur, der nur von zwei Parteien benutzt wird, erreichen Sie Ihre neue Wohnungseingangstür.
Sie betreten die Wohnung und sind im Flur der Wohnung.
Rechtsseitig finden Sie das Badezimmer mit Fenster und hellen Fliesen.
Neben dem Badezimmer befinden sich zunächst ein Arbeitszimmer- oder Kinderzimmer und das Schlafzimmer.
Geht man dann zurück in Richtung Wohnungseingangstür, kommen Sie dann linksseitig zum Abstellraum mit Platz für die Waschmaschine und den Trockner und weiterhin zur Tür, die in die Tiefgarage führt.
Hier würde sich dann auch Ihr Tiefgaragenstellplatz befinden.
Vom Flur der unteren Ebene führt eine Treppe (der Einbau eines "Liftas" wäre möglich) hinauf zum Wohn- Essbereich und der offenen Küche.
Von der Küche können Sie direkt ins Grüne und auf die Stadtmauer schauen.
Neben der Küche gibt es ein weiteres Kinder- oder Arbeitszimmer.
Auf dieser Ebene sind der Wohn- Essbereich (wie bereits genannt) und auch das Gäste- WC.
Sie können von der oberen Ebene zu 3 Seiten ins Grüne schauen.
Die Wohnung liegt nicht direkt an einer Straße.
Insofern ist es eine sehr ruhig gelegene Wohnung.
Ein weiterer Tiefgaragenstellplatz in der Gemeinschaftstiefgarage kann angemietet werden.
Alle Wohnungen haben natürlich eigene Zähler (Strom, Wasser, Wärmemengenzähler).
Die Heizung ist 2022 erneuert worden.
Die Miete ist eine Staffelmiete.
Merkmale
frei ab 01.08.2026
offene Küche
Tiefgarage
Bad/WC getrennt, Gäste-WC
Gartenmitbenutzung
Terrasse
Badezimmer: Bad mit Dusche, Bad mit Fenster
Bodenbelag: Fliesen
Grundrisse
Grundrisse
1 / 1
Realisiere Dein Projekt
Bausubstanz und Energie
Energieausweis
C
Baujahr2004
HeizungsartZentralheizung: Fußbodenheizung
EnergieträgerGas
Mietkosten
Warmmiete
1.465 €
Kaltmiete
11,02 €/m²
1.135 €
Nebenkosten
330 €
Heizkosten
in Nebenkosten enthalten
100 €
Zusätzliche Kosten
Miete pro Stellplatz
80 €
Kaution
3 Monatskaltmieten
Lage
Westring 6, Unna (59423)
Diese Wohnung befindet sich mitten in der Stadt Unna im inneren Ring. Die Wohnung liegt nicht direkt an einer Straße. Die Lage ist insofern sehr ruhig.
Sie erreichen in ca. 2 Minuten die Fußgängerzone, das Kino, einen Supermarkt und bis zum Rathaus oder Bahnhof gehen Sie ca. 8 Minuten zu Fuß.
Zum Autobahnkreuz Dortmund/ Unna benötigen Sie auch nur wenige Minuten.
Weitere Informationen
Sonstiges
Info: Anzahl Etagen: 3
Wenn Sie Interesse haben, sehr zentral in dieser sympathischen Wohnung zu wohnen, dann freuen wir uns auf Ihre schriftliche Rückmeldung.
Bei Fragen vorab geben wir Ihnen auch gerne Auskunft:
gbi@deterding-architektur.de .
Da die Wohnung noch bewohnt ist, möchten wir keine aktuellen Fotos veröffentlichen, da wir die Privatsphäre der jetzigen Mieter achten.
Der Bezug der Wohnung erfolgt nach gemeinsamer Absprache.
Ihre personenbezogenen Daten wir Adresse, ggf. E-Mail, Telefonnummer oder Mobilfunknummer werden zur Erfüllung unserer Aufgaben, nämlich Ihnen eine Wohnung zu vermieten, u.a. unter Beachtung von § 5 BDSG und § 53 BDSG und § 5 BDSG a.F. gespeichert und ggf. verarbeitet. Ihre Daten werden ohne Ihr Einverständnis selbstverständlich nicht weitergegeben.
Zur Weitergabe bspw. an den Vermieter benötigen wir Ihr Einverständnis.