Denkmalgeschützte Villa am Schweizerhofpark in Berlin-Zehlendorf
Das denkmalgeschützte Einfamilienhaus, bekannt als Haus?Herhahn, vereint in Berlin-Zehlendorf klassischen Altbaucharme mit großzügiger Raumgestaltung und vielfältigen Nutzungsmöglichkeiten. Geplant und entworfen vom Architekten Georg Thofehrn, der vor allem Einfamilienhäuser und kleinere Villen für private Bauherren schuf, steht das Gebäude exemplarisch für den Heimatschutz- und Reformstil der 1920er-Jahre. Typisch dafür sind die massive Bauweise mit Klinker- oder Putzfassade, klare Formen und handwerklich gepflegte Details, die auch in diesem Haus deutlich erkennbar sind. Die Villa bietet sieben Zimmer und drei Bäder auf ca.?260?m² Wohnfläche und eignet sich hervorragend für alle, die ein Zuhause mit Geschichte und Charakter suchen. Hohe Decken, dekorative Stuckverzierungen und lichtdurchflutete Räume verleihen dem Anwesen eine besondere Ausstrahlung. Der in den 1990er-Jahren angebaute Wintergarten auf der Südseite schafft eine harmonische Verbindung zwischen Innen- und Außenbereich - ein idealer Ort zum Entspannen mit Blick ins Grüne. Im Erdgeschoss beeindruckt ein weitläufiger Wohn- und Essbereich mit bodentiefen Fenstern, die für eine freundliche Atmosphäre sorgen; die angrenzende Küche mit direktem Zugang zum Wintergarten trägt zusätzlich zum Wohnkomfort bei. Das Obergeschoss umfasst ein gemütliches Schlafzimmer mit Ankleide, ein Arbeitszimmer sowie ein Bad und Gäste-WC. Im ausgebauten Dachgeschoss stehen zwei weitere Zimmer mit eigenem Bad zur Verfügung - ideal als Kinder-, Gäste- oder Hobbyräume. Ergänzt wird das Raumangebot durch ein Untergeschoss mit Waschküche, Handwerksraum, Trockenkammer und Zugang zur Doppelgarage. Dank der ruhigen, familienfreundlichen Lage und des Potenzials zur individuellen Modernisierung stellt diese Immobilie eine seltene Gelegenheit dar, in einer der begehrtesten Wohnlagen Zehlendorfs ein Zuhause mit authentischem architektonischem Charakter zu gestalten.
Merkmale
Bezug: ab sofort
4 Geschosse
658 m² Grundstück
Einbauküche
Keller
Gäste-WC
Balkon
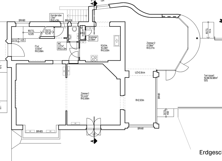
Grundrisse
Grundrisse
1 / 4
Realisiere Dein Projekt
Bausubstanz und Energie
Energieausweis
Ein Energieausweis ist für diesen Gebäudetyp nicht notwendig.
Baujahr1927
Zustand der Immobilierenovierungsbedürftig / sanierungsbedürftig
EnergieträgerÖl
Preisdetails
Kaufpreis
1295000 €1.295.000 €
4.980,77 €/m²
Provision für Käufer
3,57 % inkl. MwSt.
Geschätzte Gesamtkosten
1.444.831 €1
Kaufpreis
1.295.000 €
Kaufnebenkosten
149.831 €
2
Notarkosten (1,5%)
19.425 €
Grunderwerbsteuer (6%)
77.700 €
Provision für Käufer (3,57%)
46.231 €
Grundbucheintrag (0,5%)
6.475 €
1Der angezeigte Wert ist eine automatisch berechnete Schätzung von immowelt.
2Bei den Angaben handelt es sich um ortsübliche Werte. Individuelle Kosten können abweichen.
Lage
Zehlendorf, Berlin (14165)
Der Anbieter hat die genaue Adresse nicht freigegeben
Einer der schönsten und angesehensten Ortsteile ist der zu 50 Prozent aus Seen und Grünflächen bestehende Ortsteil Zehlendorf, wo auch dieses Objekt ganz im Süden und damit nahe der Grenze zu Kleinmachnow und Teltow liegt. Wer hier wohnt, blickt auf gepflegte Vorgärten der teils prächtigen, teils heimeligen Einfamilienhäuser in der Nachbarschaft - ein ideales Umfeld, um dem hektischen Treiben des Alltags zu entfliehen. Als Naherholungsgebiete stehen der Schweizerhof Park und der Schönower Park zur Verfügung. Besonders attraktiv für Familien ist zudem die Nähe zur renommierten John-F.-Kennedy-Schule, zum Droste-Hülshoff Gymnasium und der Schweizerhof-Grundschule. Trotz der ruhigen Lage findet sich sowohl am Teltower Damm als auch im nahegelegenen Zentrum Zehlendorfs alles, was das Herz begehrt. Verschiedene Einkaufsmöglichkeiten, Banken, Arztpraxen sowie Restaurants sind dort ansässig. Zum S-Bahnhof Zehlendorf gelangt man in wenigen Gehminuten. Mit dem Auto erreicht man die Berliner Stadtautobahn in ca. 20 Minuten.
Weitere Informationen
Stichworte
Nutzfläche: 147,00 m², Anzahl der Badezimmer: 3, Anzahl Balkone: 1, Balkon-Terrassen-Fläche: 27,00 m², Bundesland: Berlin