Version: 8.22.4Navigation ĂĽberspringen
15,32 €
71,1 m² Bürofläche
Immowelt logo

Bürofläche zur Miete
15,32 Euro pro Quadratmeter
71,1 m² Bürofläche

Office am Schlossplatz - Historisches Bürogebäude im Altstadtkern von Hohenems! Mehrere Einheiten zu vermieten - als Beispiel Top 6!

Office am Schlossplatz!

Lage:
Das Bürogebäude befindet sich in bester Lage direkt am Schlossplatz, im Herzen der historischen Altstadt von Hohenems. Diese zentrale Lage ermöglicht eine exzellente Erreichbarkeit und Sichtbarkeit für alle Arten von Geschäftstätigkeiten und bietet gleichzeitig die einzigartige Atmosphäre einer traditionsreichen Umgebung.

Gebäude:
Das historische Bauwerk wurde umfassend generalsaniert und verbindet geschickt den Charme und die Substanz eines alten Gebäudes mit modernster Ausstattung. Der repräsentative Charakter der Architektur sorgt für eine exklusive Arbeitsatmosphäre und beeindruckt sowohl Kunden als auch Mitarbeiter. Hier trifft traditionelles Flair auf zeitgemäße Eleganz.

Räumlichkeiten:
Die Büros und Praxisräume zeichnen sich durch hohe Decken und große Fenster aus, die für eine helle, freundliche Arbeitsumgebung sorgen. Das stilvolle Ambiente unterstreicht das historische Flair, während die Räume modernen Ansprüchen gerecht werden. Verschiedene Bürogrößen stehen zur Verfügung, um den individuellen Bedürfnissen der Mieter gerecht zu werden.

Umgebung:
Die unmittelbare Umgebung bietet alles, was man für den täglichen Bedarf benötigt. In der Nähe finden sich zahlreiche Einkaufsmöglichkeiten, Cafés und Restaurants, die eine hohe Lebensqualität und kurze Wege für Ihre Mitarbeiter und Kunden garantieren. Die charmante Altstadt lädt zu entspannenden Pausen und geschäftlichen Begegnungen ein.

Parkmöglichkeiten:
Das Gebäude bietet zugeordnete Parkplätze für Mieter sowie zahlreiche öffentliche Parkmöglichkeiten in direkter Nähe, was die Anfahrt für Besucher und Mitarbeiter besonders bequem macht.

Mietkonditionen:
Die Mietkonditionen sind besonders attraktiv: Die Gesamtmieten beinhalten alle Betriebskosten wie Strom, Heizung und weitere Nebenkosten. Verschiedene Bürogrößen stehen zur Auswahl.

Nutzung:
Das Gebäude eignet sich ideal für Büros, Praxen oder Kanzleiräumlichkeiten. Die Kombination aus modernster Ausstattung und historischem Charme schafft eine perfekte Grundlage für modernes Arbeiten in einer einzigartigen Umgebung.

Ausstattung:
Das Gebäude ist mit modernster technischer Infrastruktur ausgestattet, einschließlich einer Klimaanlage, um jederzeit eine angenehme Arbeitsatmosphäre zu gewährleisten. Schnelles Internet und alle weiteren notwendigen Anschlüsse sind ebenfalls vorhanden.

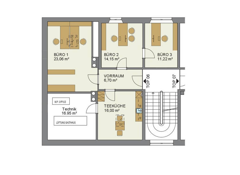
Top 6 im 3. Obergeschoss/ Dachgeschoss
Nutzfläche ca. 71,13 m²

Einteilung:
- 3 Büroräume
- TeekĂĽche
- Sanitäranlage zur Mitbenutzung

Mietpreis: € 790,00 zzgl. USt.
Betriebskosten (inkl. Strom & Heizung/Kühlung): ca. € 300,00 zzgl. USt.
Kaution: 3 Bruttomonatsmieten

Merkmale

  • Bezug: Ab sofort
  • 3. Geschoss
  • AuĂźen-Stellplatz
  • Gäste-WC
  • voll klimatisiert

Grundrisse

Grundrisse
1 / 1

Realisiere Dein Projekt

Bausubstanz und Energie

Heizwärmebedarf (HWB)

E

Gesamtenergieeffizienz (fGEE)

Der Anbieter hat keine Daten zum Energieausweis hinterlegt.
  • Baujahr1911
Immowelt logo

Mietkosten

Gesamtmiete
948 €
Nettokaltmiete zzgl. Betriebskosten
15,32 €/m²
790 €
Umsatzsteuer
158 €
Provision fĂĽr Mieter
2 BMM zzgl. 20% USt.
Kaution
3 BMM
Weitere Preisinformationen
1 Stellplatz
Nettokaltmiete: 790,00 EUR

Lage

address-icon
Hohenems (6845)
Der Anbieter hat die genaue Adresse nicht freigegeben

Weitere Informationen

Sonstiges Haben wir Ihr Interesse geweckt?
Dann vereinbaren Sie doch einfach einen Termin mit uns - eine Besichtigung lohnt sich.

Das Realbüro Hagen-Team garantiert professionelle Beratung und völlige Unabhängigkeit.

Durch unsere ausgeprägte Kompetenz und langjährige Erfahrung versichern wir Ihnen eine problemlose und sorgenfreie Abwicklung bis zur Schlüsselübergabe und darüber hinaus.

Ihr Ansprechpartner:
Thomas Jäger (Tel. 05577/83 111) oder
thomas.jaeger@realbuerohagen.at

Sonstige Auslagen:
2 Bruttomonatsmieten zzgl. 20% USt Vermittlungsprovision
Vertragserrichtungskosten
FinanzamtvergebĂĽhrung
(Zum Auftraggeber liegt ein wirtschaftliches Naheverhältnis vor.) Stichworte Nutzfläche: 71,13 m², Bundesland: Vorarlberg

Weitere Services

Lust auf eine Besichtigung?
Eine Frage zur Immobilie?
Nachricht hinzufĂĽgen
Mit der Nutzung der oben angegebenen Telefonnummer oder durch Klicken auf „Kontaktieren“ akzeptierst Du die Allgemeinen Nutzungsbedingungen, denen Du jederzeit widersprechen kannst. Weitere Informationen zum Datenschutz

Ăśber den Anbieter

RealbĂĽro Hagen
RealbĂĽro HagenMaklerbĂĽro
Maria Theresien Str. 20, 6890 LUSTENAU
partner badge
10 Jahre Partnerschaft
Herr Thomas Jäger
Herr Thomas JägerDein Kontakt
Online-ID: 2l9z55f
Referenznummer: 5808_6
RealbĂĽro Hagen
title
RealbĂĽro Hagen
Bewertung: 4,6 von 5 Sternen
Nachricht hinzufĂĽgen
Mit der Nutzung der oben angegebenen Telefonnummer oder durch Klicken auf „Kontaktieren“ akzeptierst Du die Allgemeinen Nutzungsbedingungen, denen Du jederzeit widersprechen kannst. Weitere Informationen zum Datenschutz
Wie zufrieden bist du mit dieser Seite (nicht mit der Immobilie selbst)?