Version: 8.24.0Navigation überspringen
2.995.000 €
1.379 m² Grundstück
Immowelt logo

Grundstück zum Kauf • provisionsfrei
2995000 €
2.172 €/m²
1.379 m² Grundstück

Grundstück | 1.379 m² | Architekturprojekt für 2 Häuser | Restelo, Lissabon

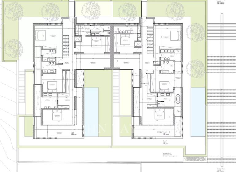
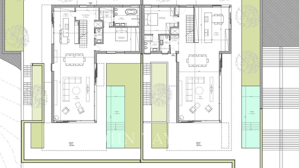
Ein 1.379 m² großes Grundstück mit einem genehmigten architektonischen Projekt, das die Möglichkeit bietet, ein oder zwei Einfamilienhäuser zu bauen. Die derzeit genehmigte Lösung sieht zwei Doppelhaushälften vor, was zwei autonomen Immobilien auf einem einzigen Grundstück entspricht.

Die geltende Zuteilung erlaubt in jeder der Optionen eine oberirdische Bruttobaufläche von 965 m² und eine Implantationsfläche von 495 m², was dieses Grundstück zu einer einzigartigen Gelegenheit für ein exklusives Wohnprojekt macht, sei es für den Eigenbedarf, als Investition oder für eine Entwicklung von hohem Standard.

Obwohl sich die Villen die Zugangsrampe zum Untergeschoss und den Fußgängereingang teilen, wurde jede Einheit so konzipiert, dass eine völlige funktionale und wohnliche Unabhängigkeit gewährleistet ist, mit einem privaten Parkplatz im Untergeschoss, einem exklusiven Garten, einem eigenen Swimmingpool und einem völlig unabhängigen Zugang. Das Projekt umfasst ein Untergeschoss mit einer Garage für vier Autos, einen Abstellraum und eine Suite mit Tageslicht, große Gemeinschaftsbereiche im Erdgeschoss, private Schlafzimmer im Obergeschoss und eine 84 m² große Dachterrasse mit weitem, unverbautem Blick.

Im Herzen von Restelo, einem der prestigeträchtigsten Wohnviertel Lissabons, gelegen, profitiert diese Immobilie von einer absolut einzigartigen Lage, umgeben von Gärten, Botschaften und emblematischen Wahrzeichen wie dem Belém-Turm, dem Jerónimos-Kloster und der Champalimaud-Stiftung.

John Taylor ist eines der ältesten und renommiertesten internationalen Unternehmen für Luxusimmobilien und kann auf eine über 160-jährige Geschichte zurückblicken, die der Vermittlung außergewöhnlicher Immobilien gewidmet ist. In Portugal ist John Taylor in Lissabon, Cascais und Comporta mit einem erfahrenen und hochqualifizierten Team tätig, das einen persönlichen Service bietet, der auf Sorgfalt, Diskretion und gründlicher Marktkenntnis beruht.

Für weitere Informationen zu dieser Immobilie oder zur Vereinbarung eines Besichtigungstermins laden wir Sie ein, sich mit John Taylor Portugal in Verbindung zu setzen. Wir werden Ihnen gerne einen professionellen und engagierten Service bieten.

Merkmale

  • 1.379 m² Grundstück
  • Badewanne

Grundrisse

Grundrisse
1 / 2

Realisiere Dein Projekt

Bausubstanz und Energie

Der Anbieter hat keine Informationen zum Energieverbrauch bereit gestellt.
  • Zustand der Immobilieneuwertig
  • HeizungsartZentralheizung
  • EnergieträgerLuft-/Wasser-Wärmepumpe
Immowelt logo

Preisdetails

Kaufpreis
2995000 €
2.171,86 €/m²
Provision für Käufer
provisionsfrei

Lage

address-icon
Belém (1400)
Der Anbieter hat die genaue Adresse nicht freigegeben

Weitere Informationen

Stichworte Garage vorhanden, Carport vorhanden, Gesamtfläche: 1.379,00 m², Anzahl der Schlafzimmer: 6, Anzahl der Badezimmer: 7, 2 Etagen

Weitere Services

Lust auf eine Besichtigung?
Eine Frage zur Immobilie?
Nachricht hinzufügen
Mit der Nutzung der oben angegebenen Telefonnummer oder durch Klicken auf „Kontaktieren“ akzeptierst Du die Allgemeinen Nutzungsbedingungen, denen Du jederzeit widersprechen kannst. Weitere Informationen zum Datenschutz

Über den Anbieter

Place des Moulins, 98000 MONACO
partner badge
Partnerschaft
John Taylor Lisbon John Taylor LisbonDein Kontakt
Keine Telefonnummer hinterlegt
Keine Telefonnummer hinterlegt
Online-ID: 2hdmd5j
Referenznummer: V0400LI
John Taylor Corporate
Nachricht hinzufügen
Mit der Nutzung der oben angegebenen Telefonnummer oder durch Klicken auf „Kontaktieren“ akzeptierst Du die Allgemeinen Nutzungsbedingungen, denen Du jederzeit widersprechen kannst. Weitere Informationen zum Datenschutz
Wie zufrieden bist du mit dieser Seite (nicht mit der Immobilie selbst)?