Version: 8.22.4Navigation überspringen
1.250.000 €
550,4 m²  •  201 m² Grundstück
Immowelt logo

Gewerbeobjekt zum Kauf • als Kapitalanlage geeignet
1250000 €
2.271 €/m²
550,4 m²  •  201 m² Grundstück

Renditestarkes Zinshaus mit Wohn- und Gewerbeflächen in Top-Lage

IHRE INVESTMENT-GELEGENHEIT IM HERZEN VON FELDKIRCHEN

Ein komplettes Zinshaus in zentraler Lage - top gepflegt, renditestark und mit Entwicklungspotenzial!

Inmitten der charmanten Bezirksstadt Feldkirchen in Kärnten präsentiert sich dieses außergewöhnlich gepflegte Zinshaus als attraktives Anlageobjekt für Investoren und Kapitalanleger. Die Liegenschaft erstreckt sich über insgesamt vier Etagen und befindet sich in einem äußerst gepflegten Gesamtzustand. Durch die Kombination aus zentraler Lage, solider Bauqualität und nachhaltiger Vermietbarkeit bietet sich hier eine seltene Gelegenheit am Kärntner Immobilienmarkt.

-------------------------

IMMO HOCH2-HIGHLIGHTS

* Lage: zentral in Feldkirchen, wenige Schritte vom Hauptplatz entfernt
* Wohnfläche gesamt: ca. 304,48 m²
* Geschäftsfläche gesamt: ca. 245,89 m² (exkl. Keller)
* Baujahr: Das ursprüngliche Haus wurde in den 60igern zu- und ausgebaut
1990: Zubau 3. Stock + Dachterrasse
* Fenster: 2-fach Kunststofffenster mit Außenjalousien (Eurotherm, 2001)
* Befeuerung: Fernwärme-Zentralheizung
* Besonderheiten: Perfektes Renditeobjekt mit großzügigen Kellerflächen, sonniger Dachterrasse und Solaranlage zur Warmwasseraufbereitung

-------------------------

AUFTEILUNG DER EINHEITEN

Kellergeschoß:
Großzügige Nutzflächen mit mehreren Räumen - ideal für Werkstätten, Lagerräume oder Nebenflächen

Erdgeschoß:
. Gewerbefläche mit ca. 139,37 m² - aktuell an ein Versicherungsunternehmen vermietet

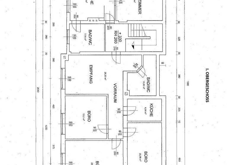
1. Obergeschoß:
. 1 Gewerbefläche mit ca. 106,52 m² - vermietet an ein Lerninstitut
. 1 Wohnung mit ca. 46,64 m² - aktuell vermietet

2. Obergeschoß:
. 1 Wohnung mit ca. 103,94 m² - derzeit Eigenbedarf
. 1 Wohnung mit ca. 42,94 m² - derzeit Eigenbedarf

3. Obergeschoß:
. 1 Wohnung mit ca. 110,96 m² - derzeit Eigenbedarf
. Großzügige, separate Terrasse mit Zugang zur großzügigen Dachterrasse

-------------------------

ATTRAKTIVES ANLAGEOBJEKT MIT STABILER ERTRAGSLAGE

Dieses Zinshaus überzeugt durch beste Vermietbarkeit in zentraler Lage, gepflegte Substanz und ein hohes Maß an Investitionssicherheit. Ursprünglich befand sich auf dem Grundstück ein kleines Haus aus den 1960er-Jahren, das ab 1960 von Grund auf neu errichtet und in den Folgejahren umfassend ausgebaut wurde. Der Mix aus Wohn- und Gewerbeeinheiten sorgt für eine breit gestreute Mieterstruktur und stabile Einnahmen.

Die großzügigen Kellerflächen bieten zudem weiteres Nutzungspotenzial. Bei Vollvermietung ist eine äußerst attraktive Gesamtrendite von rund 5-6 % erzielbar, wodurch sich das Objekt besonders als langfristige Kapitalanlage für Investoren eignet. Dank der zentralen Stadtlage in Feldkirchen profitieren künftige Eigentümer von einer ausgezeichneten Infrastruktur: Nahversorger, Banken, Schulen, Gastronomie und öffentliche Verkehrsanbindungen sind in unmittelbarer Umgebung erreichbar.

BESTE LAGE IN FELDKIRCHEN

Feldkirchen in Kärnten zählt zu den beliebtesten Bezirksstädten des Landes - sowohl wirtschaftlich als auch infrastrukturell hervorragend aufgestellt. Durch die Nähe zu Klagenfurt, Ossiacher See und Wörthersee ist die Region besonders gefragt bei Mietern und Anlegern. Die zentrale Innenstadtlage garantiert beste Frequenz für Gewerbemieter und Lebensqualität für Bewohner.

ZUSAMMENFASSUNG

Dieses Zinshaus vereint Lagequalität, gepflegte Substanz und nachhaltige Rendite in idealer Weise. Mit seiner durchdachten Aufteilung auf Wohn- und Gewerbeflächen, der modernen Heiztechnik sowie der großzügigen Dachterrasse bietet die Liegenschaft ein wertstabiles Investment in einer aufstrebenden Bezirksstadt Kärntens.

Ideal für Investoren, die eine solide Liegenschaft mit langfristigem Wertsteigerungspotenzial suchen.

KONTAKTIEREN SIE UNS FÜR WEITERE UNTERLAGEN ODER EINEN PERSÖNLICHEN BESICHTIGUNGSTERMIN. WIR BERATEN SIE GERNE VERTRAULICH, DISKRET UND PROFESSIONELL!

Infrastruktur / Entfernungen

Gesundheit
Arzt <500m
Apotheke <500m
Krankenhaus <1.000m

Kinder & Schulen
Schule <500m
Kindergarten <500m
Höhere Schule <500m

Nahversorgung
Supermarkt <500m
Bäckerei <500m
Einkaufszentrum <500m

Sonstige
Bank <500m
Geldautomat <500m
Post <500m
Polizei <1.000m

Verkehr
Bus <500m
Bahnhof <1.000m
Flughafen <2.500m
Autobahnanschluss <10.000m

Angaben Entfernung Luftlinie / Quelle: OpenStreetMap

Merkmale

  • 201 m² Grundstück
  • Einbauküche, Teeküche
  • Gäste-WC
  • Terrasse
  • Badezimmer: Badewanne, Bad mit Dusche, Bad mit Fenster
  • Bodenbelag: Fliesen, Laminat, Kunststoff, Teppich
  • voll erschlossen

Grundrisse

Grundrisse
1 / 5

Virtueller Rundgang

3D tour

Realisiere Dein Projekt

Bausubstanz und Energie

Heizwärmebedarf (HWB)

C

Gesamtenergieeffizienz (fGEE)

C
  • Zustand der ImmobilieNeubau
  • HeizungsartZentralheizung
  • EnergieträgerFernwärme
Immowelt logo

Preisdetails

Kaufpreis
1250000 €
2.271,20 €/m²
Provision für Käufer
3% des Kaufpreises zzgl. 20% USt.

Lage

address-icon
Feldkirchen in Kärnten (9560)
Das Zinshaus befindet sich in zentraler Innenstadtlage von Feldkirchen in Kärnten, nur wenige Schritte vom Hauptplatz entfernt. Die Lage überzeugt durch ihre ausgezeichnete Infrastruktur - Geschäfte, Banken, Gastronomie, Ärzte, Schulen und öffentliche Verkehrsanbindungen sind fußläufig erreichbar.

Feldkirchen gilt als aufstrebende Bezirksstadt mit stabiler Nachfrage im Wohn- und Gewerbebereich. Durch die Nähe zu Klagenfurt, dem Ossiacher See und dem Wörthersee zählt sie zu den attraktivsten Investmentstandorten im Kärntner Zentralraum.

Weitere Informationen

Sonstiges Die angegebenen Daten stammen vom Eigentümer/Eigentümervertreter/Verwalter. Sie sind gewissenhaft erhoben worden. Dennoch kann für die Richtigkeit und Vollständigkeit keine Gewähr übernommen werden. Zahlenangaben können gegebenenfalls gerundet sein oder auf Schätzungen beruhen. Irrtümer und Änderungen vorbehalten. Das Angebot ist freibleibend und unverbindlich.

Technische Anlagen / Einrichtungen und Geräte wurden nicht auf Ihre Funktionstüchtigkeit überprüft. Das Angebot ist freibleibend und unverbindlich. Irrtümer und Änderungen sind vorbehalten. 

Die symbolischen Darstellungen (Pläne) sind nicht maßstabsgetreu und wurden ausschließlich zur Veranschaulichung erstellt. Gemäß AI-Act muss auf KI-generierte Inhalte hingewiesen werden. Für Maße, Angaben, Anschlüsse, Ausrichtungen und korrekte Darstellungen der Räume, Türen, Fenster usw. wird KEINE Haftung übernommen. Diese Darstellungen sind nicht Vertragsgrundlage. 

Für laufende Neuigkeiten aus dem Immobilienmarkt und neue Immobilien. Folgen Sie uns auch auf: Facebook [https://www.facebook.com/immohoch2] | Instagram [https://www.instagram.com/ariane.barrasch_immohoch2/] Stichworte Wohnfläche: 304,48 m², Nutzfläche: 550,37 m², Bürofläche: 245,89 m², Anzahl der Badezimmer: 5, Anzahl der separaten WCs: 5, Anzahl Terrassen: 1, Bundesland: Kärnten, 4 Etagen, modernisiert

Weitere Services

Lust auf eine Besichtigung?
Eine Frage zur Immobilie?
Nachricht hinzufügen
Mit der Nutzung der oben angegebenen Telefonnummer oder durch Klicken auf „Kontaktieren“ akzeptierst Du die Allgemeinen Nutzungsbedingungen, denen Du jederzeit widersprechen kannst. Weitere Informationen zum Datenschutz

Über den Anbieter

Immo Hoch2 GmbHMaklerbüro
Hauptstraße 160, 9210 PÖRTSCHACH AM WÖRTHER SEE
partner badge
3 Jahre Partnerschaft
Frau Mag. Anna- Katharina KosDein Kontakt
Online-ID: 2mt5554
Referenznummer: OBGC20251028112211290cf90827366
Immo Hoch2 GmbH
Bewertung: 5 von 5 Sternen
Nachricht hinzufügen
Mit der Nutzung der oben angegebenen Telefonnummer oder durch Klicken auf „Kontaktieren“ akzeptierst Du die Allgemeinen Nutzungsbedingungen, denen Du jederzeit widersprechen kannst. Weitere Informationen zum Datenschutz
Wie zufrieden bist du mit dieser Seite (nicht mit der Immobilie selbst)?