Version: 8.24.1Navigation überspringen
699.000 €
5 Zimmer  •  125 m²

Reihenendhaus zum Kauf - Erstbezug
699000 €
5.592 €/m²
5 Zimmer  •  125 m²

NEU ?? ERSTBEZUG ?? NÄHE U6 ?? HAUS MIT GARTEN ?? TERRASSE ?? PKW-STELLPLATZ ?? KÜCHE ?? EIGENTUMSGRUND ?? 1230 WIEN

* HAUS:

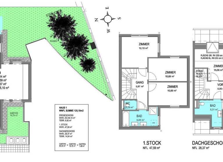
Zum Verkauf gelangt ein wunderschönes Haus mit Garten und PKW-Stellplatz in Südlage in 1230 Wien, das bereits fertiggestellt wurde und somit ab sofort bezugsfertig ist.

Das Haus ist ost-, süd- und westseitig ausgerichtet und verfügt über ca. 125 m² Wohnfläche, einen Garten mit ca. 73 m² sowie zwei Terrassen mit insgesamt ca. 24 m².

Das Haus bietet 5 Zimmer und gliedert sich wie folgt:

* Erdgeschoss:

Wohnküche (eine neue Küche wurde soeben eingebaut und ist im Kaufpreis inkludiert), Technikraum, Toilette, Terrasse sowie eine eigene Gartenfläche.

* 1. Obergeschoss:

3 Schlafzimmer, Badezimmer mit Badewanne, Fenster und Waschmaschinenanschluss sowie eine getrennte Toilette.

* Dachgeschoss:

Zimmer, Badezimmer mit Dusche, Fenster und Toilette sowie eine Terrasse mit schönem Weitblick.

* ÖFFENTLICH UNTERWEGS:

Die Lage ist so gut positioniert, dass man in ca. 5-10 Minuten zu Fuß jede Menge öffentliche Verkehrsanbindungen erreichen kann: U6, Badner Bahn sowie diverse Bus- und Straßenbahnstationen ermöglichen es endlich, ein Haus zu besitzen, ohne unbedingt zwei Autos haben zu müssen!

Somit kann man in der Früh oder am Nachmittag, während andere im Stau stecken, entspannt und schnell die Schule oder den Kindergarten erreichen, umweltfreundlich zum Arbeitsplatz fahren oder am Abend auch ohne Taxi nach Hause kommen.

* AUSSTATTUNG:

Das Haus wird über eine eigene Luftwärmepumpe beheizt, die durch eine Photovoltaikanlage am Dach unterstützt wird. Die Beheizung erfolgt mittels Fußbodenheizung, über die im Sommer auch eine Kühlung möglich ist.

Alle Zimmer, der Vorraum sowie die Treppen sind mit hochwertigem Echtholzparkettboden (Eiche, Landhausdiele)ausgestattet. Der Vorraum, der Technikraum sowie die Badezimmer und Toiletten wurden mit modernen, hochwertigen Fliesen ausgestattet.

Die Fenster und Terrassentüren sind dreifach verglast und verfügen über eine Außenbeschattung.

Eine maßgefertigte Tischlerküche wurde bereits eingebaut und ist mit sämtlichen Geräten ausgestattet.

Ein PKW-Stellplatz ist ebenfalls im Kaufpreis inkludiert.

* KEIN BAURECHT / KEINE PACHT:

Das Haus wurde auf Eigengrund errichtet. Es fallen daher keine Baurechts- oder Pachtgebühren an.

*

TOP LAGE:

DETAILLIERTES LAGEEXPOSÉ (68 Seiten!) vorhanden und erfolgt umgehend nach Anfrage.

*

MODERNE UND MASSGESCHNEIDERTE FINANZIERUNG:

"Hausbank war gestern"!

Heutzutage haben wir für Sie online und sofortigen Zugang zu den besten und neuesten Finanzprodukten von über 120 Kreditinstituten in Österreich und Deutschland.

Genau wie beim Immobilienvergleich, ermöglichen wir Ihnen, alle relevante Bankangebote zu vergleichen, um das beste für Sie zu finden!

Auch Angebote ohne Eigenmittel, mit festen Zinssätzen und einer beeindruckenden Laufzeit von bis zu 45 Jahren sind verfügbar!

So sparen Sie Zeit, Geld und Nerven!

 

NEU ?? ERSTBEZUG ?? NÄHE U6 ?? HAUS MIT GARTEN ?? TERRASSE ?? PKW-STELLPLATZ ?? KÜCHE ?? EIGENTUMSGRUND ?? 1230 WIEN

Wir weisen darauf hin, dass zwischen dem Vermittler und dem zu vermittelnden Dritten ein familiäres oder wirtschaftliches Naheverhältnis besteht.

Der Vermittler ist als Doppelmakler tätig.

Merkmale

  • Bezug: Ab sofort möglich!
  • Einbauküche, offene Küche
  • Außen-Stellplatz
  • Gäste-WC
  • Terrasse
  • Badezimmer: Badewanne, Bad mit Dusche, Bad mit Fenster
  • WG-geeignet

Grundrisse

Grundrisse
1 / 2

Realisiere Dein Projekt

Bausubstanz und Energie

Heizwärmebedarf (HWB)

B

Gesamtenergieeffizienz (fGEE)

A+
  • Baujahr2024
  • Zustand der ImmobilieNeubau, Fertighaus, Erstbezug
  • HeizungsartFußbodenheizung
  • EnergieträgerLuft-/Wasser-Wärmepumpe
MediumRectangleTop

Preisdetails

Kaufpreis
699000 €
5.592 €/m²
Provision für Käufer
3% des Kaufpreises zzgl. 20% USt.
Weitere Preisinformationen
1 Stellplatz

Lage

address-icon
Wien (1230)
U6 - Perfekterstraße

Weitere Informationen

Stichworte Stellplatz vorhanden, Süd-Süd-Ost-Süd-West-Balkon/Terrasse, Anzahl der Badezimmer: 2, Anzahl der separaten WCs: 3, Anzahl Terrassen: 2, Balkon-Terrassen-Fläche: 24,00 m², Gartenfläche: 73,00 m², Bundesland: Wien, 3 Etagen, Wohnungsnr.: 1

Weitere Services

Lust auf eine Besichtigung?
Eine Frage zur Immobilie?
Nachricht hinzufügen
Mit der Nutzung der oben angegebenen Telefonnummer oder durch Klicken auf „Kontaktieren“ akzeptierst Du die Allgemeinen Nutzungsbedingungen, denen Du jederzeit widersprechen kannst. Weitere Informationen zum Datenschutz

Über den Anbieter

Am Hof 5/10, 1010 WIEN
partner badge
6 Jahre Partnerschaft
TRISTAR ImmobilienDein Kontakt
Online-ID: 26ISGP4KKUIM
Referenznummer: OBGC2026031018442947946834174f2
TRISTAR Immobilien GmbH & Co KG
Nachricht hinzufügen
Mit der Nutzung der oben angegebenen Telefonnummer oder durch Klicken auf „Kontaktieren“ akzeptierst Du die Allgemeinen Nutzungsbedingungen, denen Du jederzeit widersprechen kannst. Weitere Informationen zum Datenschutz
MediumRectangleTop
MediumRectangleBottom
MediumRectangleTop
Wie zufrieden bist du mit dieser Seite (nicht mit der Immobilie selbst)?