Version: 8.24.0Navigation ĂĽberspringen
DIVARES GmbH & Co. KG
1.850 €
5 Zimmer  â€˘  124,6 m²  â€˘  1. Geschoss

Wohnung zur Miete
1.850 €
5 Zimmer  â€˘  124,6 m²  â€˘  1. Geschoss

Familienwohnung in NauĂźlitz

+ Neubauprojekt Erstbezug
+ insgesamt 27 Wohnungen (1,5 bis 5 Zimmer)
+ viele Wohnungen mit tollem Blick auf Dresden City
+ schöne Außenanlagen, u.a. mit 1.000 m² Spielflächen
+ Vorbereitung für E-Mobilität
+ ökologische, klimaschonende Nahwärmeversorgung mit Holzpellets

+ der EigentĂĽmer wĂĽnscht eine Mindestmietdauer von 2 Jahren

Merkmale

  • Bezug: ab sofort möglich
  • 1. Geschoss
  • offene KĂĽche
  • Personenaufzug
  • Kelleranteil
  • Tiefgarage
  • Gäste-WC
  • Balkon

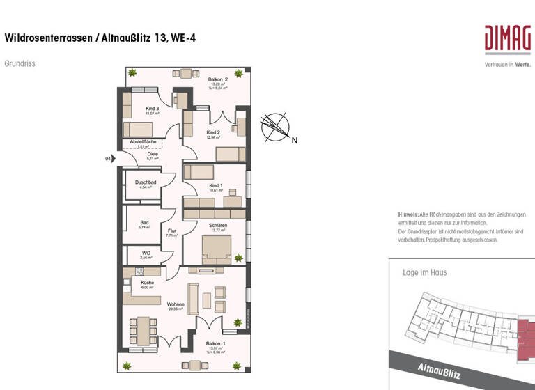
Grundrisse

Grundrisse
1 / 1

Realisiere Dein Projekt

Bausubstanz und Energie

Energieausweis

B
  • Baujahr2024
  • Zustand der ImmobilieNeubau, neuwertig
  • HeizungsartZentralheizung: FuĂźbodenheizung
  • EnergieträgerFernwärme
MediumRectangleTop

Mietkosten

Warmmiete
2.262 €
Kaltmiete
14,85 €/m²
1.850 €
Nebenkosten
412 €
Heizkosten
in Warmmiete enthalten
Zusätzliche Kosten
Miete pro Stellplatz
80 €
Kaution
5550 €
Weitere Preisinformationen
1 Tiefgaragenstellplatz, Miete: 80,00 EUR

Lage

address-icon
Altnaußlitz 13, Naußlitz, Dresden (01159)
+ Bus-Haltestelle AltnauĂźlitz (Linien 62 und 90) direkt an der Wohnanlage
+ Verkehrsknotenpunkt Kesselsdorfer StraĂźe mit Bahnlinien 1, 6 bis 8 und 10 bis 12 gut erreichbar
+ Kitas und Grundschulen im direkten Umfeld
+ weiterführende Schulen in den benachbarten Stadtteilen Löbtau, Cotta und Plauen
+ Einkaufsmöglichkeiten fußläufig erreichbar

Weitere Informationen

Sonstiges Es liegt ein Energiebedarfsausweis vor.
Dieser ist gĂĽltig bis 19.9.2034.
Endenergiebedarf beträgt 57.90 kwh/(m²*a).
Wesentlicher Energieträger der Heizung ist Fernwärme.
Die Energieeffizienzklasse ist B.

Kenndaten EnEV 2014: Baujahr: ca. 2024, 57,9 kWh/m²*a, Energieträger: Fernwärme, Bedarfsausweis (19.09.2024 bis 19.09.2034)

NICHT DAS PASSENDE? Weitere interessante Angebote finden Sie auf unserer Website! Stichworte Anzahl der Schlafzimmer: 4, Anzahl der Badezimmer: 2, Anzahl der separaten WCs: 1, Anzahl Balkone: 2, 4 Etagen, Wohnungsnr.: 4 (Haus C5)

Weitere Services

Lust auf eine Besichtigung?
Eine Frage zur Immobilie?
Nachricht hinzufĂĽgen
Mit der Nutzung der oben angegebenen Telefonnummer oder durch Klicken auf „Kontaktieren“ akzeptierst Du die Allgemeinen Nutzungsbedingungen, denen Du jederzeit widersprechen kannst. Weitere Informationen zum Datenschutz

Ăśber den Anbieter

DIVARES GmbH & Co. KG
PfotenhauerstraĂźe 45, 01307 Dresden
partner badge
10 Jahre Partnerschaft
Online-ID: 2kz6j5e
Referenznummer: 11078_04
DIVARES GmbH & Co. KG
DIVARES GmbH & Co. KG
Bewertung: 4,5 von 5 Sternen
Nachricht hinzufĂĽgen
Mit der Nutzung der oben angegebenen Telefonnummer oder durch Klicken auf „Kontaktieren“ akzeptierst Du die Allgemeinen Nutzungsbedingungen, denen Du jederzeit widersprechen kannst. Weitere Informationen zum Datenschutz
MediumRectangleTop
MediumRectangleBottom
MediumRectangleTop
Wie zufrieden bist du mit dieser Seite (nicht mit der Immobilie selbst)?