Version: 8.26.0Navigation überspringen
1.300 €
3 Zimmer  •  133,3 m²  •  2. Geschoss
Immowelt logo

Maisonette zur Miete
1.300 €
3 Zimmer  •  133,3 m²  •  2. Geschoss

Moderne Neubauwohnung mit Altbauflair! 3-Zimmer-Dachgeschoss - in Berching-Altstadt

Willkommen in Ihrem neuen Zuhause in der malerischen Altstadt von Berching! Diese exquisite Mietwohnung bietet auf ca. 133,27 m² ein großzügiges Raumkonzept mit 3 Zimmern, darunter zwei Schlafzimmer und ein Badezimmer. Diese Wohnung besticht durch ihre hochwertige Ausstattung und das eindrucksvolle Ambiente eines kernsanierten Altstadthauses.

Erleben Sie den Luxus eines modernen Erstbezugs mit Annehmlichkeiten wie einer Fußbodenheizung und einem großzügigen Badezimmer, das zum Entspannen einlädt. Das Elternschlafzimmer verfügt über einen Ankleidebereich, der optimale Rückzugsmöglichkeiten für erholsame Nächte bietet, während das Kinderzimmer in der Galerie auf der zweiten Ebene Raum für kreative Entfaltung schafft.

Ein besonderes Highlight ist die Loggia, die Ihnen als kleine Dachterrasse genussvolle Stunden im Freien ermöglicht. Für umweltbewusstes Wohnen sorgen ein innovatives Blockheizkraftwerk in Kombination mit einer Photovoltaikanlage, die eine nachhaltige Energieversorgung gewährleisten.

Diese einzigartige Immobilie ist bezugsfertig und bietet ein ideales Zuhause für alle, die Exklusivität und Komfort schätzen. Lassen Sie sich von der charmanten Lage und den zahlreichen Vorzügen dieser Wohnung begeistern!

Merkmale

  • Bezug: sofort
  • 2. Geschoss
  • Außen-Stellplatz
  • Balkon

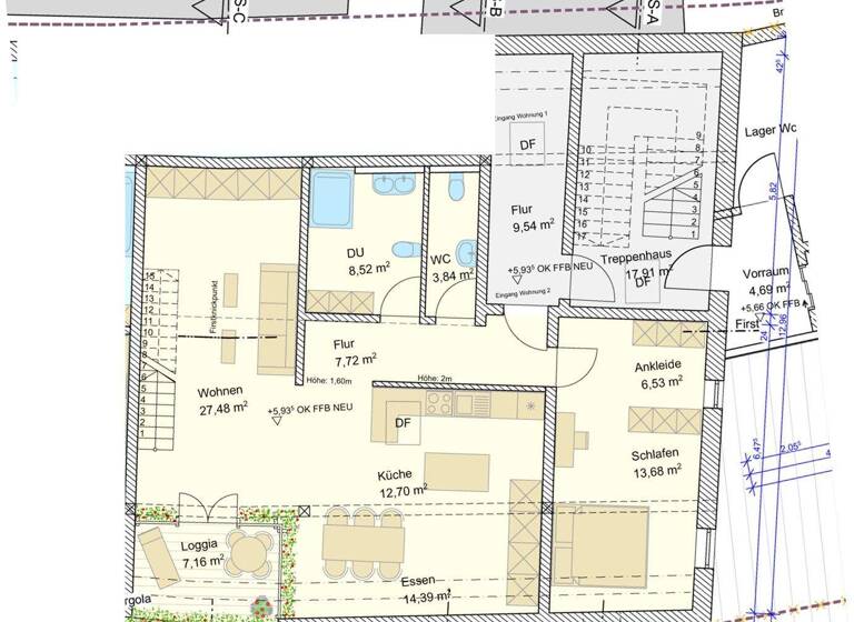
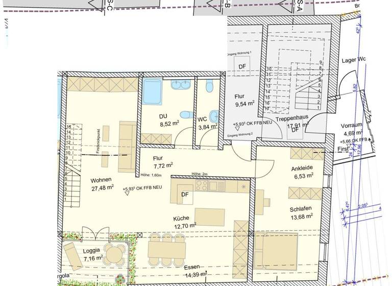
Grundrisse

Grundrisse
1 / 1

Bausubstanz und Energie

Möchtest du Details zum Energieverbrauch?info_energy_calculation-icon
  • HeizungsartFußbodenheizung
  • EnergieträgerFernwärme
Immowelt logo

Mietkosten

Warmmiete
1.650 €
Kaltmiete
9,75 €/m²
1.300 €
Nebenkosten
350 €
Heizkosten
in Warmmiete enthalten
Kaution
2600 €
Weitere Preisinformationen
1 Stellplatz

Lage

address-icon
Berching (92334)
Der Anbieter hat die genaue Adresse nicht freigegeben
Stadt Berching (PLZ 92334)
- Lage inmitten der Altstadt von Berching
- Kleinod des Mittelalters (Altstadtmauer mit 4 Stadttoren und 13 Türmen)
- anerkannter Erholungsort im Naturpark Altmühltal
- am Main-Donau-Kanal
- Einkaufsmöglichkeiten, Ärzte und sonstige Dienstleistungsgewerbe bequem zu Fuß erreichbar
- Kindergärten, vollklassige Hauptschule und eine staatliche Realschule vor Ort
- Busverbindung Linie Neumarkt i.d.OPf. - Berching - Dietfurt ist vorhanden.
- Entfernung zum Autobahnanschluss Greding (BAB 9 Nürnberg-München) ca. 10 km

Weitere Informationen erhalten Sie im Internet unter www.berching.de.

Weitere Informationen

Stichworte Anzahl der Schlafzimmer: 2, Anzahl der Badezimmer: 1, Anzahl Balkone: 1

Weitere Services

Lust auf eine Besichtigung?
Eine Frage zur Immobilie?
Mit einer persönlichen Nachricht hast du bessere Chancen auf eine Antwort.
Mit der Nutzung der oben angegebenen Telefonnummer oder durch Klicken auf „Kontaktieren“ akzeptierst Du die Allgemeinen Nutzungsbedingungen, denen Du jederzeit widersprechen kannst. Weitere Informationen zum Datenschutz

Über den Anbieter

Mühlstraße 1, 92318 Neumarkt
partner badgepartner badge
10 Jahre Partnerschaft + Diamond Partner
Herr Robert Alber
Herr Robert AlberDein Kontakt
Online-ID: 26FVGEH8E6WD
Referenznummer: V 1902
Wie zufrieden bist du mit dieser Seite (nicht mit der Immobilie selbst)?