Version: 8.25.1Navigation überspringen
3.025 €
6 Zimmer  •  203 m² Bürofläche
Immowelt logo

Bürofläche zur Miete • provisionsfrei
3.025 €
6 Zimmer  •  203 m² Bürofläche

Direkt vom Eigentümer: lichtdurchflutete und attraktive Bürofläche in frequentierter Lage

Mitten im Münchner Süden und mit bester Verkehrsanbindung liegt dieses gepflegte Büro- und Geschäftshaus. Die hellen und freundlich renovierten Büroflächen befinden sich in einem frequentierten Gewerbegebiet mit guten Einkaufsmöglichkeiten (Aldi, Obi, Dehner etc.).

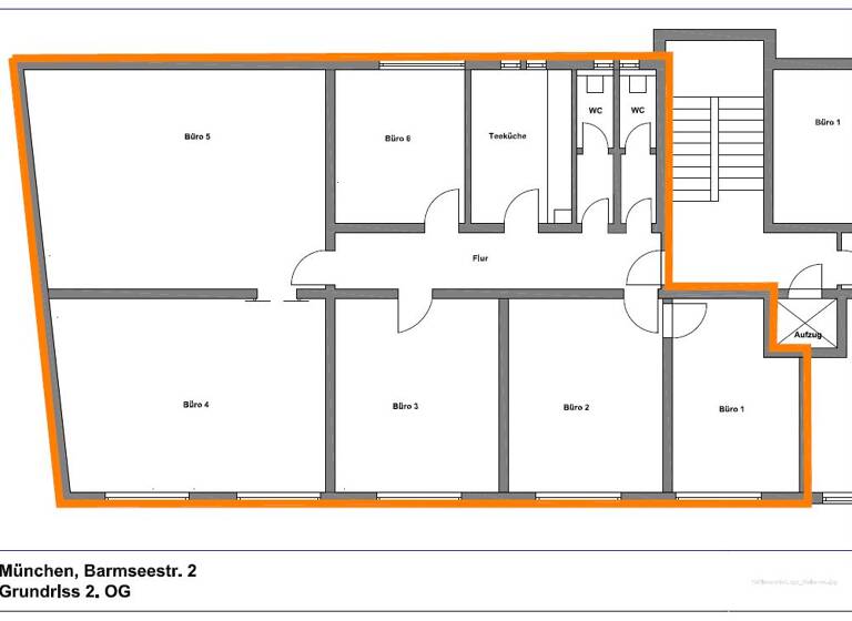
Die moderne Mietfläche befindet sich im zweiten Obergeschoss und umfasst sechs Büroräume, eine Teeküche und zwei separate WCs. Großzügige Fensterfronten und hohe Decken sorgen für eine angenehme, helle Arbeitsatmosphäre.

Bei Bedarf können zusätzlich Archivflächen im Keller zur Verfügung gestellt werden.

Für die Mietfläche sind zwei PKW-Stellplätze vorgesehen, welche bereits im Mietpreis enthalten sind.

Merkmale

  • Bezug: sofort
  • Personenaufzug
  • Einbauküche
  • Bodenbelag: Laminat
  • 2 Stellplätze: 2 Außen-Stellplätze
- großzügige Büroräume
- Bodenbelag Laminat
- Isolierverglaste Kunststofffenster mit außenliegendem Sonnenschutz und innenliegenden Plisses
- Teeküche mit Geschirrspülmaschine, 2er Kochplatte (Kühlschrank ist nicht vorhanden)
- Deckenhöhe ca. 3 m
- Personenaufzug

Kellerabteil/Archiv separat möglich.

2 Stellplätze im Innenhof zu je 83,30 Euro brutto mtl.

(Hinweis: die Stellplätze sind im angegebenen Mietpreis monatlich bereits mit eingerechnet.
Die angegebene Warmmiete ist ebenso inkl. Vorauszahlung für Betriebskosten/Heizkosten/Verwaltungskosten sowie zzgl. MwSt.)

Grundrisse

Grundrisse
1 / 1

Realisiere Dein Projekt

Bausubstanz und Energie

Energieausweis

Endenergieverbrauch (Wärme)

Endenergieverbrauch (Strom)

  • Baujahr1964
  • EnergieträgerÖl
Immowelt logo

Mietkosten

Warmmiete
4.427,99 €
Nettomiete
3.025 €
Nebenkosten
556 €
Zusätzliche Kosten
Miete pro Stellplatz
140 €
Provision für Mieter
provisionsfrei
Kaution
13283.97 €
Weitere Preisinformationen
2 Stellplätze, Miete je: 140,00 EUR

Lage

address-icon
Barmseestraße 2Thalk.Obersendl.-Forsten-Fürstenr.-SollnMünchen (81477)
Zwischen Fürstenried im Westen und Obersendling/Solln im Osten liegt dieses solide Bürogebäude inmitten eines frequentierten Gewerbegebietes. Es gehört zu den südlichen Stadtteilen Münchens mit großem Naherholungswert und dem Forstenrieder Park.
In unmittelbarer Umgebung finden Sie verschiedene Einzelhandelsgeschäfte, ein Fitnessstudio und vieles mehr.
Mit dem Auto sind Sie in nur wenigen Minuten auf der A95 (Richtung Garmisch-Patenkirchen) oder auf dem Mittleren Ring in "alle Richtungen". Vor dem Gebäude befindet sich eine Bushaltestelle mit einer schnellen Anbindung zur U-Bahn bzw. S-Bahn.

Weitere Informationen

Sonstiges Die Vermietung erfolgt direkt über den Eigentümer und ist für Sie provisionsfrei.

Energieausweis: Verbrauchsausweis, Energiekennwert Wärme: 85,5 kWh/(m²·a), Energiekennwert Strom: 14,9 kWh/(m²·a), Energieträger: Heizöl, Baujahr 1964 Stichworte Stellplatz vorhanden, Gesamtfläche: 203,00 m² Sonstiges: EDV-Verkabelung

Weitere Services

Lust auf eine Besichtigung?
Eine Frage zur Immobilie?
Mit einer persönlichen Nachricht hast du bessere Chancen auf eine Antwort.
Mit der Nutzung der oben angegebenen Telefonnummer oder durch Klicken auf „Kontaktieren“ akzeptierst Du die Allgemeinen Nutzungsbedingungen, denen Du jederzeit widersprechen kannst. Weitere Informationen zum Datenschutz

Über den Anbieter

Sendlinger Straße 47, 80331 München
partner badge
Partnerschaft
Julia HoffmannDein Kontakt
Keine Telefonnummer hinterlegt
Keine Telefonnummer hinterlegt
Online-ID: 25TJT5T899BB
Referenznummer: 178121926#htIX7e
Terrania GmbH
Terrania GmbH
Mit einer persönlichen Nachricht hast du bessere Chancen auf eine Antwort.
Mit der Nutzung der oben angegebenen Telefonnummer oder durch Klicken auf „Kontaktieren“ akzeptierst Du die Allgemeinen Nutzungsbedingungen, denen Du jederzeit widersprechen kannst. Weitere Informationen zum Datenschutz
Wie zufrieden bist du mit dieser Seite (nicht mit der Immobilie selbst)?