Sprechzimmer in stilvoller zentraler Praxis zu vermieten
Großes helles Sprechzimmer in gut eingeführter homöopathischer Praxis zur Untermiete.
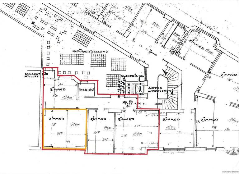
Sehr gepflegtes Sprechzimmer von 21 m² mit großem Fenster und Parkettboden.
Inclusive der Mitnutzung des repräsentativen Wartezimmers, Kaffeeküche / Besprechungsraumes und Bades in der 3. Etage eines hochwertigen Altbaus in perfekter Lage.
Wegen Denkmalschutz entfällt die Nachweispflicht eines Energieausweises.
Merkmale
frei ab sofort
Personenaufzug
Gäste-WC
Personenaufzug. Historische Stilelemente in Treppenhaus und Praxis. Neuwertiger Zustand der Praxisräume, liebevolle Einrichtung.
Grundrisse
Grundrisse
1 / 1
Realisiere Dein Projekt
Bausubstanz und Energie
Energieausweis
Ein Energieausweis ist für diesen Gebäudetyp nicht notwendig.
Baujahr1910
Zustand der ImmobilieGepflegt
Mietkosten
Warmmiete
550 €
Nettomiete
450 €
Nebenkosten
100 €
Provision für Mieter
Eine Monats-Kaltmiete inkl. MwSt.
Kaution
900 €900 €
Weitere Preisinformationen
Nettokaltmiete: 450,00 EUR
Lage
St Johann, Saarbrücken (66121)
Der Anbieter hat die genaue Adresse nicht freigegeben
Die Praxis in der Mainzer Straße in Saarbrücken profitiert von einer sehr vorteilhaften zentralen Lage:
Die Mainzer Straße liegt im beliebten und lebendigen Stadtteil St. Johann, der sich durch eine Mischung aus Einzelhandel, Gastronomie, Dienstleistungen und kulturaktivem Quartier auszeichnet - ideal für Sichtbarkeit und Kundenverkehr. Öffentliche Verkehrsmittel und gut ausgebaute Bus- und Straßenbahnverbindungen sind fußläufig erreichbar, was die Erreichbarkeit Ihrer Patienten deutlich verbessert. Die Straße ist eine wichtige Verkehrsader mit guter Verbindung zum regionalen Straßennetz (inkl. Nähe zur Autobahn) sowie zu nahegelegenen Parkmöglichkeiten.
In unmittelbarer Umgebung befinden sich zahlreiche Einzelhändler, Apotheken, Praxen, Cafés und Restaurants - ideal für kurze Wege vor oder nach Terminen und erhöhte Fußgängerfrequenz.
Kurz gesagt: sehr gute Erreichbarkeit, hohe Sichtbarkeit und eine lebendige Umgebung tragen zur Attraktivität der Praxislage bei.
Weitere Informationen
Sonstiges
Praxis ca. 90 m²:
Eingangsbereich/Flur, 2 Behandlungszimmer, große Kaffeeküche mit Besprechungstisch, Abstellraum, Bad.
Das angebotene Sprechzimmer hat eine Fläche von 21 m²
Hinweis zum Geldwäschegesetz: Das Geldwäschegesetz (GWG) verpflichtet uns, mit Erstkontaktaufnahme Ihre vollständigen Kontaktdaten aufzunehmen. Daher können wir nur Anfragen bearbeiten, die Ihren vollständigen Namen, Ihre Anschrift und Ihre Telefonnummer enthalten. Hierfür besteht eine Ausnahmeregelung im Hinblick auf die Datenschutzgrundverordnung-DSGVO. Mit Ihrer Erstkontaktaufnahme erhalten Sie von uns auch die Information zu Ihrem gesetzlichen Widerrufsrecht und zur DSGVO. Hinweis zum Widerrufsrecht für Verbraucher: Nach § 355 BGB hat der Verbraucher (gilt nicht für Unternehmer) ein 14-tägiges Widerrufsrecht gegenüber dem Unternehmer/Makler. Mit der Novellierung des Verbraucherrechts im Juni 2014 sind auch Maklerunternehmen verpflichtet, Kunden über ihre gesetzlichen Widerrufsrechte zu informieren. Zeitgleich mit Ihrer Anfrage via Email, Telefon, Fax, SMS oder Brief erhalten Sie von uns eine notwendige gesetzesgemäße Widerrufsbelehrung mit den entsprechenden Belehrungen.
Gerne stellen wir Ihnen das Objekt im Zuge einer Besichtigung vor. Bitte senden Sie uns eine schriftliche Anfrage zu und teilen Ihren Namen und Ihre Rückrufnummer mit. Wir setzen uns kurzfristig mit Ihnen zur Terminvereinbarung in Verbindung.
Angaben des Eigentümers / Auftraggebers: Das veröffentlichte Exposé wurde nach Angaben des Eigentümers veröffentlicht. Eine Haftung kann deshalb nicht übernommen werden.
DOPPELTE MAKLERTÄTIGKEIT ZU GLEICHEN ANTEILEN VON KÄUFER UND VERKÄUFER.
Stichworte
Gesamtfläche: 90,00 m², Büroteilfläche: 21,00 m²