Version: 8.24.0Navigation ĂĽberspringen
1.396.752 €
8.314 m² Grundstück
Immowelt logo

GrundstĂĽck zum Kauf
1396752 €
168 €/m²
8.314 m² Grundstück

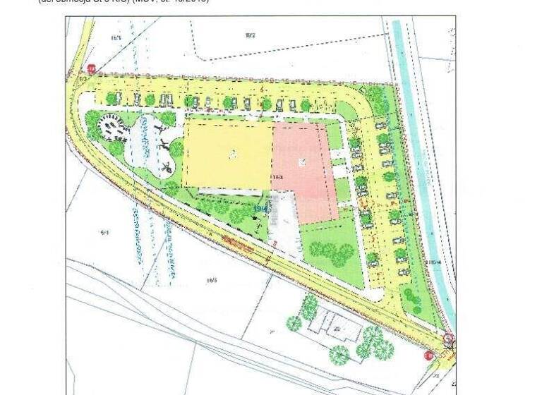
Baugrund fĂĽr Sportzentrum mit Potenzial in Maribor

Im Süden von Maribor, unter dem Hausberg Pohorje, entsteht seit einigen Jahren ein neuer lebendiger Stadteil mit neuen Wohnanlagen, Privathäusern, Kaufzentren, Sport- und Freizeitanlagen. Auf dem sonnigen, ruhigen Grundstück soll nach Bebaungsplan ein Sportzentrum mit Objekten für Sport, Wellness, Tagungsräumen, Gastgewerbe, Gesundheitszentrum... entstehen. Die angrenzenden Parzellen sind als Landschaftspark gewidmet. Bauprojekte und Genehmigungen sind vorhanden.

Der Anbieter bietet neben Verkauf auch verschiedene Formen einer Partnerschaft an:

- gemeinsame Investition in Anlagenbau

- Der Anbieter wĂĽrde die gebauten Objekte auch selber mieten.

Merkmale

  • 8.314 m² GrundstĂĽck

Grundrisse

Grundrisse
1 / 2

Realisiere Dein Projekt

Bausubstanz und Energie

Der Anbieter hat keine Informationen zu Energieverbrauch oder Zustand der Immobilie bereit gestellt.
Immowelt logo

Preisdetails

Kaufpreis
1396752 €
168 €/m²
Provision für Käufer
3 % zzgl. 20% MwSt.
Weitere Preisinformationen

exkl. gesetzl. MWSt.

Lage

address-icon
Maribor (2000)
Fallback location image
Die Karte ist nicht verfĂĽgbar.

Weitere Informationen

Stichworte Gesamtfläche: 8.314,00 m², Bundesland: Maribor

Weitere Services

Lust auf eine Besichtigung?
Eine Frage zur Immobilie?
Nachricht hinzufĂĽgen
Mit der Nutzung der oben angegebenen Telefonnummer oder durch Klicken auf „Kontaktieren“ akzeptierst Du die Allgemeinen Nutzungsbedingungen, denen Du jederzeit widersprechen kannst. Weitere Informationen zum Datenschutz

Ăśber den Anbieter

Albert Schweitzer Gasse 8, 8020 GRAZ
partner badge
10 Jahre Partnerschaft
Herr Jure LegvartDein Kontakt
Online-ID: 2mfh753
Referenznummer: O2100147693
Steindorff Immobilien GmbH
Steindorff Immobilien GmbH
Bewertung: 5 von 5 Sternen
Nachricht hinzufĂĽgen
Mit der Nutzung der oben angegebenen Telefonnummer oder durch Klicken auf „Kontaktieren“ akzeptierst Du die Allgemeinen Nutzungsbedingungen, denen Du jederzeit widersprechen kannst. Weitere Informationen zum Datenschutz
Wie zufrieden bist du mit dieser Seite (nicht mit der Immobilie selbst)?