Version: 8.26.0Navigation überspringen
Preis auf Anfrage
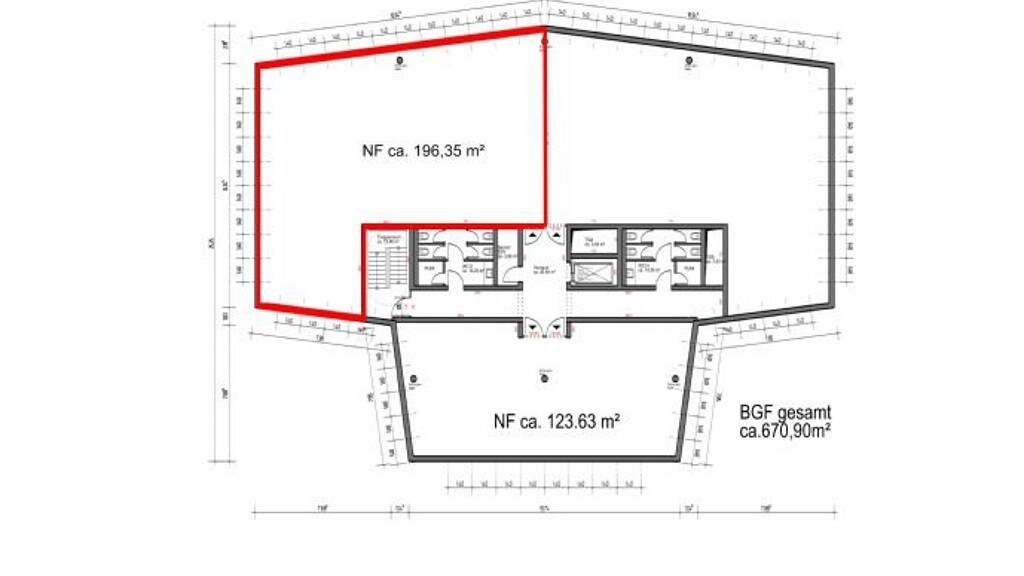
196,4 m² Bürofläche
Immowelt logo

Büro zum Kauf
196,4 m² Bürofläche

Helle Gewerbeflächen im neuen Business Park Lenting zum Kauf

Objektbeschreibung In Lenting bei Ingolstadt bieten wir Ihnen Gewerbeflächen zum Kauf an.
Die Einheiten eignen sich perfekt als Praxis- und Büroflächen, auch Einzelhandelsflächen stehen zum Verkauf.
Der Business Park Lenting wird neu erstellt, die ersten beiden Module von insgesamt 8 werden im Jahr 2026 bezugsfertig sein.
Die architektonisch ansprechenden Module werden jeweils 4 bis 6 Vollgeschosse hoch sein zuzüglich eines reduzierten Technikgeschosses auf der obersten Ebene. Das höchste Gebäude wird über 10 Vollgeschosse verfügen.

Der Kaufpreis variiert je nach gewünschtem Ausbaustatus der Gewerbeeinheit.

Raumaufteilung Die Flächen werden als veredelter Rohbau inkl. der haustechnisch erforderlichen Anschlüsse angeboten oder auf Wunsch auch schlüsselfertig.
Die Räumlichkeiten lassen vielfältige Möglichkeiten der Innenraumgestaltung zu.

Merkmale

  • Bezug: Ende 2026

Grundrisse

Verschaffe dir einen genauen Überblick über die Raumaufteilung.selection_property_house-icon

Bausubstanz und Energie

Energieausweis

Der Anbieter hat keine Daten zum Energieausweis hinterlegt.
  • Baujahr2025/26
Immowelt logo

Preisdetails

Provision für Käufer
Der Käufer zahlt eine Provision von 1,5% vom Kaufpreis zzgl. MwSt.

Lage

address-icon
Lenting (85101)
Der Anbieter hat die genaue Adresse nicht freigegeben
Der Business Park Lenting liegt zentral in der Mitte Bayerns und ist hervorragend an die regionalen und überregionalen Tangenten (an der BAB-Anschlußstelle Lenting zur A9) angebunden, innerhalb weniger Minuten ist die Zentrale der Audi AG zu erreichen.

Weitere Services

Lust auf eine Besichtigung?
Eine Frage zur Immobilie?
Nachricht hinzufügen
Mit der Nutzung der oben angegebenen Telefonnummer oder durch Klicken auf „Kontaktieren“ akzeptierst Du die Allgemeinen Nutzungsbedingungen, denen Du jederzeit widersprechen kannst. Weitere Informationen zum Datenschutz

Über den Anbieter

Friedrich-Ebert-Str. 18 ¼, 85055 Ingolstadt
partner badge
6 Jahre Partnerschaft
Herr Sebastian SchlagDein Kontakt
Online-ID: 23GF8P9W6YAP
Wie zufrieden bist du mit dieser Seite (nicht mit der Immobilie selbst)?