Version: 8.24.0Navigation überspringen
260.759 €
3 Zimmer  •  510 m² Grundstück
Immowelt logo

Einfamilienhaus zum Kauf
260758.86 €
3 Zimmer  •  510 m² Grundstück

Haus Jahorina, Pale , Dvorista Jahorina, 110m2

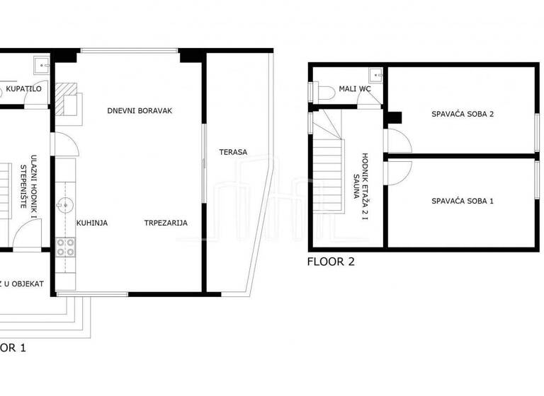
Stanpromet.ba - Immobilienagentur, aus seinem reichhaltigen und besten Angebot auf dem Markt und zum Verkauf in Jahorina, hebt die neue Wochenendvilla in Dvoristima/Jahorina hervor. Das Gebäude ist ein Neubau mit äußerst hochwertigen Materialien, wie es die Branche verlangt, da es sich an einem Standort befindet, der besondere Aufmerksamkeit erfordert, insbesondere was die Isolierung und die Dachkonstruktion (Schneemenge) betrifft. Es besteht aus 3 Etagen, einem Kellergeschoss von ca. 20 m2, das zum Heizen genutzt werden kann, da das Gebäude neben der normalen Zentralheizung auch über einen Kamin verfügt, der dem neuen Eigentümer je nach Lage im Winter zusätzlich Freude am Aufenthalt in den Bergen bereitet und im Sommer zur Aufbewahrung von Skiern, Schneemobilen, Quads und dergleichen für den vollen Genuss dient. Im ersten Stock befinden sich ein geräumiges Wohnzimmer, eine Küche und ein Esszimmer/eine Bar mit Zugang zur herrlichen Terrasse des Gebäudes. Der Wohnbereich ist mit zahlreichen Öffnungen/Fenstern für maximale Helligkeit und Ausblick auf die restliche Nachbarschaft ausgestattet und verfügt über hochwertige Tischlereiarbeiten mit externen Aluminium-Rollläden. Auf der gleichen Etage befinden sich außerdem eine Eingangshalle, ein Badezimmer und eine Treppe mit Eingangshalle, die in die zweite Etage dieses herrlichen Gebäudes führt. Im zweiten Obergeschoss befindet sich ein Schlafbereich mit 2 Schlafzimmern und einem Badezimmer, sowie eine Sauna, die im angegebenen Preis der Immobilie inklusive ist, sowie sämtliche Möbel von den Fotos. Sie müssen lediglich Ihren Makler anrufen, einen Besichtigungstermin vereinbaren und das Anwesen und diese hervorragende Lage besichtigen. Wir vereinbaren einen Termin mit dem Notar für die Immobilie. Wir verfügen über eine vollständige und unbelastete Dokumentation. Kaufen/Bezahlen, Zahnbürste mitbringen und Ihr neues Seelenparadies auf Jahorina genießen. Das Ferienhaus wird möbliert verkauft. Das Ferienhaus befindet sich in bester Lage in der Siedlung Dvorista, in unmittelbarer Nähe einer neuen Siedlung mit hervorragenden Annehmlichkeiten und einem Restaurant, das 365 Tage im Jahr geöffnet ist. Unter dem unten stehenden Link können Sie unsere virtuelle 360°-Ansicht der Wohnung im Detail betrachten. Für alle Informationen rufen Sie uns an! Zertifizierte Immobilienagentur Stanpromet.ba Immobiliennummer und Datum der Entscheidung über die Erfüllung der Bedingungen für die Ausübung von Maklertätigkeiten vom Bescheinigung über die bestandene Berufsprüfung zur Ausübung der Tätigkeit eines Immobilienmaklers vom Stanpromet-Filiale Ost-Sarajevo Ost-Sarajevo, ul. Vuka Karadzic Nr. 28/1 ID CODE:

Merkmale

  • 510 m² Grundstück

Grundrisse

Grundrisse
1 / 3

Virtueller Rundgang

Video

Realisiere Dein Projekt

Bausubstanz und Energie

Der Anbieter hat keine Informationen zu Energieverbrauch oder Zustand der Immobilie bereit gestellt.
Immowelt logo

Preisdetails

Kaufpreis
260758.86 €
Provision für Käufer
Bitte beachte, das Angebot kann bei Vertragsabschluss die Zahlung einer Provision beinhalten. Weitere Informationen erhältst Du vom Anbieter.

Lage

address-icon
Pale (71423)
Der Anbieter hat die genaue Adresse nicht freigegeben

Weitere Informationen

Stichworte Gesamtfläche: 110,00 m², Anzahl der Schlafzimmer: 2, Anzahl der Badezimmer: 2, Anzahl der Wohn-Schlafzimmer: 1, 2 Etagen, Nebenzentrumslage

Weitere Services

Lust auf eine Besichtigung?
Eine Frage zur Immobilie?
Nachricht hinzufügen
Mit der Nutzung der oben angegebenen Telefonnummer oder durch Klicken auf „Kontaktieren“ akzeptierst Du die Allgemeinen Nutzungsbedingungen, denen Du jederzeit widersprechen kannst. Weitere Informationen zum Datenschutz

Über den Anbieter

LABIN d.o.o.Maklerbüro
Prilaz Kikova 4, 52220 LABIN
partner badge
Partnerschaft
Hadis KadicDein Kontakt
Online-ID: 2my925u
Referenznummer: 4027-503361
LABIN d.o.o.
Nachricht hinzufügen
Mit der Nutzung der oben angegebenen Telefonnummer oder durch Klicken auf „Kontaktieren“ akzeptierst Du die Allgemeinen Nutzungsbedingungen, denen Du jederzeit widersprechen kannst. Weitere Informationen zum Datenschutz
Wie zufrieden bist du mit dieser Seite (nicht mit der Immobilie selbst)?