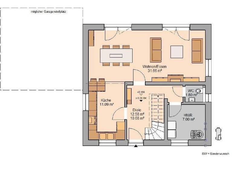
Familienhaus Luco betreten Sie über eine Diele, von der Sie alle Räume des Erdgeschosses erreichen. Von dort führt auch die Treppe ins Dachgeschoss. Die Küche ist offen zum Wohn- und Essbereich gehalten und wirkt durch die Fensterflächen sehr hell. Der offene Wohn- und Essbereich ist der Treffpunkt für die Familie mit einem schönen Blick in den Garten. Komplettiert wird das Erdgeschoss durch ein praktisches Gäste-WC und einen Hauswirtschaftsraum. Das Dachgeschoss umfasst die Rückzugsorte für die einzelnen Mitglieder der Familie. So finden Sie dort zwei rund 13 Quadratmeter große Kinderzimmer und ein großzügiges Elternschlafzimmer. Das Badezimmer ist mit einer Dusche und einer Badewanne ausgestattet.
Dieses Haus wird nach Ihren individuellen Wünschen geplant und ausgestattet!
+ Schlüsselfertiges Massivhaus im Sinne der Ausstattungsbeschreibung "Easy" + Inklusive Bodenplatte
Beste Markenausstattung in jedem Kern-Haus:
+ Zimmermannsmäßiger Dachstuhl aus Konstruktionsvollholz + Dacheindeckung mit Betondachsteinen von Braas + Hochwertiger Kunstharz-Außenputz für eine langlebige Fassade + Vollständige Badausstattung von Villeroy & Boch mit Badewanne und flacher Duschwanne + Fliesen von Villeroy & Boch in Bad und WC + Haustür mit 3-fach-Sicherheitsverriegelung + Erstklassige Innentüren der Marke Herholz + Fenster mit 3-Scheiben-Wärmeschutzverglasung und Rollläden + Stahl-Holz-Treppe mit individueller Farbgestaltungsmöglichkeit + Elektroausstattung inklusive Klingelanlage + Rauchmelder für Ihre Sicherheit + Alle Leistungen aus einer Hand + Alle Planungs- und Architektenleistungen + Einsatz regionaler Handwerksbetriebe + Individuelle Anpassung auf Ihre Bedürfnisse + Auf Wunsch mit Keller erhältlich + Auf Wunsch mit weiteren Energietechniken erhältlich
Grundrisse
Grundrisse
1 / 2
Realisiere Dein Projekt
Bausubstanz und Energie
Energieausweis
Der Anbieter hat keine Daten zum Energieausweis hinterlegt.
Baujahr2026
Zustand der ImmobilieNeubau, Projektiert
HeizungsartZentralheizung: Fußbodenheizung
Preisdetails
Kaufpreis
426900 €426.900 €
3.777,88 €/m²
Provision für Käufer
provisionsfrei
Geschätzte Gesamtkosten
458.919 €1
Kaufpreis
426.900 €
Kaufnebenkosten
32.019 €
2
Notarkosten (1,5%)
6.404 €
Grunderwerbsteuer (5,5%)
23.480 €
Grundbucheintrag (0,5%)
2.135 €
1Der angezeigte Wert ist eine automatisch berechnete Schätzung von immowelt.
2Bei den Angaben handelt es sich um ortsübliche Werte. Individuelle Kosten können abweichen.
Lage
Südvorstadt, Plauen (08527)
Der Anbieter hat die genaue Adresse nicht freigegeben
Das Grundstück befindet sich im Süden von Plauen in einer ruhigen Anliegerstraße. Die direkte Umgebung ist geprägt von Altbestand an Eigenheimen und Wald.
Weitere Informationen
Sonstiges
Kern-Haus
Kern-Haus baut individuelle und massive Architektenhäuser zu einem attraktiven Preis-Leistungs-Verhältnis - und das bereits mit einer Erfahrung seit 1980.
Maximale Sicherheit bei Kern-Haus: + 10 Jahre Gewährleistung auf die wesentlichen Bauleistungen + Bis zu 24 Monate Festpreisbindung + 50 Jahre Gewährleistung auf das DuoTherm-Mauerwerk + Verbindliche Bauzeit + Zahlung nach Baufortschritt
Preise und Auszeichnungen von Kern-Haus: - German Brand Award in den Jahren 2018 und 2021 - Hausbau Design Award: Sieger in den Jahren 2017, 2018, 2019, 2020, 2021, 2022 und 2023 - Deutscher Traumhauspreis: Sieger in den Jahren 2014, 2015, 2016 und 2018 und Silber 2017, 2020 und 2021 - Mittelstandspreis "Top 100" in den Jahren 2014, 2016, 2018, 2020 und 2022 - German Design Award im Jahr 2018 Weitere Informationen
Der gezeigte Preis versteht sich inklusive Grundstück und exklusive der Baunebenkosten.
Das Kern-Haus-Team in Chemnitz freut sich darauf Ihre Fragen zu beantworten. Jetzt anrufen: 03722 / 71850
Kern-Haus in Chemnitz - https://www.kern-haus.de/chemnitz/
Weitere Architektenhäuser - https://www.kern-haus.de/haeuser
Stichworte
Stellplatz vorhanden, Anzahl der Schlafzimmer: 3, Anzahl der separaten WCs: 1