Version: 8.24.0Navigation überspringen
Volksbank pur Immobilien GmbH & Co. KG
299.000 €
9 Zimmer  •  1 m²  •  1.621 m² Grundstück

Einfamilienhaus zum Kauf
299000 €
299.000 €/m²
9 Zimmer  •  1 m²  •  1.621 m² Grundstück

ERBPACHT!!!! Ehemaliges Pfarrhaus, zwei Grundstücke!!! Ein Grundstück unbebaut!

Dieses ehemalige Pfarrhaus in Schellbronn bietet eine einzigartige Gelegenheit, ein geschichtsträchtiges Gebäude mit vielseitigem Nutzungspotenzial zu erwerben. Bei den Flächenangaben handelt es sich um Nutzfläche und nicht um Wohnfläche. Bei einer künftigen Nutzung als Wohnhaus ist eine Nutzungsänderung erforderlich.

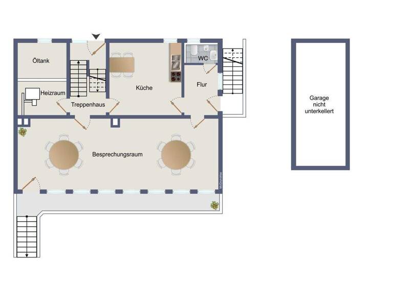
Im Untergeschoss befindet sich ein großzügiger, heller Raum, der sich ideal als Aufenthalts-, Hobby- oder Mehrzweckraum eignet. Ergänzt wird diese Ebene durch eine Küche, ein WC sowie einen separaten Heizungsraum.

Das Erdgeschoss verfügt über vier gut geschnittene Räume, von denen einer Zugang zu einem Balkon bietet. Ein weiteres WC sowie der bisherige Wickelraum sind ebenfalls vorhanden.

Im Obergeschoss stehen erneut vier Räume zur Verfügung, einer davon mit Balkon. Zwei separate WCs bieten hier zusätzlichen Komfort und Flexibilität in der Nutzung.

Zum Anwesen gehört eine Garage, die praktische Abstell- und Parkmöglichkeiten bietet.

Das Gebäude steht auf einem Erbpachtgrundstück, dessen Vertrag neu auf 99 Jahre geschlossen wird. Der jährliche Erbpachtzins beträgt 6.600?€.

Zusätzlich wird das angrenzende Grundstück mit einer Fläche von 861?m² mitverkauft. Auch hierfür wird ein separater Erbpachtvertrag mit eigener Erbpachtvereinbarung abgeschlossen. Der Bebauungsplan liegt bereits vor und eröffnet vielfältige Möglichkeiten für zukünftige Bau- oder Erweiterungsvorhaben.

Dieses Objekt vereint historischen Charme mit großem Entwicklungspotenzial - ideal für Käufer, die ein charaktervolles Haus mit Geschichte suchen und gleichzeitig Raum für individuelle Gestaltungsideen wünschen, sei es als großzügiges Wohnhaus, Mehrgenerationenprojekt oder für alternative Nutzungskonzepte.

Merkmale

  • 1.621 m² Grundstück
  • Garage
  • Balkon
* Erbpacht

* Keine Wohnfläche, sondern Nutzfläche!

* Holzpelletheizung aus 2012

* 2-Fach verglaste Kunststofffenster aus 2012

* Wärmedämmung außen

* Garage

* Erbpacht für bebautes Grundstück: 6.600,00 Euro pro Jahr

* Separates Grundstück, auch Erbpacht

Grundrisse

Grundrisse
1 / 3

Realisiere Dein Projekt

Bausubstanz und Energie

Energieausweis

Endenergiebedarf (Wärme)

Endenergiebedarf (Strom)

  • Baujahr1966
  • Zustand der Immobilieteilsaniert
  • EnergieträgerPellets
MediumRectangleTop

Preisdetails

Kaufpreis
299000 €
299.000 €/m²
Provision für Käufer
3,57 % inkl. MwSt.
Käuferprovision inkl. 19 % MwSt.
Weitere Preisinformationen
1 Garagenstellplatz
Geschätzte Gesamtkosten
330.604 €1
Kaufpreis
299.000 €
Notarkosten (1,5%)
4.485 €
Grunderwerbsteuer (5%)
14.950 €
Provision für Käufer (3,57%)
10.674 €
Grundbucheintrag (0,5%)
1.495 €
1Der angezeigte Wert ist eine automatisch berechnete Schätzung von immowelt.
2Bei den Angaben handelt es sich um ortsübliche Werte. Individuelle Kosten können abweichen.

Lage

address-icon
SchellbronnNeuhausen / Schellbronn (75242)
Der Anbieter hat die genaue Adresse nicht freigegeben
Neuhausen-Schellbronn ist ein idyllisch gelegener Ortsteil der Gemeinde Neuhausen im Enzkreis, Baden-Württemberg. Der charmante Ort liegt eingebettet in die waldreiche Hügellandschaft des Nordschwarzwalds und bietet eine harmonische Verbindung aus naturnahem Wohnen und guter Erreichbarkeit. Durch seine erhöhte Lage genießt man in Schellbronn eine herrliche Aussicht auf die umliegenden Wälder und Täler, was dem Ort einen besonders reizvollen Charakter verleiht.

Schellbronn zeichnet sich durch eine gewachsene Dorfgemeinschaft, gepflegte Wohngebiete und eine ruhige Atmosphäre aus. Zahlreiche Wander- und Radwege führen direkt durch die umliegende Natur und laden zu Erholung und Freizeitaktivitäten im Grünen ein. Trotz der ländlichen Lage ist die Anbindung hervorragend: Über die nahegelegenen Bundesstraßen erreicht man schnell Städte wie Pforzheim, Calw oder Bad Liebenzell.

Im Ort selbst finden sich Einrichtungen des täglichen Bedarfs, ein reges Vereinsleben sowie ein Kindergarten. Schulen, Einkaufsmöglichkeiten und weitere Dienstleistungen sind in den benachbarten Ortsteilen und in Neuhausen gut erreichbar.

Neuhausen-Schellbronn bietet somit die perfekte Kombination aus ruhigem, naturnahem Wohnen und einer guten infrastrukturellen Anbindung - ideal für Familien, Naturliebhaber und alle, die das Leben in einer intakten Dorfgemeinschaft schätzen.

Weitere Informationen

Sonstiges Angaben und Haftungsvorbehalt: Alle Angaben in diesem Exposé wurden mit großer Sorgfalt zusammengestellt und auf ihre Korrektheit überprüft. Eine Haftung für Irrtümer (z. B. bei Flächen- / Maßangaben) wird dennoch ausgeschlossen. Im Exposé enthaltene Illustrationen und Fotos sind teilweise als Vorschläge, Entwürfe und Muster zu verstehen und nicht als wesentliche Elemente im Sinne der Baubeschreibung. Sie repräsentieren den Planungsstand zum Zeitpunkt der Drucklegung. Grundrissillustrationen können z. B. Sonderausstattungen enthalten. Maßgebend für Erwerber ist die Baubeschreibung sowie die Objektbeschreibung in der Teilungserklärung.

Gender-Hinweis: Die in diesem Exposé, auf unserer Webseite sowie in unseren Social Media-Kanälen gewählte männliche Form bezieht sich stets gleichermaßen auf weibliche, männliche und diverse Personen. Auf geschlechterspezifische Schreibweise und Mehrfachbezeichnungen wird ausschließlich zum Zweck der besseren Lesbarkeit verzichtet. Sämtliche personenbezogene Bezeichnungen in all unseren Publikationen sind somit geschlechtsneutral zu verstehen. Stichworte Nutzfläche: 255,17 m², vermietbare Fläche: 255,17 m², Anzahl Balkone: 2, Anzahl der Gewerbeeinheiten: 1

Weitere Services

Lust auf eine Besichtigung?
Eine Frage zur Immobilie?
Nachricht hinzufügen
Mit der Nutzung der oben angegebenen Telefonnummer oder durch Klicken auf „Kontaktieren“ akzeptierst Du die Allgemeinen Nutzungsbedingungen, denen Du jederzeit widersprechen kannst. Weitere Informationen zum Datenschutz

Über den Anbieter

Karl-Friedrich-Straße 22, 76133 Karlsruhe
partner badge
6 Jahre Partnerschaft
Frau Mara Schweizer
Frau Mara SchweizerDein Kontakt
Online-ID: 2n4mq5f
Referenznummer: 107364
Volksbank pur Immobilien GmbH & Co. KG
title
Volksbank pur Immobilien GmbH & Co. KG
Nachricht hinzufügen
Mit der Nutzung der oben angegebenen Telefonnummer oder durch Klicken auf „Kontaktieren“ akzeptierst Du die Allgemeinen Nutzungsbedingungen, denen Du jederzeit widersprechen kannst. Weitere Informationen zum Datenschutz
MediumRectangleTop
MediumRectangleBottom
MediumRectangleTop
Wie zufrieden bist du mit dieser Seite (nicht mit der Immobilie selbst)?