Version: 8.24.0Navigation überspringen
2.950.000 €
2.434,5 m² Lagerfläche
Immowelt logo

Lagerhalle zum Kauf
2950000 €
2.434,5 m² Lagerfläche

Gewerbeanwesen mit vielseitig nutzbaren Produktions-, Hallen- und Büroflächen in attraktiver Lage!

Das gewerbliche Anwesen wurde 1994 auf einem ca. 8.515 m² großen Grundstück erbaut und befindet sich in einem ordentlichen Zustand. Die gewerbliche Liegenschaft wurde zuletzt als Druckereizentrum mit Produktions-, Lager-, Hallen- und Büroflächen samt Nebenflächen genutzt und befindet sich in einem entsprechenden Ausbauzustand.

Alle Gebäudeteile, die einzelnen Geschoss und Bereiche sind innenliegend miteinander verbunden und stehen frei auf dem insgesamt ca. 8.515 m² großen Grundstück. Der Hallenbereich ist über ein Sektionaltor befahrbar.

Die Produktions-, Lager,- und Hallenflächen werden hohen Anforderungen gerecht und sind durch die Flexibilität und die Aufteilungsmöglichkeiten der Flächen hinsichtlich einer Nutzung sehr vielseitig.

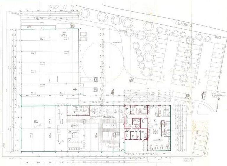
Die Gesamtnutzfläche in Höhe von ca. 3.430,50 m² teilt sich in den Bereich des Bürogebäudes und des Hallentraktes auf. In der aktuellen Flächenkonzeption stellt sich dies wir folgt dar:

Bürogebäude:
Erdgeschoss und Untergeschoss, samt Nebenflächen ca. 996,04 m²

Hallenbereich Gesamtfläche ca. 2.434,46 m²
Halle 1: ca. 1.209,14 m²
Hallo 2: ca. 1.225,46 m²

Eine detaillierte und ausführliche Flächenberechnung und Flächenaufteilung erhalten Sie gerne auf Nachfrage,

Insgesamt sind auf dem ca. 8.515 m² großen Grundstück ca. 45 Kfz- Stellplätze sowie LKW-Stellplätze vorhanden. Die Dachflächen sind vollumfänglich mit einer PV-Anlage bestückt. Nähere Angaben zur PV-Anlage stellen wir Ihnen gerne zur Verfügung.

Weitere Informationen, Details und ausführliche Planungsunterlagen erhalten Sie gerne auf Anfrage. Verschaffen Sie sich einen persönlichen Eindruck und lassen Sie sich von uns ausführlich beraten. Wir stehen Ihnen gerne zur Verfügung.

Merkmale

  • Bezug: ab sofort
  • 8.515 m² Grundstück
  • Bodenbelag: Fliesen, Teppich

Grundrisse

Grundrisse
1 / 2

Realisiere Dein Projekt

Bausubstanz und Energie

Der Anbieter hat keine Informationen zum Energieverbrauch bereit gestellt.
  • Baujahr1994
  • EnergieträgerGas
Immowelt logo

Preisdetails

Kaufpreis
2950000 €
Provision für Käufer
Käuferprovision 4,76 % (inkl. 19 % MwSt.) des notariell beurkundeten Kaufpreises. inkl. MwSt.
Geschätzte Gesamtkosten
3.090.420 €1
Kaufpreis
2.950.000 €
Provision für Käufer (4,76%)
140.420 €
1Der angezeigte Wert ist eine automatisch berechnete Schätzung von immowelt.
2Bei den Angaben handelt es sich um ortsübliche Werte. Individuelle Kosten können abweichen.

Lage

address-icon
Eppingen (75031)
Der Anbieter hat die genaue Adresse nicht freigegeben
Die gewerbliche Liegenschaft befindet sich in einem gewachsenen Gewerbegebiet von Eppingen.

Die verkehrsgünstige Lage macht das Areal sowohl regional für den Landkreis Heilbronn, als auch überregional durch die gute und nur wenige hundert Meter entfernte Anbindung an die B293 interessant.

Weitere Informationen

Sonstiges Der Verbraucher hat gemäß § 535 BGB ein Widerrufsrecht bei einem Fernabsatzvertrag ( § 312 c BGB neue Fassung) oder bei einem Vertragsabschluss außerhalb der Geschäftsräume des Makler ( § 312 b BGB neue Fassung).

Liebe Interessentin, lieber Interessent, Sie haben das Recht, binnen 14 Tagen ohne Angabe von Gründen den Maklervertrag zu widerrufen. Die Widerrufsfrist beträgt 14 Tage ab dem Tag des Vertragsabschlusses. Um Ihr Widerrufsrecht auszuüben, müssen Sie uns (Carl Gewerbeimmobilien, Wilhelmstraße 5a, 74072 Heilbronn, Telefon 07131 / 2076693 und mobil 0160 / 3508946, Email: mail@carl-gewerbeimmobilien.de) mittels einer eindeutigen Erklärung (z.B. ein mit Post versandter Brief oder einer Email) über Ihren Entschluss, diesen Vertrag zu widerrufen, informieren. Zur Wahrung der Widerrufsfrist reicht es aus, dass Sie die Mitteilung über die Ausübung des Widerrufsrechts vor Ablauf der Widerrufsfrist absenden. Sofern wir für Sie vor Ablauf der Widerrufsfrist tätig werden sollen, benötigen wir von Ihnen eine schriftliche Bestätigung, dass Sie von dem gesetzlichen Widerrufsrecht Kenntnis erlangt haben und dass wir für Sie schon vor Ablauf der Widerrufsfrist tätig werden sollen.

Haftungsausschluss:

Sämtliche in diesem Exposé enthaltenen Angaben und Informationen basieren auf den uns von Dritten erteilten Auskünften und Informationen. Dargestellte Bilder und Grundrisse sind ggf. bearbeitet und / oder nachgestellt. Wir bemühen uns, möglichst vollständige und richtige Angaben zu erhalten und weiterzuleiten, eine Haftung für die Richtigkeit, Vollständigkeit und Aktualität dieser Angaben wird jedoch ausdrücklich ausgeschlossen. Eine rechtliche Gewährleistung wird nicht übernommen. Dieses Exposé stellt kein vertragliches Angebot dar. Zwischenverkauf und / oder Zwischenvermietung, Änderungen und Irrtümer bleiben vorbehalten.


Nachweis- und Vermittlungsprovision:

Unser Honorar beträgt im Falle eines erfolgreichen Nachweises bzw. Vermittlung 4,76 % (inkl. 19 % MwSt.) des notariell beurkundeten Kaufpreises und wird dem Käufer nach Beurkundung des Kaufvertrages in Rechnung gestellt. Die vorstehend genannte Käuferprovision ist bei Abschluss des Kaufvertrages verdient und zur Zahlung fällig. Ferner darf Carl Gewerbeimmobilien auch für den Verkäufer provisionspflichtig tätig sein.

Bei Geschäften mit Verbrauchern müssen gemäß Maklergesetz §656c BGB Innen- und Außenprovision übereinstimmen bzw. gemäß §656d BGB darf die Außenprovision nicht höher als die Innenprovision sein. Stichworte Stellplatz vorhanden, Lagerfläche: 2.434,46 m², Nutzfläche: 3.430,50 m², Gesamtfläche: 3.430,50 m², Bürofläche: 996,04 m²

Weitere Services

Lust auf eine Besichtigung?
Eine Frage zur Immobilie?
Nachricht hinzufügen
Mit der Nutzung der oben angegebenen Telefonnummer oder durch Klicken auf „Kontaktieren“ akzeptierst Du die Allgemeinen Nutzungsbedingungen, denen Du jederzeit widersprechen kannst. Weitere Informationen zum Datenschutz

Über den Anbieter

Wilhelmstraße 5a, 74072 Heilbronn
partner badge
Partnerschaft
Herr Daniel Carl
Herr Daniel CarlDein Kontakt
Online-ID: 2nevw5l
Referenznummer: NA975
Carl Gewerbeimmobilien
title
Carl Gewerbeimmobilien
Nachricht hinzufügen
Mit der Nutzung der oben angegebenen Telefonnummer oder durch Klicken auf „Kontaktieren“ akzeptierst Du die Allgemeinen Nutzungsbedingungen, denen Du jederzeit widersprechen kannst. Weitere Informationen zum Datenschutz
Wie zufrieden bist du mit dieser Seite (nicht mit der Immobilie selbst)?