antaris Immobilien GmbH ** Individuelle Flächen im "Büropark Waltersleben" **
Der Büropark besteht aus einem Gebäudekomplex mit 12 Häusern. Zur Vermietung stehen verschiedene Büro- und Lagerflächen ab ca. 25,00 m² bis 1.200,00 m². Die Häuser können komplett, etagenweise oder auch in einzelnen Teilbereichen angemietet werden. Die gepflegten Flächen sind derzeit überwiegend mit strapazierfähigen Teppichböden und teilweise Beleuchtungs-elementen ausgestattet. Stellplätze können auf dem Parkdeck und in der darunter liegenden Tief-garage angemietet werden.
Energieausweis vorhanden: ja Primärenergieverbrauch des Gebäudes: 127,30 kWh(m²-a) Endenergieverbrauch Wärme: 82,60 kWh(m²-a) Endenergieverbrauch Strom: 20,20 kWh(m²-a) Energieträger: Erdgas schwer Ausstelldatum: 13.10.2022 Art des Energieausweises: Verbrauch Baujahr technische Anlage: 1994
Merkmale
Der angegebene Preis ist der Mindest-Mietpreis. Abhängig vom Ausstattungsgrad und der Größe, sowie Laufzeit bekommt jeder Interessent ein individuelles Mietangebot. Der angegebene Preis ist der Mindest-Mietpreis. Abhängig vom Ausstattungsgrad und der Größe, sowie Laufzeit bekommt jeder Interessent ein individuelles Mietangebot.
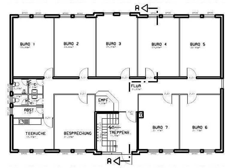
Grundrisse
Grundrisse
1 / 3
Realisiere Dein Projekt
Bausubstanz und Energie
Energieausweis
Endenergieverbrauch (Wärme)
Endenergieverbrauch (Strom)
Baujahr1994
Zustand der ImmobilieGepflegt
Mietkosten
Monatliche Miete
5 €/m²
Provision für Mieter
provisionsfrei; mieterprovisionsfrei
Kaution
keine Angabe
Lage
Waltersleben, Erfurt-Waltersleben (99097)
Der Anbieter hat die genaue Adresse nicht freigegeben
Waltersleben ist ein Ortsteil von Erfurt. Unmittelbar an Waltersleben führen die BAB 4 sowie die A 4 und A 71 vorbei. Der Büropark Waltersleben bietet durch den unmittelbaren Autobahnanschluss eine gute Verbindung nach Erfurt, Arnstadt, Weimar, Gotha, Eisenach, Jena und Leipzig. Mit den öffentlichen Verkehrsmitteln erreicht man die Innenstadt in weniger als 20 Minuten, ebenso den Flughafen Erfurt-Weimar.
Weitere Informationen
Sonstiges
Widerrufsrecht Sie können Ihre Vertragserklärung innerhalb von 14 Tagen ohne Angaben von Gründen in Textform (z.B. Brief, E-Mail) widerrufen. Die Frist beginnt nach Erhalt dieser Belehrung in Textform, jedoch nicht vor Vertragsabschluss und auch nicht vor Erfüllung unserer Informationspflichten gem. Art. 246 § 2 i.V.m. § 1 Abs. 1 und 2 EGBGB. Zur Wahrung der Widerrufsfrist genügt die rechtzeitige Absendung des Widerrufs. Im Falle eines wirksamen Widerrufs sind die beiderseits empfangener Leistungen zurück zu gewähren und ggf. bezogene Nutzungen (z.B. Zinsen) herauszugeben. Können Sie uns die empfangenen Leistungen sowie Nutzungen (z.B. Gebrauchsvorteile) nicht oder teilweise nicht oder nur in verschlechtertem Zustand zurückgewähren bzw. herausgeben, müssen Sie uns insoweit Wertersatz leisten. Dies kann dazu führen, dass Sie die vertraglichen Zahlungsverpflichtungen für den Zeitraum bis zum Widerruf gleichwohl erfüllen müssen. Verpflichtungen zur Erstattung von Zahlungen müssen innerhalb von 30 Tagen erfüllt werden. Die Frist beginnt für Sie mit der Absendung Ihrer Widerrufserklärung, für uns mit deren Empfang. Das Widerrufsrecht erlischt vorzeitig, wenn der Vertrag von beiden Seiten auf Ihren ausdrücklichen Wunsch vollständig erfüllt ist, bevor Sie Ihr Widerrufsrecht ausgeübt haben.
Weitere Angebote finden Sie unter www.antaris-immobilien.de!