Version: 8.26.0Navigation überspringen
5.088 €
10 Zimmer  •  598,4 m² Bürofläche
Immowelt logo

Bürofläche zur Miete
5.088 €
10 Zimmer  •  598,4 m² Bürofläche

Repräsentative, 2022 renovierte, helle Maisonette-Gewerbefläche mit 2 Dachterrassen, Lift, SP mgl.

Große und helle, sehr repräsentative Gewerbefläche im Gewerbegebiet von Wiedemar.

Ideal für:
- Büro/Großraumbüro
- Callcenter
- Lager/ Produktion
- Archivfläche
- Online-/ Groß-/ Versandhandel
- Labor
- Ausstellung
- Atelier

Eine Grundriss- als auch Ausstattungsänderung ist hier möglich und kann mit dem Vermieter abgestimmt werden. Anfallende Mehrkosten oder Mietaufschlag sind dadurch möglich und abhängig von der Mietlaufzeit und den Kosten.

Neben der Fläche gibt es optional eine weitere Fläche von ca. 142, 69 m² (2. OG li) zum anmieten. Diese befindet sich derzeit noch im Rohbau und kann beim Ausbau noch an besondere Wünsche angepasst werden.

Merkmale

  • Bezug: nach Vereinbarung
  • 2. Geschoss
  • Personenaufzug
  • Einbauküche
  • Bodenbelag: Kunststoff, Teppich
  • voll klimatisiert
  • Raumaufteilung flexibel
- 1993 erbaut
- 2022 komplett renoviert
- Gaszentralheizung
- Lift bis TG
- schräge Rampe am Hauseingang vorhanden
- Deckenhöhe ca. 3 m
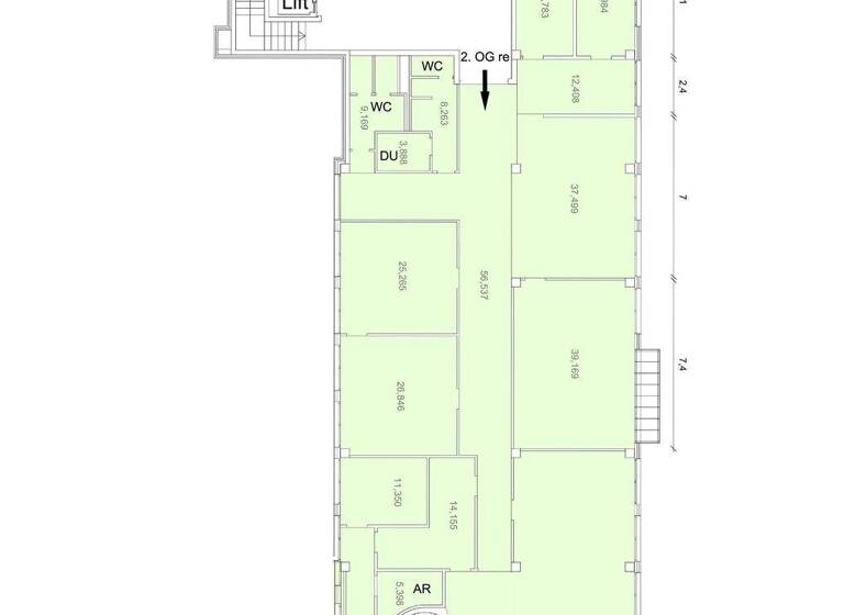
- ca. 598,39 m²
- 10 Zimmer
- Server- und Archivraum
- inkl. Einbauküche mit Deckenspots
- 3 WCs + 1 Urinal + 1 Dusche
- hochwertiger Teppichboden
- Bodentanks vorhanden
- voll klimatisierte Räume
- LED-Deckenlampen vorhanden
- elektrische Außenjalousien vorhanden
- Innenlamellen an Fenstern vorhanden
- Zwischenwände zum Teil aus Glas mit Innenjalousien
- Abstellraum
- Wendeltreppe ins 3. OG (Küche + Konferenzraum)
- Vinylboden in der Küche
- 2 Dachterrassen
- ca. 130 m² Konferenzraum, der aber auch mit einer Schallfaltwand trennbar ist
- Tiefgaragenstellplätze für à 40,00 €/mtl. mögl.
- Außenstellplätze für à 25,00 €/mtl. mögl.

Grundrisse

Grundrisse
1 / 2

Bausubstanz und Energie

Möchtest du Details zum Energieverbrauch?info_energy_calculation-icon
  • Baujahr1993
  • Zustand der Immobilierenoviert / saniert
  • HeizungsartZentralheizung
  • EnergieträgerGas
Immowelt logo

Mietkosten

Warmmiete
6.584 €
Nettomiete
5.088 €
Nebenkosten
1.496 €
Provision für Mieter
provisionsfrei
Kaution
keine Angabe

Lage

address-icon
Wiedemar (04509)
Der Anbieter hat die genaue Adresse nicht freigegeben
Die Immobilie liegt in einem Gewerbepark in Wiedemar.

Die Gemeinde Wiedemar liegt im westlichsten Zipfel des Landkreises an der Grenze zu Sachsen-Anhalt.

Halle (Saale) liegt ca. 17 km westlich und Delitzsch 13 km nordöstlich des namensgebenden Ortsteils Wiedemar.

Die Auffahrt auf die A9 liegt ca. 800 m entfernt.
Leipzig ist in ca. 25 Autominuten zu erreichen.
Das Schkeuditzer Kreuz (A14) und Rippachtal (A38) sind nächstgelegene Autobahnkreuze und nur wenige Kilometer entfernt.

Weitere Informationen

Sonstiges Die von uns gemachten Angaben haben wir nach bestem Wissen und Gewissen nach
Informationen des Vermieters/Verkäufers und den uns übergebenen Informationen
zusammengestellt. Eine Gewähr für diese Angaben können wir nicht übernehmen.
Wichtige Zahlen und Informationen sind am Objekt zu überprüfen.
Zwischenvermietung/Verkauf bleibt vorbehalten. Stichworte Tiefgarage vorhanden, Stellplatz vorhanden, Anzahl der separaten WCs: 3, Lage im Gewerbegebiet Sonstiges: EDV-Verkabelung

Weitere Services

Lust auf eine Besichtigung?
Eine Frage zur Immobilie?
Mit einer persönlichen Nachricht hast du bessere Chancen auf eine Antwort.
Mit der Nutzung der oben angegebenen Telefonnummer oder durch Klicken auf „Kontaktieren“ akzeptierst Du die Allgemeinen Nutzungsbedingungen, denen Du jederzeit widersprechen kannst. Weitere Informationen zum Datenschutz

Über den Anbieter

Hillerstraße 3, 04109 Leipzig
partner badge
Partnerschaft
Herr Ron KaufmannDein Kontakt
Online-ID: 25UA8118LHUA
Referenznummer: 302g101#yWqe1d
Wie zufrieden bist du mit dieser Seite (nicht mit der Immobilie selbst)?