
Rimmo Immobilien
Herr Rupert Stampfer
003 ···
Nr. anzeigenPreise & Kosten
Provision für Käufer
3% + MwSt.
Das Haus
Baujahr
1980
Derzeitige Nutzung
frei
Energie & Heizung
Warum sehe ich diese Anzeige? – Du siehst diese Anzeige basierend auf Ihrer Navigation auf unserer Website und den Suchkriterien, die du verwendet hast.
Weitere Energiedaten
Heizungsart
Etagenheizung
Details
Weitere Informationen
Sanierte Villa
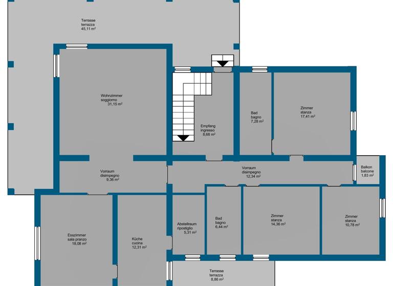
Diese atemberaubende Villa, deren Wurzeln bis ins Jahr 1980 zurückreichen und 2019 einer umfassenden Sanierung unterzogen wurde, erstrahlt in neuem Glanz und bietet einen großzügigen Wohnraum auf zwei eindrucksvollen Etagen.
Das Erdgeschoss des Hauses ist ausgestattet mit einem praktischen Keller und...
Anbieter der Immobilie
Rimmo Immobilien
Innsbrucker Straße 29, 39100 BOZEN
Online-ID: 2hcyy55
Referenznummer: R06045CAVI
Finde Angebote wie dieses
Hier geht es zu unserem Impressum, den Allgemeinen Geschäftsbedingungen, den Hinweisen zum Datenschutz und nutzungsbasierter Online-Werbung.