Großzügige Hallenfläche für Logistik und Lager mit hoher Durchfahrt und 24/7-Zugang
Das Quartier231 ist ein Standort mit Geschichte, geprägt vom Innovationsgeist des Industriezeitalters sowie der Aufbruchstimmung in den Jahren des Wirtschaftswunders, versprüht das Areal bis heute einen ganz besonderen Charme und hat bereits viele Unternehmen aus den unterschiedlichsten Branchen überzeugt, hier ansässig zu werden. Die bequemen Services und das engagierte Team vor Ort tun ihr Übriges dazu, ebenso wie die günstige Lage in Oberhausen. Von Restaurants und Imbissen bis zu Einkaufsmöglichkeiten, vom Fitnessstudio bis zur Arztpraxis bietet die nächste Umgebung viele Möglichkeiten, den Alltag effizient zu gestalten.
Merkmale
frei ab 01.03.2026
Außen-Stellplatz
Barrierefrei, Rollstuhlgerecht
Rolltor
Beleuchtung: Deckenbeleuchtung
Wachdienst
voll erschlossen
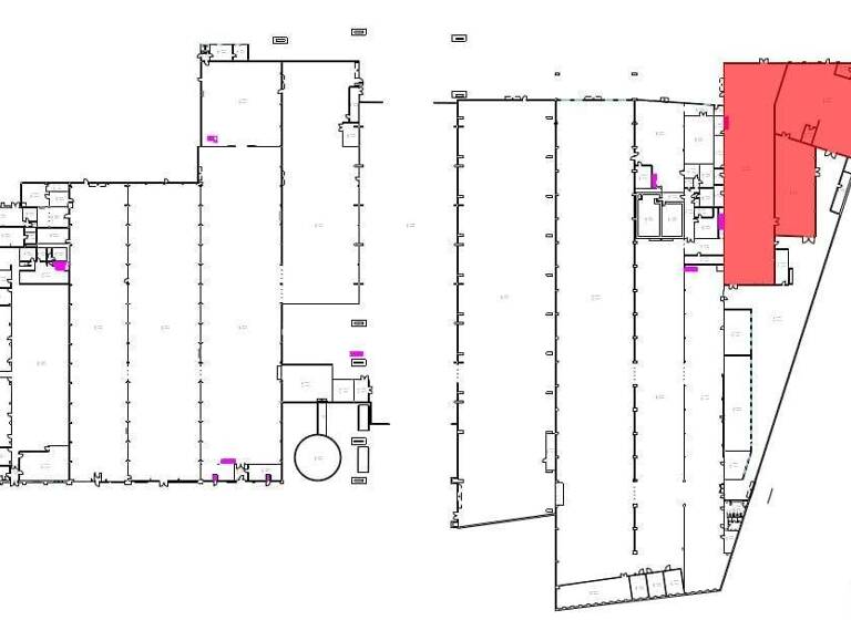
. Gesamtfläche 1.683,19 m² (HNF 1.683,19 m²) . Hallen- und Industriefläche im Erdgeschoss . Traufhöhe 11,2 m, Firsthöhe 11,5 m . Ebenerdige Befahrbarkeit, Durchfahrt 5,40 m hoch und 3,60 m breit . Rolltor und Oberlichter vorhanden . 24/7-Zugang, Pförtner sowie Sicherheitsdienst . Stellplätze optional anmietbar . Mietpreis auf Anfrage, verfügbar ab 01.03.2026 bzw. nach Absprache
Rufen Sie am besten gleich an unter 0800 40 40 880 35 - unser Team steht sofort zur Verfügung! Wir freuen uns sehr, Sie persönlich zu beraten. Eine schnelle Besichtigung richten wir ebenfalls sehr gern für Sie ein. Entdecken Sie auch zahlreiche weitere Alternativen, die wir Ihnen gerne unverbindlich vorstellen können.
Grundrisse
Grundrisse
1 / 1
Realisiere Dein Projekt
Bausubstanz und Energie
Der Anbieter hat keine Informationen zum Energieverbrauch bereit gestellt.
Baujahr1992
Mietkosten
Miete auf Anfrage
Provision für Mieter
Die Vermietung erfolgt provisionsfrei!
Kaution
3 Bruttowarmmieten
Lage
Duisburger Str. 375, Marienkirche, Oberhausen (46049)
Das Quartier231 zeichnet sich durch seine hervorragende Lage aus. Der Bahnhof Oberhausen West ist nur wenige Minuten entfernt, und direkt vor dem Gewerbegebiet befinden sich zwei Bushaltestellen mit verschiedenen Linien, die eine gute Anbindung gewährleisten. Auch für Autofahrer ist die Erreichbarkeit ideal: Die Autobahnen A3, A40 und A42 führen schnell zu uns. Für bequemes Parken sorgen zahlreiche Stellplätze auf dem Gelände, die Mitarbeitern und Besuchern zur Verfügung stehen.
* Bequeme Anfahrt *
Bahnhof Oberhausen: 2,2 km Anschluss an die A 3: 10 km Flughafen Düsseldorf: 30 km
Weitere Informationen
Sonstiges
*Das Angebot gilt für Neukundenverträge, die innerhalb von 72 Stunden nach Besichtigung unterzeichnet werden. Der Sonderpreis bezieht sich auf die Nettokaltmiete und wird ab einer Laufzeit von 12 Monaten in den ersten 2 Monaten gewährt. Das Angebot gilt im Zeitraum 08.09.25-31.03.26 auf ausgewählte Flächen und ist abhängig von Verfügbarkeit, nicht kombinierbar mit anderen Aktionen und Rabatten.
Änderungen vorbehalten. Sämtliche in dieser Anzeige genannten Preise verstehen sich als freibleibendes Angebot. Für den Inhalt des Mietverhältnisses ist allein der geschlossene Mietvertrag nebst Anlagen verbindlich. Die Abbildungen bzw. die Fotos der Mietflächen dienen lediglich der optischen Orientierung. Die Abbildungen der Mietflächen begründen keinen Anspruch auf ihren Erhalt und bedeuten nicht, dass diese, wie abgebildet, auch zur Verfügung stehen. Für genauere Informationen zu den Mietflächen ist die Produktbeschreibung maßgeblich.
Den Energieverbrauchsausweis finden Sie in der Anlage oder unter diesem Link http://www.siriusfacilities.com/de/energieausweise/uebersicht
Fahrzeit zur Auto...
3,00
Fahrzeit zum Flug...
20,00
Fahrzeit zum Bahnhof
5,00