Version: 8.24.0Navigation überspringen
1.600 €
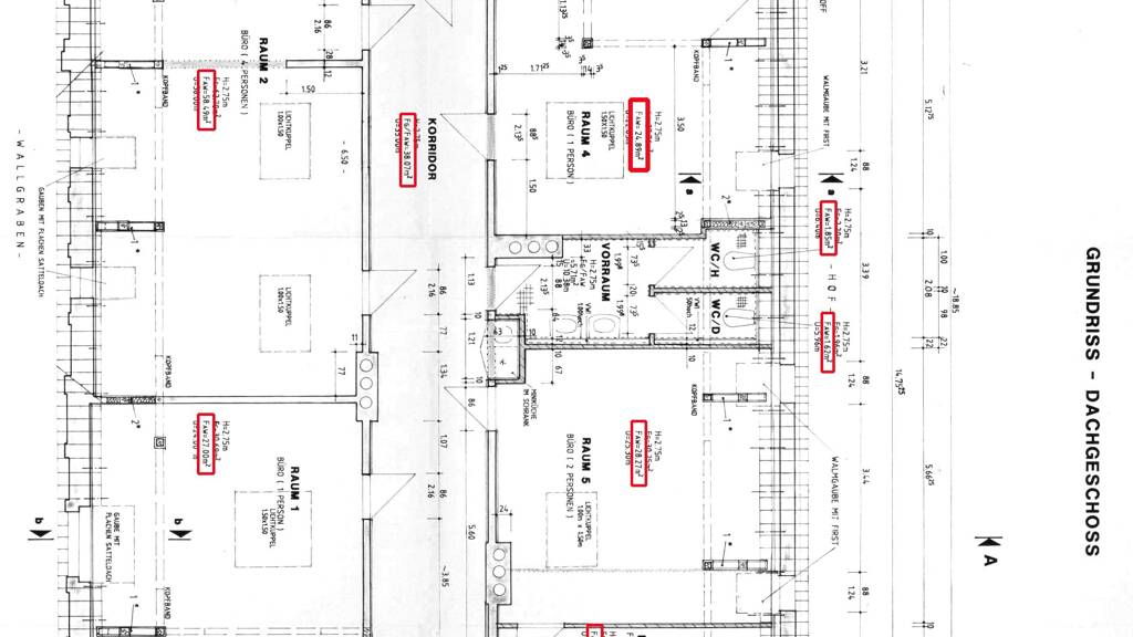
5 Zimmer  •  208,8 m² Bürofläche
Immowelt logo

Bürofläche zur Miete • provisionsfrei
1.600 €
5 Zimmer  •  208,8 m² Bürofläche

Repräsentative, sanierte Büro-/Praxisfläche in einer freistehenden Villa, SP mögl.

Bei der hier angebotenen Immobilie handelt es sich um eine Büro-/Praxisfläche im DG einer freistehenden, sehr repräsentativen Villa.

Auf dem Grundstück kann 1 Pkw-SP für monatlich 75,00 € angemietet werden.

Ideal für:
- Steuerberater
- Rechtsanwalt
- Maklerbüro
- Architekten
- Start-Up
- IT-Firma
- Co-Working-Space

Merkmale

  • Bezug: sofort
  • 3. Geschoss
  • Außen-Stellplatz
  • voll klimatisiert
  • Bodenbelag: Fliesen, Teppich
- Bj: 1895
- 2000 Sanierung außen
- 2022 Kernsanierung
- freistehende Villa
- 5 Zimmer
- 2024 renoviert
- ca. 208,82 m²
- ca. 2,76 m Raumhöhe
- größtes Zimmer mit ca. 58,49 m²
- Teeküchenanschluss
- Abstellraum
- Oberlichter (auch zum öffnen)
- Doppelfenster 2000 eingebaut
- schöne Weitsicht
- 2 Klimageräte im Flur
- 2 WCs
- Gaszentralheizung
- Kellerabteil
- 1 Pkw-Stellplatz à 75,00 € möglich
- Müllplatz

Realisiere Dein Projekt

Bausubstanz und Energie

Der Anbieter hat keine Informationen zum Energieverbrauch bereit gestellt.
  • Baujahr1895
  • Zustand der Immobilierenoviert / saniert
  • HeizungsartZentralheizung
  • EnergieträgerGas
Immowelt logo

Mietkosten

Warmmiete
2.118 €
Nettomiete
1.600 €
Nebenkosten
518 €
Zusätzliche Kosten
Miete pro Stellplatz
75 €
Provision für Mieter
provisionsfrei
Kaution
keine Angabe
Weitere Preisinformationen
1 Stellplatz, Miete: 75,00 EUR

Lage

address-icon
Grimma (04668)
Der Anbieter hat die genaue Adresse nicht freigegeben
Die angebotene Immobilie befindet sich in Grimma.

Grimma ist eine große Kreisstadt im Landkreis Leipzig. Die Stadt im Tal der Mulde ist die nach Fläche viertgrößte Stadt Sachsens. Die historische Altstadt umfasst auch die meisten Sehenswürdigkeiten der Gemeinde, darüber hinaus gibt in den insgesamt 64 Ortsteilen oft alte Sakralbauten.

Grimma ist nicht nur bezaubernd schön, sondern auch ein Bilderbuch der Architekturgeschichte. 800 Jahre Bautätigkeit hinterließen vielfältige Spuren, die Stadtspaziergänge zu faszinierenden Reisen in die Vergangenheit werden lassen. Von den Resten mittelalterlicher Wohntürme über prächtige Renaissancebürgerhäuser bis zu romantischen Fabrikantenvillen des 19. Jahrhunderts reicht die lange Kette architektonischer Perlen. Nicht ohne Grund wurde Grimmas Altstadt in jüngerer Zeit zur schönsten in ganz Mitteldeutschland gekürt. Das Aushängeschild der Stadt an der Mulde bildet der große Markt. In seiner Mitte erhebt sich eines der besterhaltenen historischen Rathäuser Sachsens.

Die Stadt punktet mit ihrer zentralen Lage und infrastrukturellen Vorzügen - sie hat zwei Bahnhöfe und Anbindungen an zwei Autobahnen sowie eine Bundesstraße. Grimma ist Mobilitäts-Pilotkommune: mehr Haltestellen, mehr Busse, mehr Service.

Grimma liegt im Nordsächsischen Platten- und Hügelland 25 km südöstlich von Leipzig und ca.16 km südlich von Wurzen. Mit einer Gesamtfläche von ca. 217 km² und bedingt durch zahlreiche Eingemeindungen und etwa 30.000 Einwohnern, ist Grimma die flächengrößte und einwohnerreichste Stadt bzw. Gemeinde des Landkreises Leipzig und flächenmäßig viertgrößte Stadt in Sachsen.

Als überregionaler Bildungsstandort bietet die Stadt mit ihren zahlreichen Schulen viele Möglichkeiten zur qualifizierten Aus- und Weiterbildung.

Die angebotene Immobilie in unmittelbarer Nähe zur Mulde.

Weitere Informationen

Sonstiges Die von uns gemachten Angaben haben wir nach bestem Wissen und Gewissen nach Informationen des Vermieters/Verkäufers und den uns übergebenen Informationen zusammengestellt. Eine Gewähr für diese Angaben können wir nicht übernehmen. Wichtige Zahlen und Informationen sind am Objekt zu überprüfen.
Zwischenvermietung/Verkauf bleibt vorbehalten. Stichworte Stellplatz vorhanden, Gesamtfläche: 208,82 m², Anzahl der separaten WCs: 2, 3 Etagen

Weitere Services

Lust auf eine Besichtigung?
Eine Frage zur Immobilie?
Nachricht hinzufügen
Mit der Nutzung der oben angegebenen Telefonnummer oder durch Klicken auf „Kontaktieren“ akzeptierst Du die Allgemeinen Nutzungsbedingungen, denen Du jederzeit widersprechen kannst. Weitere Informationen zum Datenschutz

Über den Anbieter

Hillerstraße 3, 04109 Leipzig
partner badge
6 Jahre Partnerschaft
Herr Ron Kaufmann
Herr Ron KaufmannDein Kontakt
Online-ID: 2ewef56
Referenznummer: 302g45#yWqe1d
IC IMMOCONSULT e.K.
title
IC IMMOCONSULT e.K.
Bewertung: 4,8 von 5 Sternen
Nachricht hinzufügen
Mit der Nutzung der oben angegebenen Telefonnummer oder durch Klicken auf „Kontaktieren“ akzeptierst Du die Allgemeinen Nutzungsbedingungen, denen Du jederzeit widersprechen kannst. Weitere Informationen zum Datenschutz
Wie zufrieden bist du mit dieser Seite (nicht mit der Immobilie selbst)?