
LUDWIG imMOBILien
Herr Jens Ludwig
+49 ···
Nr. anzeigenPreise & Kosten
Provision für Mieter
3,57 Nettomonatsmieten inkl. MwSt.
Warum sehe ich diese Anzeige? – Du siehst diese Anzeige basierend auf Ihrer Navigation auf unserer Website und den Suchkriterien, die du verwendet hast.
Die Industriefläche
Bezug
Bezug nach Vereinbarung möglich
Energie & Heizung
Warum sehe ich diese Anzeige? – Du siehst diese Anzeige basierend auf Ihrer Navigation auf unserer Website und den Suchkriterien, die du verwendet hast.
Wärme
Strom
Energieausweistyp
Verbrauchsausweis
Gebäudetyp
Nicht-Wohngebäude
Baujahr laut Energieausweis
1985
Endenergieverbrauch (Wärme)
31,10 kWh/(m²·a)
Endenergieverbrauch (Strom)
29,70 kWh/(m²·a)
Weitere Energiedaten
Energieträger
Gas
Details
Objektbeschreibung
Objektbeschreibung
Dieses neu zu vermietende Gewerbeobjekt befindet sich in einem gut angebundenen Gewerbegebiet (Leipheim-Ost) in Leipheim. Die Anschlussstelle zur A8 Richtung München/Ulm ist ca. 2,5 km entfernt und wird üblicherweise in ca. 5 Minuten Fahrzeit erreicht. Die A7 ist ca. 10 km entfernt und in ca. 10 Minuten...
Ausstattung
Die Flächen können entsprechend der neuen Nutzung angepasst werden.
Derzeitige Ausstattung:
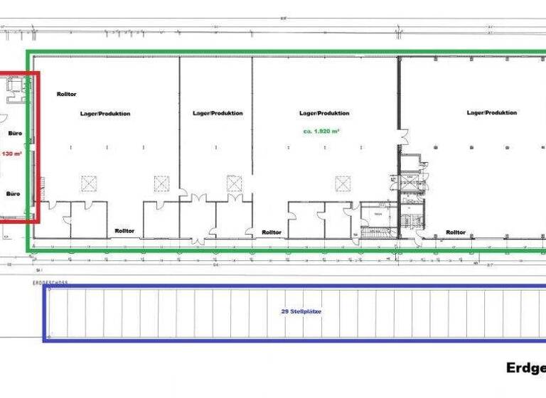
Erdgeschoss (Lager/Produktion)
+ Beleuchtung (teilweise LED)
+ Warmluftgebläse/Heizkörper (Gasheizung)
+ Emporen als zusätzliche Lagerfläche
+ separat abgetrennte Räume für Labore, Büro´s, Besprechung...
Preisinformation
Erdgeschoss Lager/Produktion ab EUR 3,70/m² je nach Ausstattung und Laufzeit
Erdgeschoss Büro ca. 130 m² ab EUR 5,00/m² je nach Ausstattung und Laufzeit
Obergeschoss Büro/Lager/Produktion ab EUR 3,70/m² je nach Ausstattung und Laufzeit
29 Stellplätze im Freien á EUR 20,00/Stpl. und Monat
Mietpreise jeweils...
Weitere Informationen
Miete
Erdgeschoss Lager/Produktion ab EUR 3,70/m² je nach Ausstattung und Laufzeit
Erdgeschoss Büro ca. 130 m² ab EUR 5,00/m² je nach Ausstattung und Laufzeit
Obergeschoss Büro/Lager/Produktion ab EUR 3,70/m² je nach Ausstattung und Laufzeit
29 Stellplätze im Freien á EUR 20,00/Stpl. und Monat
Mietpreise...
Anbieter der Immobilie

LUDWIG imMOBILien
Rüsternweg 7, 70597 Stuttgart
Online-ID: 2m3ry5q
Referenznummer: P861
Finde Angebote wie dieses
Hier geht es zu unserem Impressum, den Allgemeinen Geschäftsbedingungen, den Hinweisen zum Datenschutz und nutzungsbasierter Online-Werbung.