Version: 8.25.1Navigation überspringen
IMMOBERLIN Inhaber Carsten D. Topel
1.600.000 €
4.367 m² Grundstück

Haus zum Kauf
1600000 €
4.367 m² Grundstück

IMMOBERLIN.DE - Eindrucksvolles ca. 4.367 m2 großes Wassergrundstück mit Häusern & Lauben in Werder (Schwielowsee)

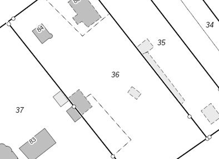
Auf diesem großartigen Wassergrundstück (Flur 26) befinden sich 3 Häuser und 4 Lauben sowie zahlreiche Bäume und Pflanzen für ein stimmungsvolles Ambiente. Für die Eigennutzung und/oder touristische Zwecke ist diese idyllische Liegenschaft eine ausgesprochen attraktive Immobilie in einer fantastischen Landschaft.

Merkmale

  • 4.367 m² Grundstück
  • Seeblick

Grundrisse

Grundrisse
1 / 1

Realisiere Dein Projekt

Bausubstanz und Energie

Energieausweis

Ein Energieausweis ist für diesen Gebäudetyp nicht notwendig.
MediumRectangleTop

Preisdetails

Kaufpreis
1600000 €
Provision für Käufer
7,14 % inklusive der gesetzlichen Mehrwertsteuer
Geschätzte Gesamtkosten
1.793.120 €1
Kaufpreis
1.600.000 €
Notarkosten (1,5%)
24.000 €
Grunderwerbsteuer (6,5%)
104.000 €
Provision für Käufer (3,57%)
57.120 €
Grundbucheintrag (0,5%)
8.000 €
1Der angezeigte Wert ist eine automatisch berechnete Schätzung von immowelt.
2Bei den Angaben handelt es sich um ortsübliche Werte. Individuelle Kosten können abweichen.

Lage

address-icon
PetzowWerder (Havel) (14542)
Der Anbieter hat die genaue Adresse nicht freigegeben

Weitere Informationen

Sonstiges Falls Sie IMMOBERLINER*IN werden wollen, bewerben Sie sich bitte jetzt:
https://www.immoberlin.de/immoberliner-werden/

Zahlreiche weitere Immobilienangebote finden Sie bei uns:
https://www.immoberlin.de/home

Folgen Sie uns auch auf Instagram:
https://www.instagram.com/immoberlin.de/

Weitere Services

Lust auf eine Besichtigung?
Eine Frage zur Immobilie?
Nachricht hinzufügen
Mit der Nutzung der oben angegebenen Telefonnummer oder durch Klicken auf „Kontaktieren“ akzeptierst Du die Allgemeinen Nutzungsbedingungen, denen Du jederzeit widersprechen kannst. Weitere Informationen zum Datenschutz

Über den Anbieter

Wildpfad 7, 14193 Berlin
partner badge
6 Jahre Partnerschaft
Das Team von IMMOBERLIN.DE
Das Team von IMMOBERLIN.DEDein Kontakt
Online-ID: 265ADZTDJN2R
Referenznummer: 251072 iF
IMMOBERLIN Inhaber Carsten D. Topel
title
IMMOBERLIN Inhaber Carsten D. Topel
Nachricht hinzufügen
Mit der Nutzung der oben angegebenen Telefonnummer oder durch Klicken auf „Kontaktieren“ akzeptierst Du die Allgemeinen Nutzungsbedingungen, denen Du jederzeit widersprechen kannst. Weitere Informationen zum Datenschutz
MediumRectangleTop
MediumRectangleBottom
MediumRectangleTop
Wie zufrieden bist du mit dieser Seite (nicht mit der Immobilie selbst)?