Wohnhaus in Gerolding - zum Fertigstellen
Kurzbeschreibung
Insgesamt warten drei Häuser in Gerolding auf die Fertigstellung
Objekt
Insgesamt warten drei Häuser in Gerolding auf die Fertigstellung
Bekanntmachung/Ankündigung Insolvenzverfahren über die Liegenschaft:
Wohnhaus mit Garage (Fertigstellungsaufwand gegeben)
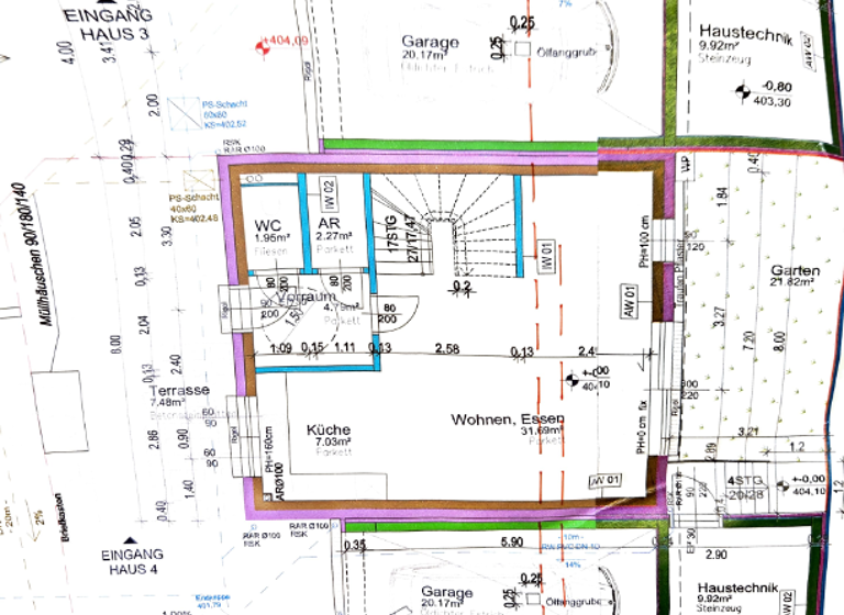
TOP 3 - 11b - € 190.000,- Wfl. EG + OG: ca. 95m²Garten: 141m²Terrasse EG: 7,48m²Terrasse DG: 24,96m²Haustechnik: 9,92m²Garage: 20,17m²Einreichplan vorhanden 2022Baubewilligung 25.5.2022
Top 2 - 9b - € 230.000,- - ca. 95m²
Top 4 - 11a - € 200.000,- - ca. 95m²
Unterschiede ergeben sich durch die Terrassen und die Gärten
Es gibt laut Gemeinde keinen Bebauungsplan
Jeder Eigentümer entrichtet selbst die Gemeindeabgaben an die Gemeinde bzw. GVU
Es wird so wie besichtigt verkauftSämtliche Informationen befinden sich im Gutachten laut 2025
Kaufpreis: € 190.000,-Anschlusskosten sind noch offen.Aufschließungskosten wurden entrichtet
Es erfolgt der Verkauf im Insolvenzverfahren, daher keine Garantie oder Gewährleistung.
Kontaktieren Sie mich, dann bekommen Sie mehr Details. Ich freue mich sehr, Ihnen diese Liegenschaft präsentieren zu dürfen.
Der Vermittler tritt als Doppelmakler auf!
RAIFFEISEN IMMOBILIENKARIN PLESIUTSCHNIG0664/60 517 517 63
Unsere Objekte finden Sie unter: www.raiffeisen-immobilien.at
Auch Sie möchten Ihre Immobilie verkaufen?Vereinbaren Sie mit mir einen kostenlosen Beratungstermin unter0043 664/6051751763 - Ich freue mich auf Ihren Anruf
! Wir möchten Sie informieren - Maklervertrag (FAGG-Bestimmungen)
Gerne übermitteln wir ihnen ein unverbindliches, kostenloses Angebot mit der Adresse der angefragten Immobilie bzw. vereinbaren mit Ihnen auf Wunsch einen Termin.Alleine durch die Unterfertigung dieses Maklervertrages und die Besichtigung von Objekten entstehen Ihnen keine Kosten. Erst mit dem Abschluss eines Kaufvertrages oder eines Mietvertrages tritt Verdienstlichkeit ein und es wird die Provisionsvereinbarung dieses Vertrages ausgelöst!Bitte haben Sie dafür Verständnis, dass wir Ihnen seit dem 13. Juni 2014 aufgrund der neuen EU-Richtlinie Unterlagen und Informationen zu unseren Objekten erst dann übersenden können, wenn wir Ihre Kontaktdaten inkl. Wohnadresse haben und Sie bestätigen, dass Sie unser vorzeitiges Tätigwerden wünschen und über Ihre Rücktrittsrechte aufgeklärt wurden. Hierfür erhalten Sie nach Ihrer Anfrage eine Email mit den entsprechenden Unterlagen und einem Link, um diese Punkte zu bestätigen.Vielen Dank!