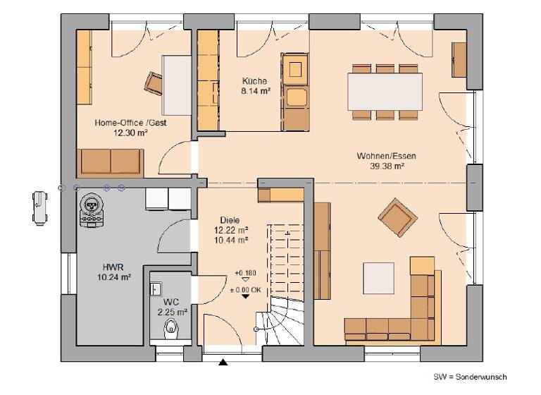
Architektenhaus Anto präsentiert sich vielfältig auf zwei Etagen mit einem innovativen Grundriss, der Wünsche wahr werden lässt. Im Erdgeschoss betreten Sie das Haus durch eine geräumige Diele, die offen in die Küche übergeht. Die Küche wird zum Mittelpunkt des Wohnbereiches. Direkt daneben befindet sich der Esstisch, wo man gemeinsam isst und Zeit verbringt. Der Wohnbereich mit Couch und TV schließt daran an und lädt zum Entspannen ein. Neben der Küche führt eine Tür in das praktische Home-Office. Ebenfalls im Erdgeschoss sind ein Hauswirtschaftsraum und ein Gäste-WC vorhanden.
Abgerundet wird das Satteldachhaus im Dachgeschoss mit einem Elternschlafzimmer mit einer Ankleide, zwei Kinderzimmer und einem geräumigen Familienbad.
Dieses Haus wird nach Ihren individuellen Wünschen geplant und ausgestattet!
+ Schlüsselfertiges Massivhaus im Sinne der Ausstattungsbeschreibung "Easy" + Inklusive Bodenplatte
Beste Markenausstattung in jedem Kern-Haus:
+ Zimmermannsmäßiger Dachstuhl aus Konstruktionsvollholz + Dacheindeckung mit Betondachsteinen von Braas + Hochwertiger Kunstharz-Außenputz für eine langlebige Fassade + Vollständige Badausstattung von Villeroy & Boch mit Badewanne und flacher Duschwanne + Fliesen von Villeroy & Boch in Bad und WC + Haustür mit 3-fach-Sicherheitsverriegelung + Erstklassige Innentüren der Marke Herholz + Fenster mit 3-Scheiben-Wärmeschutzverglasung und Rollläden + Stahl-Holz-Treppe mit individueller Farbgestaltungsmöglichkeit + Elektroausstattung inklusive Klingelanlage + Rauchmelder für Ihre Sicherheit + Alle Leistungen aus einer Hand + Alle Planungs- und Architektenleistungen + Einsatz regionaler Handwerksbetriebe + Individuelle Anpassung auf Ihre Bedürfnisse + Auf Wunsch mit Keller erhältlich + Auf Wunsch mit weiteren Energietechniken erhältlich
Grundrisse
Grundrisse
1 / 2
Realisiere Dein Projekt
Bausubstanz und Energie
Energieausweis
Der Anbieter hat keine Daten zum Energieausweis hinterlegt.
Baujahr2026
Zustand der ImmobilieNeubau, Projektiert
HeizungsartZentralheizung: Fußbodenheizung
Preisdetails
Kaufpreis
391900 €391.900 €
2.740,56 €/m²
Provision für Käufer
provisionsfrei
Geschätzte Gesamtkosten
423.253 €1
Kaufpreis
391.900 €
Kaufnebenkosten
31.353 €
2
Notarkosten (1,5%)
5.879 €
Grunderwerbsteuer (6%)
23.514 €
Grundbucheintrag (0,5%)
1.960 €
1Der angezeigte Wert ist eine automatisch berechnete Schätzung von immowelt.
2Bei den Angaben handelt es sich um ortsübliche Werte. Individuelle Kosten können abweichen.
Lage
Obersuhl, Wildeck-Obersuhl (36208)
Der Anbieter hat die genaue Adresse nicht freigegeben
Wildeck-Obersuhl liegt in einer landschaftlich reizvollen Gegend, die von Wäldern, Feldern und Hügeln umgeben ist, ideal für Naturliebhaber und Outdoor-Aktivitäten wie Wandern und Radfahren. Trotz der ländlichen Lage gibt es gute Verkehrsanbindungen. Der Bahnhof in Obersuhl bietet regelmäßige Verbindungen nach Eisenach, Bebra und weiter. Auch die Autobahn A4 ist in wenigen Minuten zu erreichen, was eine schnelle Verbindung zu größeren Städten wie Bad Hersfeld, Kassel, Erfurt und Eisenach ermöglicht. In Wildeck-Obersuhl gibt es grundlegende Einrichtungen wie Supermärkte, Bäckereien, Schulen und medizinische Versorgung. Für größere Einkäufe und Dienstleistungen sind die nahegelegenen Städte Heringen und Bad Hersfeld schnell erreichbar. Die Region bietet zahlreiche Möglichkeiten zur Freizeitgestaltung, darunter Sportvereine, Schwimmbäder und kulturelle Veranstaltungen. Die Nähe zur Werra und den umliegenden Naturparks bietet zusätzliche Erholungsmöglichkeiten. Die Gegend ist bekannt für ihre freundliche und familiäre Gemeinschaft. Die ruhige und sichere Umgebung macht sie ideal für Familien, Paare und Einzelpersonen, die eine hohe Lebensqualität in einer naturnahen Umgebung suchen.
Weitere Informationen
Sonstiges
Kern-Haus
Kern-Haus baut individuelle und massive Architektenhäuser zu einem attraktiven Preis-Leistungs-Verhältnis - und das bereits mit einer Erfahrung seit 1980.
Maximale Sicherheit bei Kern-Haus: + 10 Jahre Gewährleistung auf die wesentlichen Bauleistungen + Bis zu 24 Monate Festpreisbindung + 50 Jahre Gewährleistung auf das DuoTherm-Mauerwerk + Verbindliche Bauzeit + Zahlung nach Baufortschritt
Preise und Auszeichnungen von Kern-Haus: - German Brand Award in den Jahren 2018 und 2021 - Hausbau Design Award: Sieger in den Jahren 2017, 2018, 2019, 2020, 2021, 2022 und 2023 - Deutscher Traumhauspreis: Sieger in den Jahren 2014, 2015, 2016 und 2018 und Silber 2017, 2020 und 2021 - Mittelstandspreis "Top 100" in den Jahren 2014, 2016, 2018, 2020 und 2022 - German Design Award im Jahr 2018
Weitere Informationen
Der gezeigte Preis versteht sich inklusive Grundstück und exklusive der Baunebenkosten.
Ihre Ansprechpartnerin Katrin Klein vom Kern-Haus-Team in Erfurt freut sich darauf Ihre Fragen zu beantworten. Jetzt anrufen: 0361 / 551450
Kern-Haus in Erfurt - https://www.kern-haus.de/erfurt/
Weitere Architektenhäuser - https://www.kern-haus.de/haeuser
Stichworte
Stellplatz vorhanden, Anzahl der Schlafzimmer: 3, Anzahl der separaten WCs: 1