Version: 8.25.2Navigation überspringen
961 €
3 Zimmer  •  76,9 m²  •  1. Geschoss
Immowelt logo

Wohnung zur Miete - Erstbezug
961 €
3 Zimmer  •  76,9 m²  •  1. Geschoss

Neulengbach | Erstbezug | Miete | Haus 1 - Top 8 | 3 Zimmer mit Balkon

Das Wichtigste auf einen Blick

* Neubauprojekt (2024) in hochwertiger Bauweise und Ausstattung
* Moderne Haustechnik: Erdwärmepumpe mit Fußbodenheizung, Kühlfunktion im Sommer und PV Anlage
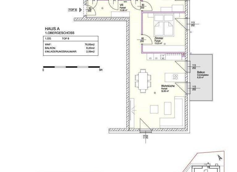
* Die Wohnung umfasst 76,9 m², aufgeteilt in Vorraum, 3 Zimmer, Abstellraum, Bad und WC getrennt
* Großer Balkon für zusätzlichen Freiraum, Kellerabteil, Garagenplätze optional (EUR 105,-)
* Befristete Hauptmiete (5 Jahre) inkl. aller Betriebskosten UND Heizkosten EUR 1.278,02 p.m.

Die ausführliche Beschreibung:

Am Kabanenweg in Neulengbach, nahe dem Freibad und nur wenige vom Bahnhof entfernt, entstand 2024 eine moderne Wohnhausanlage mit 30 Wohnungen in drei Baukörpern mit gemeinsamer Tiefgarage. Die nachhaltige Haustechnik - Erdwärme-Fußbodenheizung mit Kühlfunktion, außenliegender Sonnenschutz sowie eine Photovoltaikanlage für die Allgemeinflächen sorgt für Komfort und reduzierte Betriebskosten.

Die Wohnung Top 8 im 1. Obergeschoß von Haus 1 bietet auf 76,9 m² ein durchdachtes Raumprogramm mit Vorraum, drei Zimmern, Abstellraum, Badezimmer und separatem WC. Von der Wohnküche führt der Ausgang auf den rund 8 m² großen Balkon, der den Wohnraum um wertvolle Freifläche erweitert. Eichen-Echtholz-Parkett, großformatige Fliesen mit hochwertiger Keramik in den Nassräumen sowie eine Sicherheits-Eingangstüre runden das Gesamtpaket ab und sorgen für Wohnkomfort auf zeitgemäßem Niveau. Zusätzlich gehören ein Kellerabteil sowie optional verfügbare Garagenplätze in der Tiefgarage zum Angebot.

Die Stadtgemeinde Neulengbach überzeugt mit hoher Lebensqualität: viel Grün zum Laufen, Radfahren und Wandern, das Freibad mit Tennisplätzen direkt nebenan sowie eine sehr gute Infrastruktur mit Nahversorgern, Schulen und Freizeitangeboten. Der Bahnhof ist in nur 900 Metern zu Fuß erreichbar - von dort gelangt man in ca. 35 Minuten nach Wien und in etwa 20 Minuten nach St. Pölten. Auch die Westautobahn (A1) ist schnell erreichbar, womit Freizeitqualität und Alltagskomfort perfekt verbunden sind.

_Auf ein wirtschaftliches Naheverhältnis zum Auftraggeber sowie die Doppelmaklertätigkeit wird ausdrücklich hingewiesen._

Noch nichts gefunden?
Wir informieren Sie als Erste/r über passende Immobilienangebote.

Legen Sie jetzt Ihren individuellen Suchagenten über folgenden Link an.
Wir senden Ihnen geeignete Immobilien unverbindlich vorab zu.

Suchagent anlegen [https://sulek-immobilien.service.immo/registrieren/de] - https://sulek-immobilien.service.immo/registrieren/de

Infrastruktur / Entfernungen

Gesundheit
Arzt <1.250m
Apotheke <1.000m
Klinik <9.750m

Kinder & Schulen
Schule <750m
Kindergarten <1.250m

Nahversorgung
Supermarkt <500m
Bäckerei <1.000m

Sonstige
Bank <1.000m
Geldautomat <1.000m
Post <1.000m
Polizei <750m

Verkehr
Bus <250m
Autobahnanschluss <4.250m
Bahnhof <1.000m

Angaben Entfernung Luftlinie / Quelle: OpenStreetMap

Merkmale

  • Bezug: sofort
  • 1. Geschoss
  • Personenaufzug
  • Balkon
  • Bodenbelag: Fliesen, Parkett

Grundrisse

Grundrisse
1 / 1

Bausubstanz und Energie

Heizwärmebedarf (HWB)

A

Gesamtenergieeffizienz (fGEE)

A++
  • Baujahr2024
  • Zustand der ImmobilieNeubau, Massivhaus, Erstbezug
  • HaustypNiedrigenergiehaus
  • HeizungsartZentralheizung: Fußbodenheizung
  • EnergieträgerErdwärme, Solar
Immowelt logo

Mietkosten

Gesamtmiete
1.278,02 €
Nettokaltmiete
12,50 €/m²
960,63 €
Betriebskosten
156,95 €
Heizkosten
14,99 €
Kaution
4 Bruttomonatsmieten
Weitere Preisinformationen
Nettokaltmiete: 960,63 EUR

Lage

address-icon
KabanenwegNeulengbach (3040)

Weitere Informationen

Stichworte Tiefgarage vorhanden, Süd-Ost-Balkon/Terrasse, Anzahl der Badezimmer: 1, Anzahl der separaten WCs: 1, Anzahl Balkone: 1, Balkon-Terrassen-Fläche: 8,20 m², Bundesland: Niederösterreich, Wohnungsnr.: 8M

Weitere Services

Lust auf eine Besichtigung?
Eine Frage zur Immobilie?
Mit einer persönlichen Nachricht hast du bessere Chancen auf eine Antwort.
Mit der Nutzung der oben angegebenen Telefonnummer oder durch Klicken auf „Kontaktieren“ akzeptierst Du die Allgemeinen Nutzungsbedingungen, denen Du jederzeit widersprechen kannst. Weitere Informationen zum Datenschutz

Über den Anbieter

Fasangasse 30/10, 1030 WIEN
partner badge
Partnerschaft
Herr Michael ReschDein Kontakt
Online-ID: 267H6CPFDMYB
Referenznummer: OBGC202603151808048837ff1f39486
Wie zufrieden bist du mit dieser Seite (nicht mit der Immobilie selbst)?